Depuis 2003, KEOPS Toulouse accompagne les entreprises dans leurs projets immobiliers sur toute l’aire urbaine toulousaine.Notre équipe de professionnels passionnés met à votre service sa connaissa ...
En savoir plus

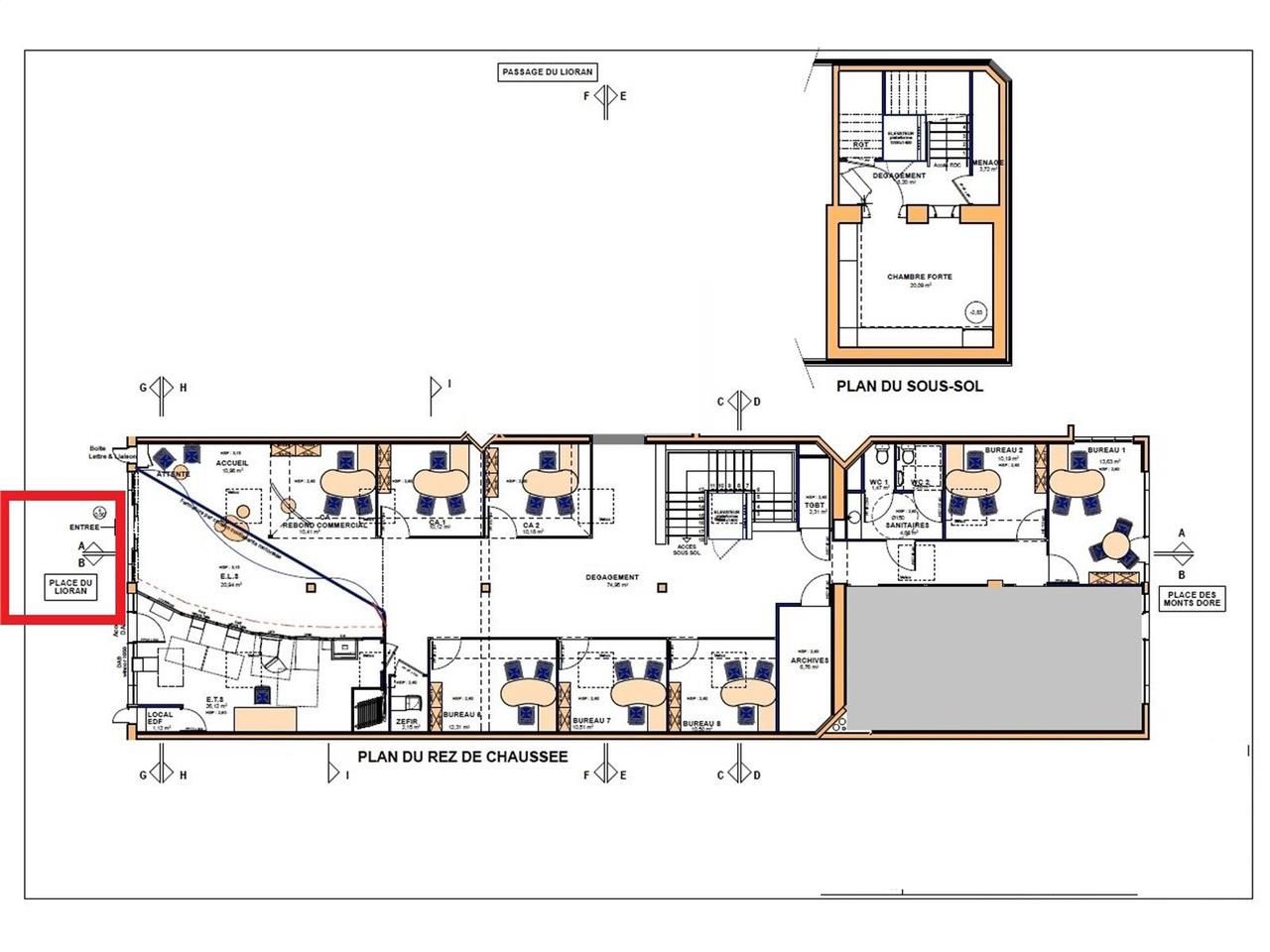
265 m²
Local commercial à vendre - 265 m²
Dernière mise à jour : Il y a 2 jours
Nous vous proposons une opportunité exceptionnelle d'acquérir des locaux commerciaux idéalement situés à Colomiers. Ces espaces sont disponibles à la vente et offrent un cadre propice au développement de votre activité. Pour plus d'informations ou pour organiser une visite, veuillez nous contacter directement.
Impôt Foncier : 21963 €/an
Honoraires : 5 % HT du prix de vente à la charge de l'acquéreur
Prestations :
Accessibilité:
Aéroport Aéroport de Toulouse-Blagnac (France)
SNCF Colomiers (Gare SNCF)
Autoroute A 624 (Entrée AUCH), A 624 (Sortie COLOMIERS CENTRE)
Bus Val D'Aran (32 L02), Hall Comminges (150 32, 151 32)
Rocade Blagnac (Périphérique Toulouse)
Les informations sur les risques auxquels ce bien est exposé sont disponibles sur le site Géorisques : www.georisques.gouv.fr
| Étage | Type | Surfaces | Dispo | Prix(m²) | Charges | Honoraires | Fiscal |
|---|---|---|---|---|---|---|---|
| RDC | Locaux Commerciaux | 235 | Immédiate | n.c. | n.c. | 5 % HT du prix de vente à la charge de l'acquéreur | |
| SS | Locaux Commerciaux | 30 | Immédiate | n.c. | n.c. | 5 % HT du prix de vente à la charge de l'acquéreur |
Impôt Foncier : 21963 €/an
Honoraires : 5 % HT du prix de vente à la charge de l'acquéreur
Prestations :
- Local commercial en très bon état à la vente, au coeur du centre ville de Colomiers.
- Surface RDC + Sous Sol
- Local commercial traversant
- Très belle hauteur sous- plafond
- Bon état général
- Visibilité " Rue du centre " et " Place Mont Dore"
- Parking public gratuit à proximité immédiate
- Complémentarité commerciale : opticien, mutuelle, restaurant, tabac/presse etc.
- Surface RDC : 235 m²
Accessibilité:
Aéroport Aéroport de Toulouse-Blagnac (France)
SNCF Colomiers (Gare SNCF)
Autoroute A 624 (Entrée AUCH), A 624 (Sortie COLOMIERS CENTRE)
Bus Val D'Aran (32 L02), Hall Comminges (150 32, 151 32)
Rocade Blagnac (Périphérique Toulouse)
Les informations sur les risques auxquels ce bien est exposé sont disponibles sur le site Géorisques : www.georisques.gouv.fr
Voir plus
Afficher les consommations énergétiques
Localisation et transport aux alentours
Favoris
Exporter
Appeler
Contacter
Signaler cette annonce





