Spécialiste du département de la Loire Atlantique, Arthur Loyd Nantes / Saint-Nazaire est un cabinet de conseil en immobilier d'entreprise actif depuis plus de 20 ans. Son équipe de consultants acc ...
En savoir plus

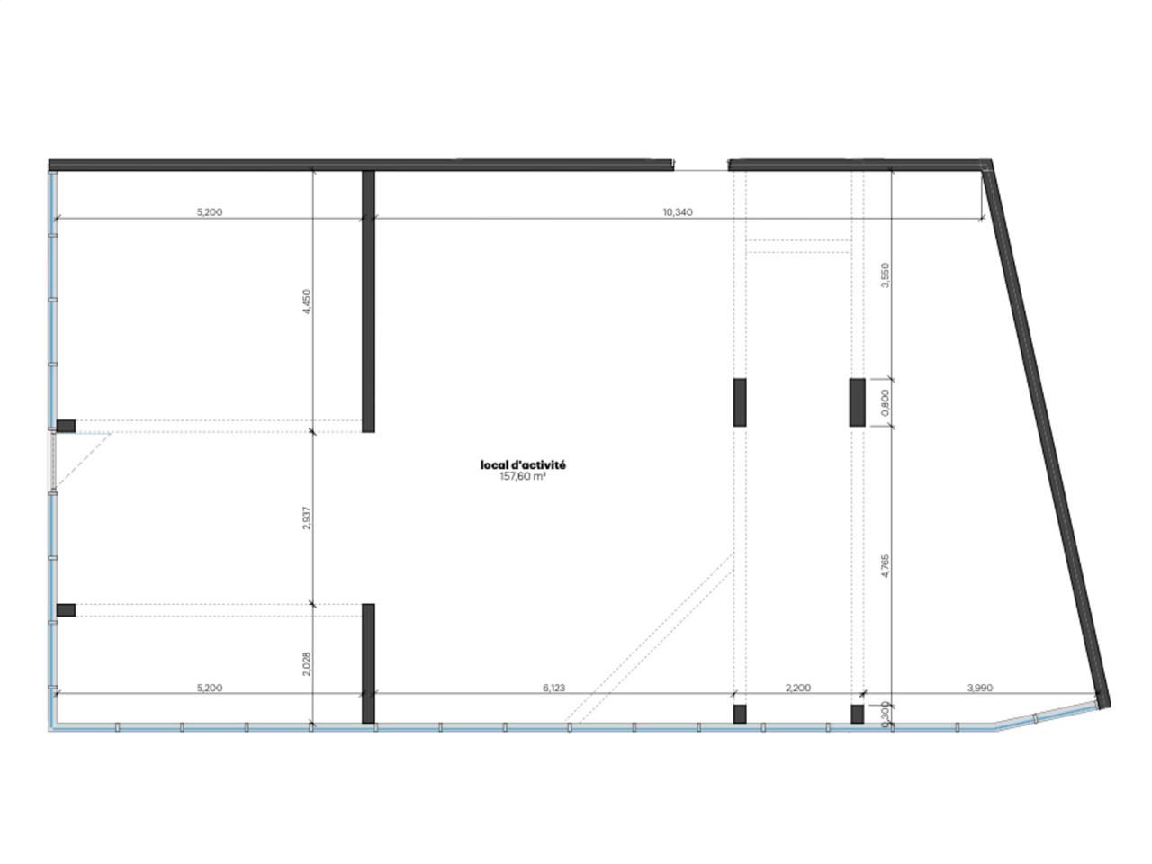
158 m²
Local commercial à vendre - 158 m²
Carquefou (44470)
Dernière mise à jour : Hier
Cellule à la vente - Carquefou - 157m2
Immeuble ALIOS
À LA VENTE, nous vous proposons une cellule de 157m2 à Carquefou uniquement disponible pour un médecin. Très belle visibilité et important linéaire vitrine.
Le local commercial est livré brut, situé dans un ensemble immobilier de deux bâtiments en R+3 composé de 22 logements collectifs sur un socle commun au rez-de-chaussée.
A proximité immédiate se trouve un parc de stationnement couvert de 27 places dont 3 PMR et un parc de stationnement aérien de 5 places dont 1 PMR. Les stationnements sont strictement réservés aux occupants des logements de la résidence et au local commercial
Prestations :
Accessibilité:
Bus Moulin Boisseau (BUS-85)
Les informations sur les risques auxquels ce bien est exposé sont disponibles sur le site Géorisques : www.georisques.gouv.fr
Immeuble ALIOS
À LA VENTE, nous vous proposons une cellule de 157m2 à Carquefou uniquement disponible pour un médecin. Très belle visibilité et important linéaire vitrine.
Le local commercial est livré brut, situé dans un ensemble immobilier de deux bâtiments en R+3 composé de 22 logements collectifs sur un socle commun au rez-de-chaussée.
A proximité immédiate se trouve un parc de stationnement couvert de 27 places dont 3 PMR et un parc de stationnement aérien de 5 places dont 1 PMR. Les stationnements sont strictement réservés aux occupants des logements de la résidence et au local commercial
| Étage | Type | Surfaces | Dispo | Prix(m²) | Charges | Honoraires | Fiscal |
|---|---|---|---|---|---|---|---|
| RDC | Locaux Commerciaux | 157,6 | Nous consulter | 2115,48 HD/m² | n.c. |
Prestations :
- IMMEUBLE NEUF
- Cellule disponible à la vente, brute de béton, fluides en attente. Activité de médecin uniquement.
Accessibilité:
Bus Moulin Boisseau (BUS-85)
Les informations sur les risques auxquels ce bien est exposé sont disponibles sur le site Géorisques : www.georisques.gouv.fr
Voir plus
Afficher les consommations énergétiques
Favoris
Exporter
Appeler
Contacter
Signaler cette annonce
