Nous sommes Immprove, une grande équipe de plus de 200 experts en immobilier d’entreprise, implantés localement avec plus de 20 agences sur tout le territoire.Depuis 2009, notre proximité, notre ét ...
En savoir plus

3 615 m²
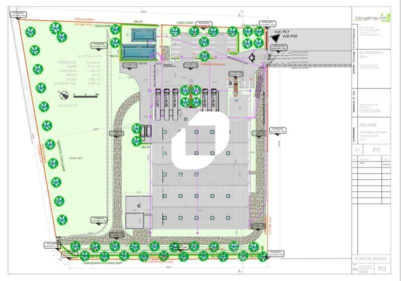
Activité/Entrepôt à vendre - 3615 m²
Solgne (57420)
Dernière mise à jour : Il y a 3 jours
Immprove, vous propose à la vente à 10 minutes du sud de Metz, un entrepôt récent et indépendant de 3 600 m². Belles prestations, grande hauteur (10 m), accès à quai (5), bureaux neufs et climatisés. Disponibilité immédiate, prix attractif.
Impôt Foncier : 2 €/HT/m²/an
Régime Fiscal : Droits d'enregistrement
Honoraires : 5% HT du prix de vente HD à la charge de l'acquéreur
Prestations :
Accessibilité:
Autoroute A31/D910/D955
SNCF Lorraine TGV
Les informations sur les risques auxquels ce bien est exposé sont disponibles sur le site Géorisques : www.georisques.gouv.fr
| Étage | Type | Surfaces | Dispo | Prix(m²) | Charges | Honoraires | Fiscal |
|---|---|---|---|---|---|---|---|
| R+1 | Bureaux | 460 | n.c. | n.c. | 5% HT du prix de vente HD à la charge de l'acquéreur | Droits d'enregistrement | |
| RDC | Entrepôts | 3155 | n.c. | n.c. | 5% HT du prix de vente HD à la charge de l'acquéreur | Droits d'enregistrement | |
| Parkings | n.c. | n.c. | 5% HT du prix de vente HD à la charge de l'acquéreur | Droits d'enregistrement | |||
| Total Cellule | Entrepôts | 3615 | Immédiate | 800 m² HT HD | n.c. | 5% HT du prix de vente HD à la charge de l'acquéreur | Droits d'enregistrement |
Impôt Foncier : 2 €/HT/m²/an
Régime Fiscal : Droits d'enregistrement
Honoraires : 5% HT du prix de vente HD à la charge de l'acquéreur
Prestations :
- Bâtiment récent et indépendant
- Aire de manoeuvre 31 m
- Site clos et sécurisé par badge
- Bureaux neufs et climatisés
- Locaux sociaux
- Précâblage informatique et téléphonique
- Charge au sol : 3 T / m²
- Hauteur libre : de 6.20 à 9.20 m
- Quai : 5 avec niveleurs
- Plain-pied : 1
- RIA
- Eclairage LED
- Foncier : 1.5 ha
- Immeuble indépendant
- Surface RDC : 3155 m²
- Surface terrain : 0
Accessibilité:
Autoroute A31/D910/D955
SNCF Lorraine TGV
Les informations sur les risques auxquels ce bien est exposé sont disponibles sur le site Géorisques : www.georisques.gouv.fr
Voir plus
Afficher les consommations énergétiques
Favoris
Exporter
Appeler
Contacter
Signaler cette annonce
