Nous sommes Immprove, une grande équipe de plus de 200 experts en immobilier d’entreprise, implantés localement avec plus de 20 agences sur tout le territoire.Depuis 2009, notre proximité, notre ét ...
En savoir plus

7 000 m²
Prix sur demande
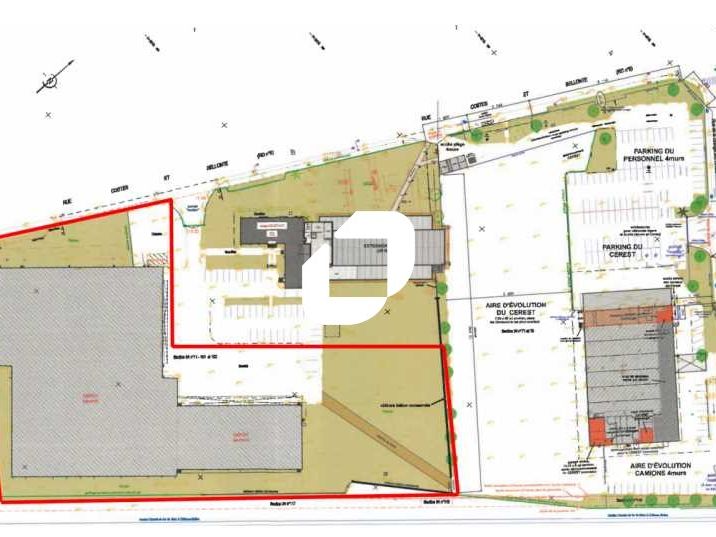
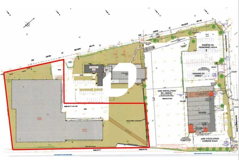
Activité/Entrepôt à vendre - 7000 m²
Marly (57155)
Dernière mise à jour : Il y a 6 jours
Immprove, vous propose à la vente sur la commune de Marly à proximité d'une zone commerciale, un entrepôt d'environ 7 000 m² au pied de la A31 et de l'A4. Reserve foncière d'environ 5 000 m². Disponibilité immédiate.
Régime Fiscal : Droits d'enregistrement
Honoraires : 5% HT du prix de vente HD à la charge de l'acquéreur
Prestations :
Accessibilité:
Autoroute A31/A4
Les informations sur les risques auxquels ce bien est exposé sont disponibles sur le site Géorisques : www.georisques.gouv.fr
| Étage | Type | Surfaces | Dispo | Prix(m²) | Charges | Honoraires | Fiscal |
|---|---|---|---|---|---|---|---|
| RDC | Entrepôts | 7000 | Immédiate | n.c. | n.c. | 5% HT du prix de vente HD à la charge de l'acquéreur | Droits d'enregistrement |
Régime Fiscal : Droits d'enregistrement
Honoraires : 5% HT du prix de vente HD à la charge de l'acquéreur
Prestations :
- Aire de manoeuvre 35 m
- Site clos et sécurisé
- Bureaux et locaux sociaux
- Charge au sol : 5 tonnes / m²
- Hauteur libre : 9 à 12 mètres
- Plain-pied : 6
- Quais filants : 4
- Réserve foncière 5 000 m²
- Foncier 1.5 ha
- Immeuble indépendant
- Surface RDC : 7000 m²
- Surface terrain : 0
Accessibilité:
Autoroute A31/A4
Les informations sur les risques auxquels ce bien est exposé sont disponibles sur le site Géorisques : www.georisques.gouv.fr
Voir plus
Afficher les consommations énergétiques
Favoris
Exporter
Appeler
Contacter
Signaler cette annonce
