Conseil en immobilier d'entreprise, Cushman & Wakefield est un acteur incontournable au rayonnement international. Cushman & Wakefield offre des solutions dans toutes les étapes que comporte un p ...
En savoir plus



3 739 m² divisible dès 500 m²
Prix sur demande
Bureau à vendre - 3739 m²
Voisins-le-Bretonneux (78960)
Dernière mise à jour : Il y a 4 mois
VSQ - Bât L
A Saint-Quentin-En-Yvelines, dans la commune de Voisins Le Bretonneux, nous vous proposons un immeuble indépendant à louer ou à vendre.
Situé dans le parc verdoyant du Val Saint Quentin, l'immeuble « L » bénéficie d'un emplacement stratégique grâce à la proximité de l'autoroute A12 et de la RN10, mais également grâce aux nombreuses lignes de bus et à la navette privée qui desservent la gare de Saint-Quentin-en-Yvelines. Le parc, sécurisé, bénéficie également d'un restaurant inter-entreprises.
L'immeuble quant à lui offre des espaces de travail flexibles, avec des plateaux de bureaux cloisonnés ou ouverts, et entièrement climatisés. Le RDC permet d'accueillir des activités légères, type laboratoire ou SAV. La divisibilité de l'immeuble peut s'étudier à partir de 1 200 m².
Pour plus de détails ou pour organiser une visite, n'hésitez pas à nous contacter.
Impôt Foncier : 32 €//m²/an
Régime Fiscal : Droits d'enregistrement
Honoraires : 5 % HT du prix de vente HD à la charge de l'acquéreur
Taxe Bureau : 13 €/m²/an
Prestations :
Accessibilité:
Bus Navette gratuite vers la gare (6 bus le matin et 6 le soir)
RER Saint-Quentin en Yvelines (RER C)
SNCF Saint-Quentin en Yvelines (lignes N-U)
Accès routier A86, A12, A13
Les informations sur les risques auxquels ce bien est exposé sont disponibles sur le site Géorisques : www.georisques.gouv.fr
A Saint-Quentin-En-Yvelines, dans la commune de Voisins Le Bretonneux, nous vous proposons un immeuble indépendant à louer ou à vendre.
Situé dans le parc verdoyant du Val Saint Quentin, l'immeuble « L » bénéficie d'un emplacement stratégique grâce à la proximité de l'autoroute A12 et de la RN10, mais également grâce aux nombreuses lignes de bus et à la navette privée qui desservent la gare de Saint-Quentin-en-Yvelines. Le parc, sécurisé, bénéficie également d'un restaurant inter-entreprises.
L'immeuble quant à lui offre des espaces de travail flexibles, avec des plateaux de bureaux cloisonnés ou ouverts, et entièrement climatisés. Le RDC permet d'accueillir des activités légères, type laboratoire ou SAV. La divisibilité de l'immeuble peut s'étudier à partir de 1 200 m².
Pour plus de détails ou pour organiser une visite, n'hésitez pas à nous contacter.
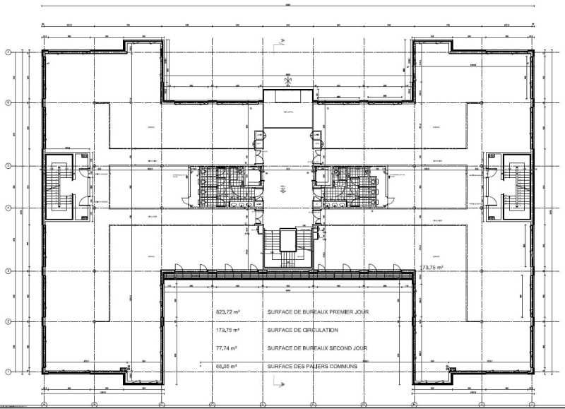
| Étage | Type | Surfaces | Dispo | Prix(m²) | Charges | Honoraires | Fiscal |
|---|---|---|---|---|---|---|---|
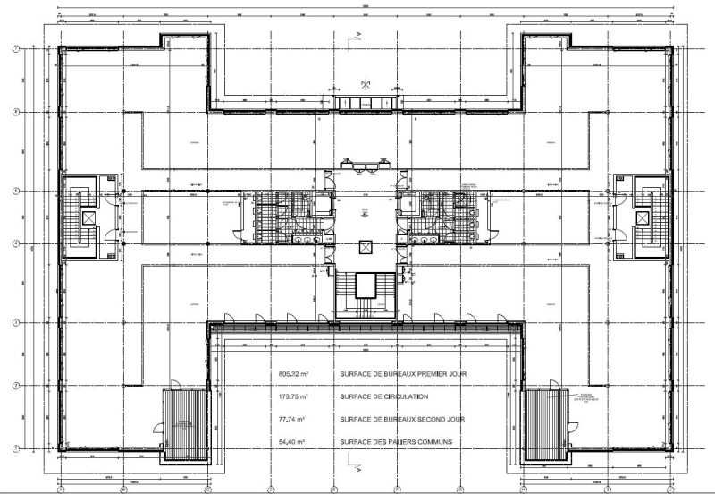
| 2 | Bureaux | 1204 | Immédiate | n.c. | 47 /m²/an HT | 5 % HT du prix de vente HD à la charge de l'acquéreur | Droits d'enregistrement |
| 1 | Bureaux | 1244 | Immédiate | n.c. | 47 /m²/an HT | 5 % HT du prix de vente HD à la charge de l'acquéreur | Droits d'enregistrement |
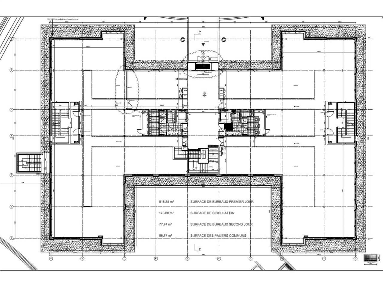
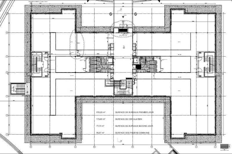
| RdC | Bureaux | 1291 | Immédiate | n.c. | 47 /m²/an HT | 5 % HT du prix de vente HD à la charge de l'acquéreur | Droits d'enregistrement |
| Etage -1 | Arch./Reser. | 153 | Immédiate | n.c. | 47 /m²/an HT | 5 % HT du prix de vente HD à la charge de l'acquéreur | Droits d'enregistrement |
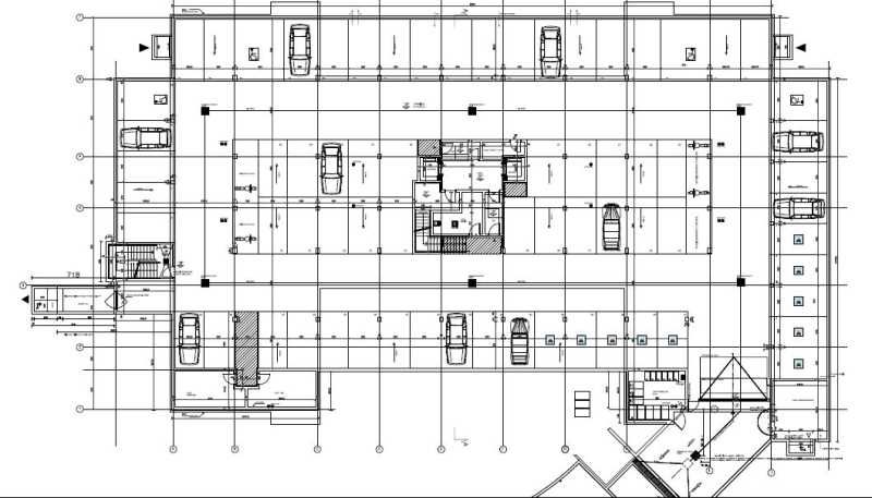
| RdC | Parkings | Immédiate | n.c. | n.c. | 5 % HT du prix de vente HD à la charge de l'acquéreur | Droits d'enregistrement | |
| Etage -1 | Parkings | Immédiate | n.c. | n.c. | 5 % HT du prix de vente HD à la charge de l'acquéreur | Droits d'enregistrement |
Impôt Foncier : 32 €//m²/an
Régime Fiscal : Droits d'enregistrement
Honoraires : 5 % HT du prix de vente HD à la charge de l'acquéreur
Taxe Bureau : 13 €/m²/an
Prestations :
- Situé à Saint-Quentin-en-Yvelines, deuxième Pôle économique tertiaire d'Ile de France, Val Saint-Quentin est un Business Park implanté dans un parc arboré de 10 hectares et organisé autour d'un vaste plan d'eau
- Comprenant 13 immeubles de bureaux et un restaurant interentreprises, il a été construit par phase entre 2005 et 2012
- Parc certifié BREEAM IN USE et bénéficiant d'une navette privée et gratuite desservant la gare de SQY
- Immeuble indépendant
- En bon état d'usage
- Bureaux partiellement cloisonnés
- Climatisation
- RDC adaptable pour de la petite activité ou du laboratoire
- Accès livraison possible
- Immeuble indépendant
- Surface RDC : 1291 m²
Accessibilité:
Bus Navette gratuite vers la gare (6 bus le matin et 6 le soir)
RER Saint-Quentin en Yvelines (RER C)
SNCF Saint-Quentin en Yvelines (lignes N-U)
Accès routier A86, A12, A13
Les informations sur les risques auxquels ce bien est exposé sont disponibles sur le site Géorisques : www.georisques.gouv.fr
52 Parking(s) extérieur(s) 70 Parking(s) intérieur(s)
Voir plus
Afficher les consommations énergétiques
Localisation et transport aux alentours
Favoris
Exporter
Appeler
Contacter
Signaler cette annonce







