L’agence CBRE Lille conseille et accompagne les chefs d’entreprise dans leurs projets immobiliers quels que soient leur taille et leur secteur d’activité. Spécialistes de la transaction de bureaux, ...
En savoir plus

515 m²
Bureau à vendre - 515 m²
Valenciennes (59300)
Dernière mise à jour : Il y a 3 jours
CBRE vous propose à la vente, un immeuble bourgeois, avec plusieurs surfaces de bureaux totalisant 515 m², en plein centre-ville de Valenciennes, à deux pas de la gare. Sur 3 étages avec grand sous-sol, 18 places de parking privatives dans une cour arrière. Opportunité rare pour investisseurs ou entreprises en quête d'un emplacement stratégique.
N'hésitez pas à nous contacter pour de plus amples informations au 03 59 28 58 14.
Régime Fiscal : Droits d'enregistrement
Honoraires : 7% HT du prix de vente HD à la charge de l'acquéreur
Prestations :
Accessibilité:
Bus arrêt : Carpeaux
SNCF Gare de Valenciennes à 3 min
Les informations sur les risques auxquels ce bien est exposé sont disponibles sur le site Géorisques : www.georisques.gouv.fr
N'hésitez pas à nous contacter pour de plus amples informations au 03 59 28 58 14.
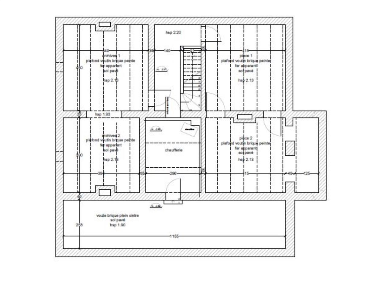
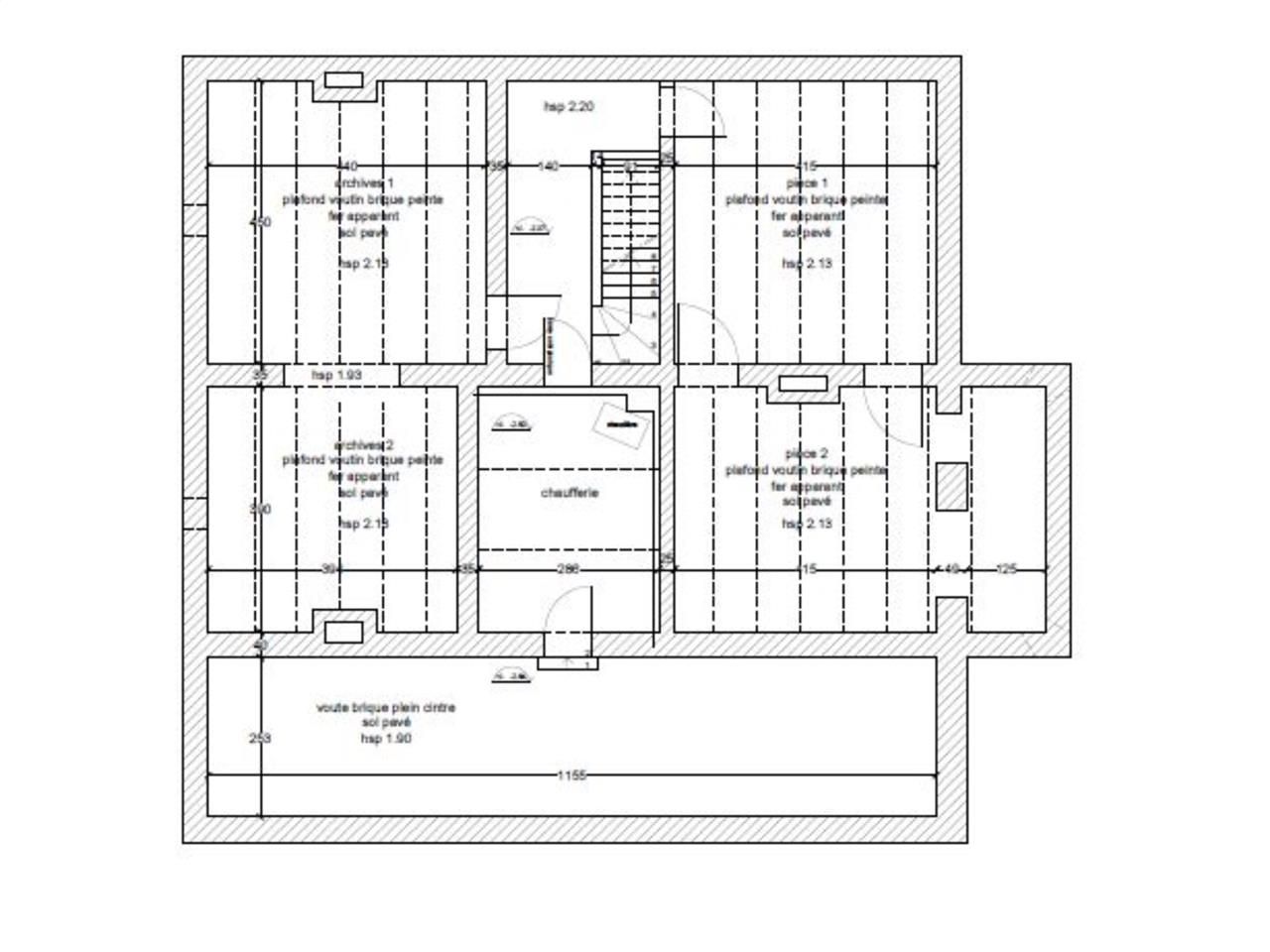
| Étage | Type | Surfaces | Dispo | Prix(m²) | Charges | Honoraires | Fiscal |
|---|---|---|---|---|---|---|---|
| SS | Bureaux | 137,8 | Immédiate | n.c. | n.c. | 7% HT du prix de vente HD à la charge de l'acquéreur | Droits d'enregistrement |
| RDC | Bureaux | 110 | Immédiate | n.c. | n.c. | 7% HT du prix de vente HD à la charge de l'acquéreur | Droits d'enregistrement |
| 1 | Bureaux | 142 | Immédiate | n.c. | n.c. | 7% HT du prix de vente HD à la charge de l'acquéreur | Droits d'enregistrement |
| 2 | Bureaux | 125,3 | Immédiate | n.c. | n.c. | 7% HT du prix de vente HD à la charge de l'acquéreur | Droits d'enregistrement |
Régime Fiscal : Droits d'enregistrement
Honoraires : 7% HT du prix de vente HD à la charge de l'acquéreur
Prestations :
- Accueil
- Accès PMR
- Baie de brassage
- Bureaux cloisonnés
- Chauffage central
- Cloisonnement
- Câblage RJ45
- Open-space
- Salle de réunion
- 18 places de parking privatives
- Surface RDC : 110 m²
Accessibilité:
Bus arrêt : Carpeaux
SNCF Gare de Valenciennes à 3 min
Les informations sur les risques auxquels ce bien est exposé sont disponibles sur le site Géorisques : www.georisques.gouv.fr
Voir plus
Afficher les consommations énergétiques
Favoris
Exporter
Appeler
Contacter
Signaler cette annonce










