Conseil en immobilier d'entreprise, Cushman & Wakefield est un acteur incontournable au rayonnement international. Cushman & Wakefield offre des solutions dans toutes les étapes que comporte un p ...
En savoir plus



7 421 m² divisible dès 2 853 m²
PARC DE PISSALOUP - Bureau à vendre - 7421 m²
Trappes (78190)
Dernière mise à jour : Il y a 3 mois
LE QUADRA
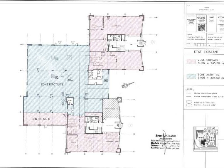
Immeuble PARC DE PISSALOUP
Nous vous proposons à la location ou à la vente, un ensemble de locaux d'activité et de bureaux d'une surface totale de 2 853 m², non divisibles, idéalement situés à Trappes, dans une zone d'activités stratégique.
Ce bâtiment moderne et fonctionnel est parfaitement adapté à des entreprises ayant besoin de bureaux et d'un espace d'activité ou de stockage. Il dispose de grandes surfaces de travail, d'une hauteur sous plafond généreuse et d'une accessibilité optimisée grâce à sa proximité avec les grands axes routiers tels que la N10, la A12 et la N191. La situation géographique permet de rejoindre facilement les zones d'activités et les zones commerciales environnantes.
Le site offre également une excellente visibilité, ce qui en fait un emplacement idéal pour des entreprises recherchant un environnement dynamique et stratégique. En plus de ses bureaux fonctionnels, l'espace est conçu pour accueillir des activités industrielles, des ateliers, ou des showrooms. Un environnement propice à la croissance de votre activité.
La vente en l'état ou la location vous permet de vous installer rapidement dans un cadre professionnel performant. Ce bâtiment est disponible immédiatement, prêt à accueillir vos équipes dans des conditions optimales de travail.
Pour plus d'informations ou pour organiser une visite, contactez-nous sans plus tarder ! Une opportunité rare sur Trappes pour votre entreprise.
Impôt Foncier : 17,5 €//m²/an
Honoraires : 5 % HT du prix de vente HD à la charge de l'acquéreur
Taxe Bureau : 10,75 €/m²/an
Prestations :
Accessibilité:
Accès routierAutoroute : Accès direct RN 12 vers A86, A12-A13
Bus 463 - Gare de Saint Quentin (SNCF SNCF) par voie rapide
Les informations sur les risques auxquels ce bien est exposé sont disponibles sur le site Géorisques : www.georisques.gouv.fr
Immeuble PARC DE PISSALOUP
Nous vous proposons à la location ou à la vente, un ensemble de locaux d'activité et de bureaux d'une surface totale de 2 853 m², non divisibles, idéalement situés à Trappes, dans une zone d'activités stratégique.
Ce bâtiment moderne et fonctionnel est parfaitement adapté à des entreprises ayant besoin de bureaux et d'un espace d'activité ou de stockage. Il dispose de grandes surfaces de travail, d'une hauteur sous plafond généreuse et d'une accessibilité optimisée grâce à sa proximité avec les grands axes routiers tels que la N10, la A12 et la N191. La situation géographique permet de rejoindre facilement les zones d'activités et les zones commerciales environnantes.
Le site offre également une excellente visibilité, ce qui en fait un emplacement idéal pour des entreprises recherchant un environnement dynamique et stratégique. En plus de ses bureaux fonctionnels, l'espace est conçu pour accueillir des activités industrielles, des ateliers, ou des showrooms. Un environnement propice à la croissance de votre activité.
La vente en l'état ou la location vous permet de vous installer rapidement dans un cadre professionnel performant. Ce bâtiment est disponible immédiatement, prêt à accueillir vos équipes dans des conditions optimales de travail.
Pour plus d'informations ou pour organiser une visite, contactez-nous sans plus tarder ! Une opportunité rare sur Trappes pour votre entreprise.
| Étage | Type | Surfaces | Dispo | Prix(m²) | Charges | Honoraires | Fiscal |
|---|---|---|---|---|---|---|---|
| 1 | Bureaux | 2545 | n.c. | n.c. | 5 % HT du prix de vente HD à la charge de l'acquéreur | ||
| RdC | Activités | 2023 | n.c. | n.c. | 5 % HT du prix de vente HD à la charge de l'acquéreur | ||
| 1 | Bureaux | 1903 | n.c. | n.c. | 5 % HT du prix de vente HD à la charge de l'acquéreur | ||
| RdC | Activités | 950 | n.c. | n.c. | 5 % HT du prix de vente HD à la charge de l'acquéreur | ||
| Parkings | n.c. | n.c. | 5 % HT du prix de vente HD à la charge de l'acquéreur |
Impôt Foncier : 17,5 €//m²/an
Honoraires : 5 % HT du prix de vente HD à la charge de l'acquéreur
Taxe Bureau : 10,75 €/m²/an
Prestations :
- Dans la Zone du Pissaloup, parc sécurisé au sein d'un campus High-Tech
- 2 immeubles mixtes indépendants
- Activité : idéal production, recherche ou formation
- HSP : 4,45 m, 2 portes de plain-pied sur le bât D; portes à recréer sur le bât A
- Bureaux : Cloisonnés et climatisés
- Nombreux emplacements de stationnements
- Immeuble indépendant
- Surface RDC : 2973 m²
Accessibilité:
Accès routierAutoroute : Accès direct RN 12 vers A86, A12-A13
Bus 463 - Gare de Saint Quentin (SNCF SNCF) par voie rapide
Les informations sur les risques auxquels ce bien est exposé sont disponibles sur le site Géorisques : www.georisques.gouv.fr
62 Parking(s) extérieur(s)
Voir plus
Afficher les consommations énergétiques
Localisation et transport aux alentours
Favoris
Exporter
Appeler
Contacter
Signaler cette annonce


