L''agence est située à la ZAC de la Poterie au 11 rue Louis Kerautret Botmel à Rennes.Elle est constituée d''une équipe polyvalente de professionnels de l''immobilier d''entreprise. Nous accompagno ...
En savoir plus

Bureau à vendre - 655 m²
Nous vous proposons à la vente un plateau d'environ 769 m² QPPCI au 3ème étage de l'immeuble de standing CAP COURROUZE au pied du métro "Saint Jacques Gaité".
Le plateau bénéficie d'un aménagement qualitatif réalisé par le précédent exploitant des locaux. Cela représente une belle opportunité pour le futur acquéreur qui disposera ainsi d'un plateau clé en main. Les locaux disposent de nombreux bureaux cloisonnés mais également de nombreuses salles de réunion.
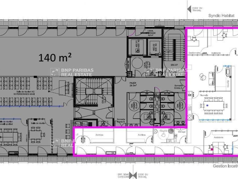
Le lot 18 immédiatement disponible représente une surface de 477,28 m² (carrez 406,3 m² + 70,98 m² de quote part de parties communes) et le lot 20 d'une surface de 292,03 m² (248,6 m² de surface privative + 43,43 m² de quote part de parties communes).
Les locaux comprennent également 12 emplacements de parkings.
Disponibilité: Immédiate
Honoraires: Nous consulter. à la signature de l'acte
| Fiche technique du bien | |
|---|---|
| Métro | ligne B au pied de l'immeuble |
| Bus | lignes C6, 13 et 57 |
| Desserte routière | rocade ouest |
| Aéroport | à 8 min en voiture |
| Gare | à 5 stations de métro |
| Accès Pers. Mobilité Réduite | Oui |
| Etat de l'immeuble | Etat d'usage |
| Etat des locaux | Etat d'usage |
| Type chauffage | Individuel |
| Source chauffage | Electrique |
| Climatisation | Réversible |
| Restauration | au pied de l'immeuble |
| Sécurité | Contrôle d'accès |
| Ascenseur(s) | Oui |
| Câblage informatique | RJ45 |
| Bureau(x) cloisonné(s) | et salles de réunion |
| Faux plafond | Dal. fibres minéral. |
| Eclairage Bureaux | Luminaires encastrés |
| Sol bureaux | Moquette |
| Plinthes techniq.périphériques | Oui |
| Sanitaire(s) | Privatif(s) |
Surface divisible : 1
| Surface | PrixHD/HH/m² | Étage / Batiment | Infos complémentaires |
| 655 m² | N.C | R+3 | OVBUR2536720/2 |




