L''agence est située à la ZAC de la Poterie au 11 rue Louis Kerautret Botmel à Rennes.Elle est constituée d''une équipe polyvalente de professionnels de l''immobilier d''entreprise. Nous accompagno ...
En savoir plus

499 m²
Bureau à vendre - 499 m²
Rennes (35000)
Dernière mise à jour : Aujourd'hui
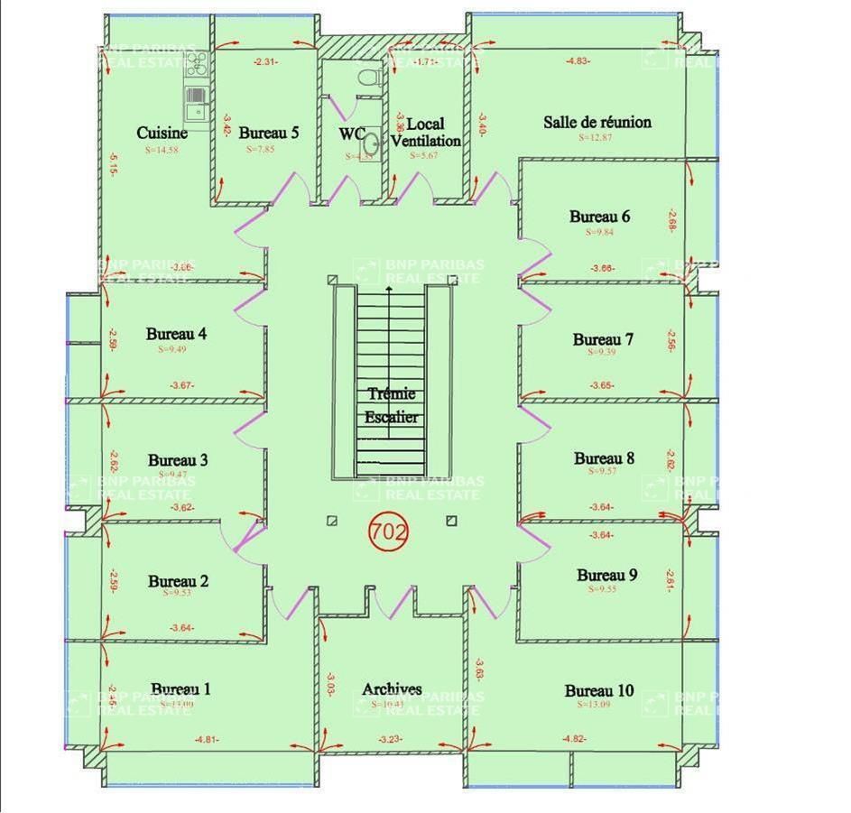
RENNES NORD PATTON BNP PARIBAS REAL ESTATE vous propose une surface de bureaux à la vente sur deux niveaux, RDC et 1er étage. L'ensemble immobilier possède sa propre entrée indépendante ; au rdc on retrouve de nombreux bureaux fermés ainsi qu'à l'étage avec possibilité de décloisonner pour créer des espaces ouverts. Travaux de rafraichissement à prévoir. 13 parkings complètent ce bien.
Idéalement situé entre le boulevard d'Armorique et l'avenue George S Patton, et à proximité du métro Les Gayeulles. Le secteur est très bien desservi par les bus également, l'accès à la rocade est à 5 minutes environ en voiture.
Disponibilité: ImmédiateHonoraires: 7% HT du prix HT/HD. à la signature de l'acte
| Fiche technique du bien | |
|---|---|
| Métro | GAYEULLES |
| Bus | C3 |
| Immeuble copropriété | Oui |
| Type chauffage | Individuel |
| Sécurité | Contrôle d'accès |
| Hall d'accueil | Indépendant |
| Salle informatique | Oui |
| Aménagement des bureaux | Cloisonnés/Ouverts |
| Bureau(x) cloisonné(s) | Nombreux bureaux individuels |
| Eclairage Bureaux | Luminaires encastrés |
| Sol bureaux | Moquette |
| Plinthes techniq.périphériques | Oui |
| Sanitaire(s) | Privatif(s) |
Voir plus
Afficher les consommations énergétiques
Favoris
Exporter
Appeler
Contacter
Signaler cette annonce
