Présente sur la métropole nantaise depuis plus de 35 ans, notre agence dispose d''une équipe experte et dynamique au service des investisseurs et entrepreneurs attirés par la métropole nantaise.L'' ...
En savoir plus

753 m² divisible dès 135 m²
Bureau à vendre - 753 m²
Le Bignon (44140)
Dernière mise à jour : Il y a 21 jours
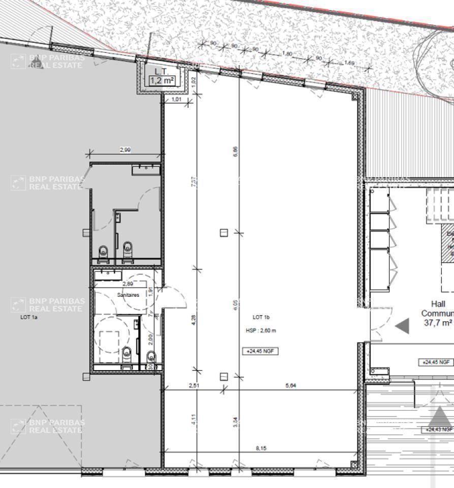
BUREAUX NEUFS A VENDRE LE BIGNON Projet tertiaire à construire sur un site mixte (tertiaire / village d'entreprises) au coeur de la zone d'activités de La Forêt au Bignon. D'une conception 100% bois, ce projet répondra aux dernières normes environnementales. Bureaux lumineux qui peuvent être aménagés selon vos besoins. Devez propriétaire de vos bureaux sur ce site entièrement clos et aménagé. Parking extérieur sur un ratio moyen avec pour certaines places la possibilité d'installer des bornes de recharge électrique. Local vélos. Terrasse privative en bois par lot. Le lot T2 pourra même bénéficier d'une porte sectionnelle.
La zone d'activités de la Forêt s'étend avec un nouveau projet tertiaire. Idéal pour l'implantation de structures artisanales et de petites entreprises. Accès immédiat vers l'A83, et rapidement sur l'axe D178 desservant les communes de la grande couronne sud de Nantes.
Des services de qualité sont accessibles à ses utilisateurs : restauration , salle sport (padel, badminton, urban foot ...)
Disponibilité: ImmédiateHonoraires: 5% HT du prix HT/HD. à la signature de l'acte
| Fiche technique du bien | |
|---|---|
| Desserte routière | à proximité A83 |
| Accès Pers. Mobilité Réduite | Monte personne Elévateur électrique PMR |
| Etat de l'immeuble | Neuf |
| Etat du terrain | Goudronné |
| Parking(s) | 13 Places avec la possibilité d'installer des bornes de recharges pour VE |
| Parking(s) | Oui |
| Immeuble copropriété | avec gestion par un syndic |
| Climatisation | Réversible pompe à chaleur |
| Environnement de proximité | Parc d'activités La Forêt |
| Sécurité | Contrôle d'accès Digicode et visiophone |
| Faux plafond | Dal. fibres minéral. |
| Hauteur sous-plafond | 2,60 mètre(s) |
| Revêtement mural | Peinture |
| Eclairage Bureaux | Luminaires encastrés pavés LED |
| Sol bureaux | Moquette |
| Autre élément bureau | Lot 2 : option porte sectionnelle |
Voir plus
Afficher les consommations énergétiques
Surfaces divisibles : 7
| Surface | PrixHD/HH/m² | Étage / Batiment | Infos complémentaires |
| 146 m² | N.C | RDC | Lot T1b |
| 171 m² | N.C | RDC | sous option |
| 231 m² | N.C | RDC | Lot T2 |
| 11 m² | N.C | RDC | sous option |
| 75 m² | N.C | R+1 | Lot T4 |
| 241 m² | N.C | R+1 | Lot T4 |
| 135 m² | N.C | R+1 | Lot T5 |
Favoris
Exporter
Appeler
Contacter
Signaler cette annonce


