L’agence CBRE Lyon conseille et accompagne les chefs d’entreprise dans leurs projets immobiliers quels que soient leur taille et leur secteur d’activité. Spécialistes de la transaction de bureaux, ...
En savoir plus

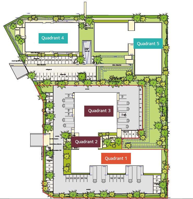
1 312 m² divisible dès 181 m²
Bureau à vendre - 1312 m²
Montluel (01120)
Dernière mise à jour : Il y a 7 mois
Au coeur de la ZAC des Pré Seigneurs, bâtiment de bureaux en construction, disponible à la vente ou à la location.
Le territoire de la Côtière de Montluel offre des conditions de travail idéales grâce à sa proximité de Lyon et son emplacement géographique sur l'axe LYON-GENEVE.
Situé à moins de 30 minutes de la Part Dieu grâce à la ligne de train direct, ce secteur possède une économie dynamique avec près de 11 000 emplois sur le territoire et un fort développement.
Régime Fiscal : T.V.A.
Honoraires : 3% HT du prix de vente HD à la charge de l'acquéreur
Prestations :
Accessibilité:
. Autoroutes A42, A432.
. SNCF : proche Gare de Montluel et à 20 mn de la Gare Lyon Part-Dieu.
. Aéroport Lyon Saint-Exupéry à 15 mn.
Les informations sur les risques auxquels ce bien est exposé sont disponibles sur le site Géorisques : www.georisques.gouv.fr
Le territoire de la Côtière de Montluel offre des conditions de travail idéales grâce à sa proximité de Lyon et son emplacement géographique sur l'axe LYON-GENEVE.
Situé à moins de 30 minutes de la Part Dieu grâce à la ligne de train direct, ce secteur possède une économie dynamique avec près de 11 000 emplois sur le territoire et un fort développement.
| Étage | Type | Surfaces | Dispo | Prix(m²) | Charges | Honoraires | Fiscal |
|---|---|---|---|---|---|---|---|
| RDC | Bureaux | 295,34 | Immédiate | 2300,03 m² HT | n.c. | 3% HT du prix de vente HD à la charge de l'acquéreur | T.V.A. |
| 1 | Bureaux | 334,33 | Immédiate | 2299,97 m² HT | n.c. | 3% HT du prix de vente HD à la charge de l'acquéreur | T.V.A. |
| 1 | Bureaux | 206,07 | Immédiate | 2300,05 m² HT | n.c. | 3% HT du prix de vente HD à la charge de l'acquéreur | T.V.A. |
| 1 | Bureaux | 181,02 | Immédiate | 2300 m² HT | n.c. | 3% HT du prix de vente HD à la charge de l'acquéreur | T.V.A. |
| 2 | Bureaux | 295,19 | Immédiate | 2300 m² HT | n.c. | 3% HT du prix de vente HD à la charge de l'acquéreur | T.V.A. |
Régime Fiscal : T.V.A.
Honoraires : 3% HT du prix de vente HD à la charge de l'acquéreur
Prestations :
- Faux plafonds avec luminaires encastrés
- Rafraichissement d'air et chauffage par pompe à chaleur réversible
- Sol souple
- Livré avec moquette, faux plafond et pavé LED encastrés
- Terrasses privative de 122,90 m² pour le lot 11 à 30% du prix (locatif et à la vente)
- Panneaux photovoltaïques en toiture et R+2
- Contrôle d'accès par interphone
- Ascenseur
- Parkings en sous-sol (électrifiables) :
- 3 pour lots 5, 6,
- 4 pour lots 3, 11
- 5 pour lots 8
- Parkings extérieurs : 1 par lot
- Possibilité d'avoir des places de stationnement extérieures en plus : nous consulter
- Local vélo sécurisé en extérieur
- Gare de Montluel à proximité immédiate
- Surface RDC : 295,34 m²
Accessibilité:
. Autoroutes A42, A432.
. SNCF : proche Gare de Montluel et à 20 mn de la Gare Lyon Part-Dieu.
. Aéroport Lyon Saint-Exupéry à 15 mn.
Les informations sur les risques auxquels ce bien est exposé sont disponibles sur le site Géorisques : www.georisques.gouv.fr
Voir plus
Afficher les consommations énergétiques
Favoris
Exporter
Appeler
Contacter
Signaler cette annonce
