BNP Paribas Real Estate Lille, qui revendique plus de 40 ans de présence sur le marché lillois, est composé d''une équipe expérimentée aux expertises diversifiées. Elle est principalement composée ...
En savoir plus

Bureau à vendre - 1677 m²
Ce boulevard, historique, passe par les villes de La Madeleine, Marcq-en-Baroeul, Wasquehal, Croix et Roncq. Sa proximité avec les différents pôles d'excellence, tel que Euratechnologie, Euralille ou La Pilaterie, lui confère une emplacement premium. De plus, les Grands Boulevards bénéficent d'une bonne accessibilité grce au tramway, à la rocade Nord-Ouest et à l'A22.
Dans ce contexte, BNPPRE vous propose à la location cet immeuble de bureaux neufs, sur la commune de Marcq-en-Baroeul. Situé Rue des Entrepreneur, à quelques mètres de l'Avenue de la République - Marcq-en-Baroeul.
Desserte exceptionnelle :
à moins de 10 min en Tramway des Gares de Lille,
à deux pas d'un arrêt de Trawmay et de plusieurs arrêts de bus,
proximité immédiate avec les grands accès routiers et autoroutiers de la Métropole Lilloise (VRU, A1, A22, A23, A25, A27).
Prestations :
Structure béton avec bardage métallique
Facades isolées par l'extérieur
Menuiseries aluminium avec double vitrage à rupture de pont thermique
Equipements techniques et panneaux photovoltaque en toiture
Locaux vélos, poubelles
Site clos avec portail
Vidéophones sur chaque niveau
RT2012 40%
Douche en RDC
Hauteur sous plafond de 2,70 m
Dalle moquette
Faux plafond 60x60 cm
Eclairage pavés LEDS sur détection
Plateaux livrés en base paysagères
Ventilation mécanique par VMC double flux
Pompe à chaleur pour chauffage et rafraichissement des locaux
Capacitaire : 1 personne / 10 m²
Terrasses et/ou balcon de minimum 8m² sur chaque étage
Egalement disponible à la location.
Vous souhaitez trouver des espaces de bureaux, un plateau ou un local professionnel dans la métropole lilloise/ Lille ? Nous vous proposons une large gamme d'offres de location et de vente dans le Nord, adaptées aux besoins de votre entreprise. Consultez nos surfaces disponibles et choisissez l'unité de bureaux qui dynamisera votre activité dans le Nord-Pas-de-Calais.
Détail parkings :
R+1 :
Lot 1.1 : 3 places extérieures + 2 couvertes dont 1 IRVE
- Lot 1.2.1 : 2 places extérieures + 1 couverte IRVE
- Lot 1.2.2 : 3 places extérieures + 1 couverte IRVE
R+2 :
Lot 2.1 : 2 places extérieures + 2 couvertes dont 1 IRVE
Lot 2.2.1 : 1 places extérieure + 2 couvertes dont 1 IRVE
R+3 :
Lot 3.1 : 2 places extérieures + 2 couvertes dont 1 IRVE
Lot 3.2.1 : 2 places extérieures + 2 couvertes dont 1 IRVE
Lot 3.2.2 : 2 places extérieures + 1 couverte IRVE
Toutes nos offres sur https://www.bnppre.fr/bureau/nord-59/
Disponibilité: ImmédiateHonoraires: Nous consulter. à la charge de l'acquéreur, à la signature de l'acte
| Fiche technique du bien | |
|---|---|
| Bus | Arrêts « Eglise St Louis » à 3 min à pied - Ligne C10 210 m |
| Tramway | Station « Buisson » à 10 min à pied 800 m |
| Desserte routière | VRU, A1, A22, A23, A25, A27 |
| Gare | Flandre à 13 min en vélo et 8 min en tramway (5 arrêts) 4 km |
| Gare | Europe à 11 min en vélo et 6 min en tramway (4 arrêts) 3 km |
| Parking(s) | Oui |
| Parking(s) | 36 Places couvertes |
| Type chauffage | Pompe à chaleur : chauffage, rafraichissement |
| Climatisation | Ventilation mécanique par VMC double flux |
| Sécurité | Contrôle d'accès Site clos, portail, vidéophone à chaque étage |
| Fenêtres | Menuiseries aluminium, double vitrage |
| Aménagement des bureaux | Espaces Ouverts |
| Faux plafond | 60 cm x 60 cm |
| Hauteur sous-plafond | 2,70 mètre(s) |
| Eclairage Bureaux | LEDS |
| Sol bureaux | Moquette |
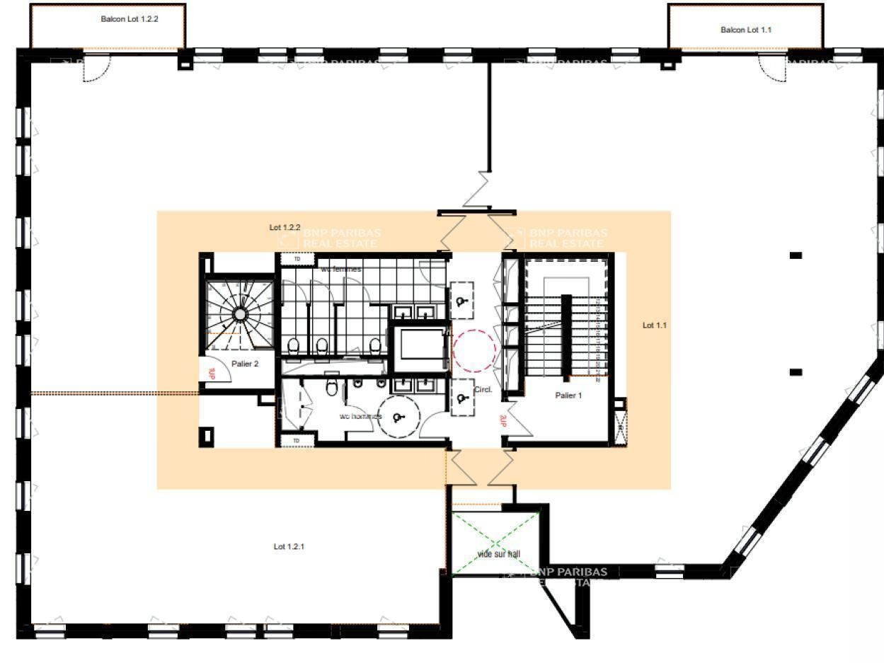
Surfaces divisibles : 16
| Surface | PrixHD/HH/m² | Étage / Batiment | Infos complémentaires |
| 174 m² | N.C | R+1 | R+1 Lot 1.2.2 |
| 235 m² | N.C | R+1 | R+1 Lot 1.1 |
| 136 m² | N.C | R+1 | R+1 Lot 1.2.1 |
| 9 m² | N.C | R+1 | R+1 Lot 1.1 |
| 9 m² | N.C | R+1 | R+1 Lot 1.2.2 |
| 9 m² | N.C | R+2 | R+2 Lot 2.1 |
| 228 m² | N.C | R+2 | R+2 Lot 2.1 |
| 164 m² | N.C | R+2 | R+2 Lot 2.2.1 |
| 174 m² | N.C | R+2 | R+2 LOT 2.2.2 |
| 8 m² | N.C | R+2 | R+2 LOT 2.2.2 |
| 136 m² | N.C | R+3 | R+3 Lot 3.2.2 |
| 230 m² | N.C | R+3 | R+3 Lot 3.1 |
| 120 m² | N.C | R+3 | R+3 Lot 3.2.1 |
| 9 m² | N.C | R+3 | R+3 Lot 3.1 |
| 28 m² | N.C | R+3 | R+3 Lot 3.2.1 |
| 37 m² | N.C | R+3 | R+3 Lot 3.2.2 |










