L’agence CBRE Lille conseille et accompagne les chefs d’entreprise dans leurs projets immobiliers quels que soient leur taille et leur secteur d’activité. Spécialistes de la transaction de bureaux, ...
En savoir plus

1 650 m² divisible dès 350 m²
Bureau à vendre - 1650 m²
Loos (59120)
Dernière mise à jour : Il y a 9 mois
CBRE vous propose plusieurs surfaces de bureaux situées dans la rue principale de Loos.
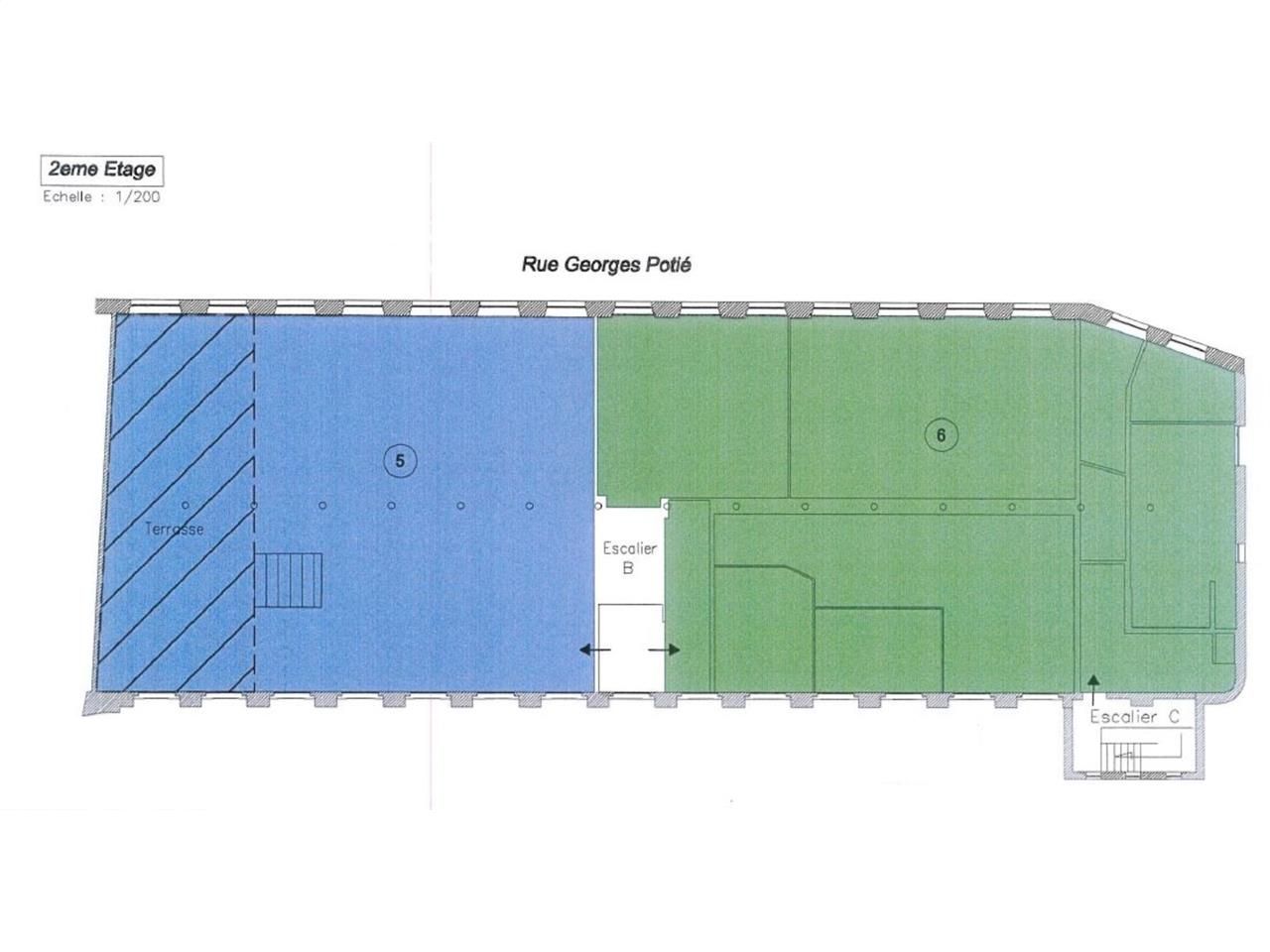
L'immeuble dispose d'un ensemble de bureaux d'environ 1 050 m² divisibles à partir de 350 m².
Le RDC est actuellement loué par une association.
N'hésitez pas à nous contacter pour de plus amples informations au 03.20.21.88.50 ou pour organiser une visite de l'immeuble.
Impôt Foncier : 15 €/HT/m²/an
Régime Fiscal : Droits d'enregistrement
Honoraires : 5% HT du PVHD à la charge de l'acquéreur
Prestations :
Accessibilité:
Autoroute A25
Bus Lignes 931/934/C02/L5 arrêt : "Dhainaut"
SNCF Gare de Loos à 5 min
Station V'Lille à Proximité
Les informations sur les risques auxquels ce bien est exposé sont disponibles sur le site Géorisques : www.georisques.gouv.fr
L'immeuble dispose d'un ensemble de bureaux d'environ 1 050 m² divisibles à partir de 350 m².
Le RDC est actuellement loué par une association.
N'hésitez pas à nous contacter pour de plus amples informations au 03.20.21.88.50 ou pour organiser une visite de l'immeuble.
| Étage | Type | Surfaces | Dispo | Prix(m²) | Charges | Honoraires | Fiscal |
|---|---|---|---|---|---|---|---|
| RDC | Bureaux | 600 | 3 mois ap. acc. | 1750 m² HD | n.c. | 5% HT du PVHD à la charge de l'acquéreur | Droits d'enregistrement |
| 1 | Bureaux | 350 | Immédiate | 1600 m² HD | n.c. | 5% HT du PVHD à la charge de l'acquéreur | Droits d'enregistrement |
| 2 | Bureaux | 700 | Immédiate | 1600 m² HD | n.c. | 5% HT du PVHD à la charge de l'acquéreur | Droits d'enregistrement |
Impôt Foncier : 15 €/HT/m²/an
Régime Fiscal : Droits d'enregistrement
Honoraires : 5% HT du PVHD à la charge de l'acquéreur
Prestations :
- Chauffage électrique
- Cloisonnement
- Faux plafond
- 26 Places de parking :
- Prix de vente : 8 000 euros HD HH/U
- Surface RDC : 600 m²
Accessibilité:
Autoroute A25
Bus Lignes 931/934/C02/L5 arrêt : "Dhainaut"
SNCF Gare de Loos à 5 min
Station V'Lille à Proximité
Les informations sur les risques auxquels ce bien est exposé sont disponibles sur le site Géorisques : www.georisques.gouv.fr
Voir plus
Afficher les consommations énergétiques
Favoris
Exporter
Appeler
Contacter
Signaler cette annonce







