Alex Bolton, société de conseil en immobilier d’entreprise est spécialisée dans la transaction locative et la vente d’immeubles de bureaux.Dotée d’une équipe de collaborateurs expérimentés, la soci ...
En savoir plus

90 m²
Bureau à vendre - 90 m²
Issy-les-Moulineaux (92130)
Dernière mise à jour : Il y a 3 jours
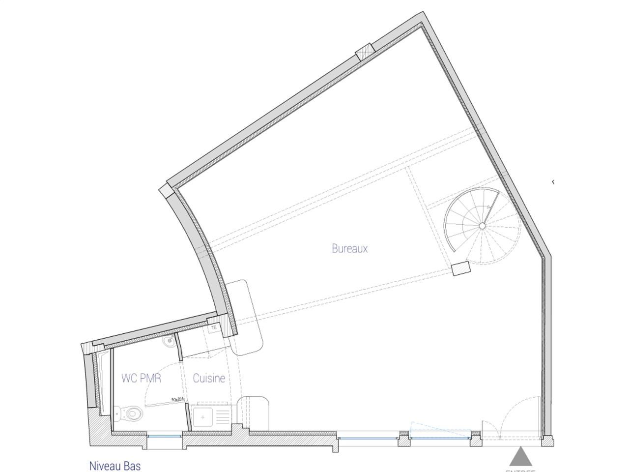
Alex Bolton vous propose à la vente une surface de bureaux refait à neuf à Issy-Les-Moulineaux, avec une entrée indépendante en rez-de-chaussée. Elle dispose d'une belle hauteur sous plafond avec une mezzanine, une cuisine et une douche.
Ce plateau récemment rénové propose de belles prestations et un style architectural de qualité. Opportunité à saisir rapidement.
Votre contact pour toute visite Jérémy MARCIANO - 07.81.98.52.36 - [email protected]
Impôt Foncier : 23,54 €//m²/an
Régime Fiscal : Droit d'enregistrement
Honoraires : 4% HT du prix de vente HD à la charge de l'acquéreur
Prestations :
Accessibilité:
Métro Mairie d'Issy (Ligne 12)
RER Issy (Ligne C)
Bus Bourgain - Général Gallieni (Ligne 123, Ligne 190), André Chenier (Ligne 290), Cresson - Gallieni (Ligne TUVIM)
Tram Jacques-Henri Lartigue (Ligne T2)
SNCF Issy (France)
Les informations sur les risques auxquels ce bien est exposé sont disponibles sur le site Géorisques : www.georisques.gouv.fr
Ce plateau récemment rénové propose de belles prestations et un style architectural de qualité. Opportunité à saisir rapidement.
Votre contact pour toute visite Jérémy MARCIANO - 07.81.98.52.36 - [email protected]
| Étage | Type | Surfaces | Dispo | Prix(m²) | Charges | Honoraires | Fiscal |
|---|---|---|---|---|---|---|---|
| RDC | Bureaux | 90,5 | Immédiate | 7182,32 m² | 26 m²/an HT | 4% HT du prix de vente HD à la charge de l'acquéreur | Droit d'enregistrement |
Impôt Foncier : 23,54 €//m²/an
Régime Fiscal : Droit d'enregistrement
Honoraires : 4% HT du prix de vente HD à la charge de l'acquéreur
Prestations :
- Locaux rénovés récemment
- Rez-de-chaussée et mezzanine
- Chauffage collectif
- Douche
- Cuisine équipée
- Sanitaires PMR
- Possibilité E.R.P
- ERP possible
- Surface RDC : 90 m²
Accessibilité:
Métro Mairie d'Issy (Ligne 12)
RER Issy (Ligne C)
Bus Bourgain - Général Gallieni (Ligne 123, Ligne 190), André Chenier (Ligne 290), Cresson - Gallieni (Ligne TUVIM)
Tram Jacques-Henri Lartigue (Ligne T2)
SNCF Issy (France)
Les informations sur les risques auxquels ce bien est exposé sont disponibles sur le site Géorisques : www.georisques.gouv.fr
Voir plus
Afficher les consommations énergétiques
Localisation et transport aux alentours
Favoris
Exporter
Appeler
Contacter
Signaler cette annonce










