Avec près de 80 implantations en France, Arthur Loyd est le premier réseau National de professionnels de Conseil en Immobilier d’Entreprise. Nous vous accompagnons dans vos projets sur l’ensemble d ...
En savoir plus

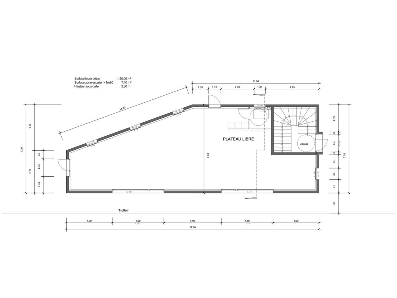
120 m²
Bureau à vendre - 120 m²
Évreux (27000)
Dernière mise à jour : Hier
Investissement locatif - Local récent bénéficiant d'une belle visibilité
Impôt Foncier : 2252,04 €//an
Régime Fiscal : Droits de mutation
Honoraires : 6% HT du prix NV à la charge de l'acquéreur
Prestations :
Accessibilité:
Autoroute Accès rapide N154 vers A13 en direction de Paris/Rouen/Le Havre
Gare À 4min en voiture
Route Au carrefour de deux boulevards majeurs d'EVREUX
Les informations sur les risques auxquels ce bien est exposé sont disponibles sur le site Géorisques : www.georisques.gouv.fr
| Étage | Type | Surfaces | Dispo | Prix(m²) | Charges | Honoraires | Fiscal |
|---|---|---|---|---|---|---|---|
| RDC | Bureaux | 120 | Immédiate | n.c. | n.c. | 6% HT du prix NV à la charge de l'acquéreur | Droits de mutation |
Impôt Foncier : 2252,04 €//an
Régime Fiscal : Droits de mutation
Honoraires : 6% HT du prix NV à la charge de l'acquéreur
Prestations :
- Situé à proximité du centre-ville, sur un boulevard, un plateau de bureaux en RDC d'un immeuble tertiaire élevé en R+1 incluant 3 places de stationnements privatives en façade.
- État locatif :
- Activité : Crèche - Loyer annuel HT HC : 23 056 euros HT HC - Bail 3/6/9 - Début du bail 06/11/2014
- Surface RDC : 120 m²
Accessibilité:
Autoroute Accès rapide N154 vers A13 en direction de Paris/Rouen/Le Havre
Gare À 4min en voiture
Route Au carrefour de deux boulevards majeurs d'EVREUX
Les informations sur les risques auxquels ce bien est exposé sont disponibles sur le site Géorisques : www.georisques.gouv.fr
Voir plus
Afficher les consommations énergétiques
Localisation et transport aux alentours
Favoris
Exporter
Appeler
Contacter
Signaler cette annonce










