Nous sommes Immprove, une grande équipe de plus de 200 experts en immobilier d’entreprise, implantés localement avec plus de 20 agences sur tout le territoire.Depuis 2009, notre proximité, notre ét ...
En savoir plus

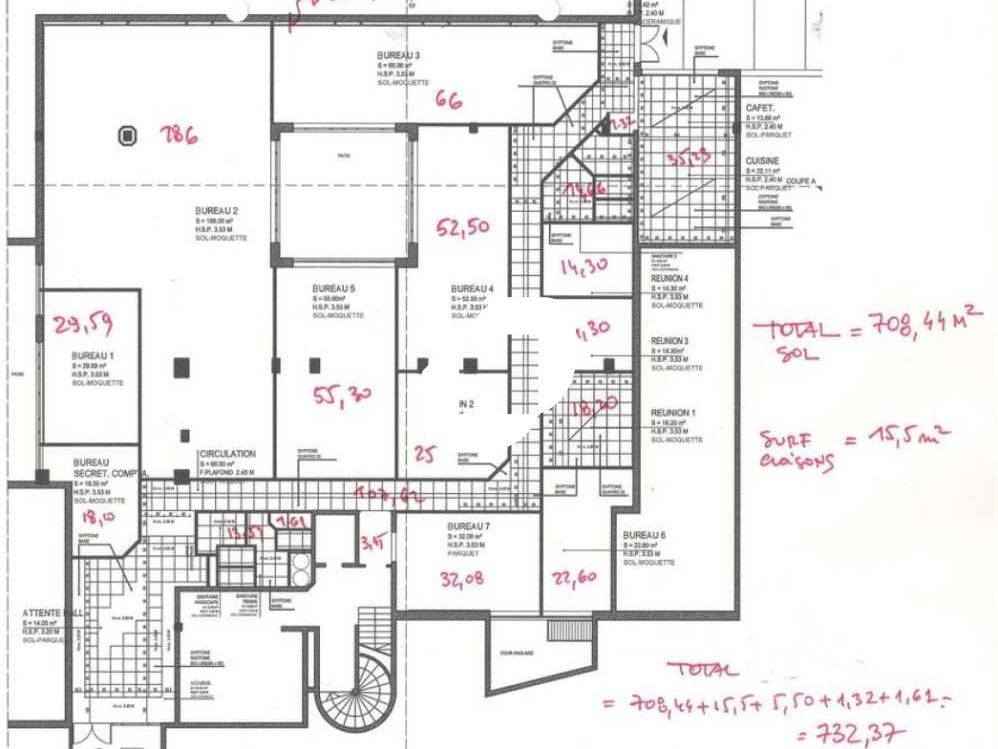
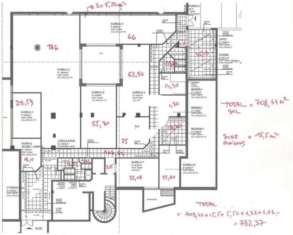
708 m²
LE NOBLET - Bureau à vendre - 708 m²
Colombes (92700)
Dernière mise à jour : Il y a 7 jours
ACCES P.M.R.
Immeuble LE NOBLET
Immprove vous propose à la vente des bureaux dans un immeuble récent avec accès PMR, idéal pour les personnes à mobilité réduite. Ces bureaux sont situés au pied du tramway, facilitant l'accès en transport en commun, et à seulement 10 minutes de La Défense. Cette offre est idéale pour les entreprises souhaitant s'installer à proximité du principal quartier d'affaires parisien, tout en bénéficiant d'une infrastructure moderne et adaptée à leurs besoins.
Impôt Foncier : 26 €//m²/an HT
Régime Fiscal : Droits d'enregistrement
Honoraires : A la charge de l'acquéreur
Taxe Bureau : 19,18 €/m²/an
Prestations :
Accessibilité:
Bus Gare de la Garenne-Colombes (Ligne 176, Ligne N152, Ligne N24), Jacqueline Auriol (Ligne 276)
Transilien La Garenne-Colombes (Ligne L)
Tram Jacqueline Auriol (Ligne T2)
SNCF La Garenne-Colombes (France)
Les informations sur les risques auxquels ce bien est exposé sont disponibles sur le site Géorisques : www.georisques.gouv.fr
Immeuble LE NOBLET
Immprove vous propose à la vente des bureaux dans un immeuble récent avec accès PMR, idéal pour les personnes à mobilité réduite. Ces bureaux sont situés au pied du tramway, facilitant l'accès en transport en commun, et à seulement 10 minutes de La Défense. Cette offre est idéale pour les entreprises souhaitant s'installer à proximité du principal quartier d'affaires parisien, tout en bénéficiant d'une infrastructure moderne et adaptée à leurs besoins.
| Étage | Type | Surfaces | Dispo | Prix(m²) | Charges | Honoraires | Fiscal |
|---|---|---|---|---|---|---|---|
| RDJ | Bureaux | 708 | Immédiate | 3107 m² HD | 80 m²/an HT | A la charge de l'acquéreur | Droits d'enregistrement |
Impôt Foncier : 26 €//m²/an HT
Régime Fiscal : Droits d'enregistrement
Honoraires : A la charge de l'acquéreur
Taxe Bureau : 19,18 €/m²/an
Prestations :
- Immeuble moderne
- Contrôle d'accès
- Accès P.M.R.
- Parties communes de bon standing
- Ascenseur P.M.R.
- Interphone
- Accès sécurisé par badge
- Trois entrées dont deux indépendantes
- Parties communes rénovées
- Accès livraison
- E.R.P.
- Très belle hauteur sous plafond
- Climatisation réversible double flux
- Une douche
- Parkings :
- 6 Empl. en S/Sol
- 2 Empl. extérieurs
- 4 empl. motos en sous-sol
- Surface RDC : 708 m²
Accessibilité:
Bus Gare de la Garenne-Colombes (Ligne 176, Ligne N152, Ligne N24), Jacqueline Auriol (Ligne 276)
Transilien La Garenne-Colombes (Ligne L)
Tram Jacqueline Auriol (Ligne T2)
SNCF La Garenne-Colombes (France)
Les informations sur les risques auxquels ce bien est exposé sont disponibles sur le site Géorisques : www.georisques.gouv.fr
Voir plus
Afficher les consommations énergétiques
Localisation et transport aux alentours
- Jacqueline Auriol290m (4min à pied)2
- Charlebourg312m (5min à pied)2
- La Garenne-Colombes404m (6min à pied)L
- Les Fauvelles823m (12min à pied)2
- Victor Basch955m (14min à pied)2
- Faubourg de l'Arche1.5km (22min à pied)2
Favoris
Exporter
Appeler
Contacter
Signaler cette annonce









