L’agence CBRE Rennes conseille et accompagne les chefs d’entreprise dans leurs projets immobiliers quels que soient leur taille et leur secteur d’activité. Spécialistes de la transaction de bureaux ...
En savoir plus

218 m²
Bureau à vendre - 218 m²
Chartres-de-Bretagne (35131)
Dernière mise à jour : Hier
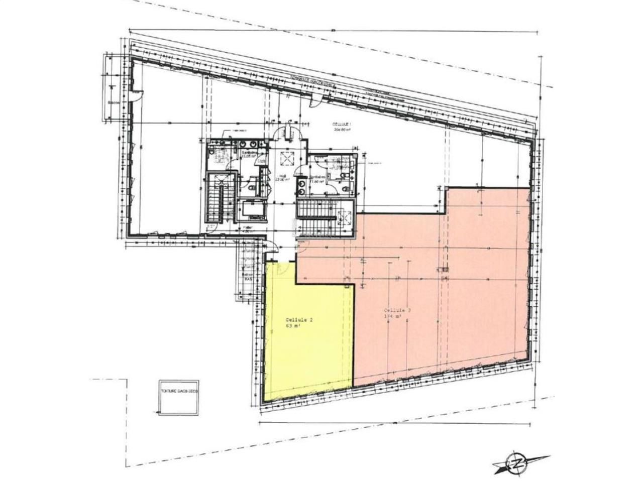
Au sein d'un parc d'affaires LA CONTERIE bénéficiant d'un accès immédiat à l'Axe Rennes-Nantes et aux grands axes, CBRE RENNES vous propose des bureaux à louer ou à acheter à CHARTRES DE BRETAGNE, lumineux câblés et climatisés d'environ 218 m² QPPCI (193,77 m² de surface carrez) au sein d'un immeuble récent. Les locaux sont complétés par 6 stationnements privatifs.
Mener à bien son projet d'implantation pour une activité professionnelle doit passer par des locaux adaptés à ses besoins.
Si ce bureau à louer ou à acheter à CHARTRES DE BRETAGNE vous intéresse ou si vous souhaitez obtenir plus d'informations, n'hésitez pas à me contacter aujourd'hui pour organiser une visite et bénéficier de toutes les informations nécessaires pour votre projet immobilier.
Impôt Foncier : 2725 €/an HT
Régime Fiscal : Droits d'enregistrement
Dépôt de garantie : 3 mois de loyer HT/HC
Paiement Loyer : trimestriel
Honoraires : 7 % HT du prix de vente HD HH à la charge de l'acquéreur
Prestations :
Accessibilité:
Aeroport à 10 mn en voiture
Route Axe Rennes-Nantes accès à proximité
Route Rocade sud à 8 mn
Les informations sur les risques auxquels ce bien est exposé sont disponibles sur le site Géorisques : www.georisques.gouv.fr
Mener à bien son projet d'implantation pour une activité professionnelle doit passer par des locaux adaptés à ses besoins.
Si ce bureau à louer ou à acheter à CHARTRES DE BRETAGNE vous intéresse ou si vous souhaitez obtenir plus d'informations, n'hésitez pas à me contacter aujourd'hui pour organiser une visite et bénéficier de toutes les informations nécessaires pour votre projet immobilier.
| Étage | Type | Surfaces | Dispo | Prix(m²) | Charges | Honoraires | Fiscal |
|---|---|---|---|---|---|---|---|
| 2 | Bureaux | 218 | Immédiate | 2000 m² HD | n.c. | 7 % HT du prix de vente HD HH à la charge de l'acquéreur | Droits d'enregistrement |
Impôt Foncier : 2725 €/an HT
Régime Fiscal : Droits d'enregistrement
Dépôt de garantie : 3 mois de loyer HT/HC
Paiement Loyer : trimestriel
Honoraires : 7 % HT du prix de vente HD HH à la charge de l'acquéreur
Prestations :
- Parc d'affaires identifié
- Immeuble construit en 2019
- Locaux lumineux
- Immeuble proposant de belles prestations
- Locaux libres de cloisonnement
- Câblage en goulotte périphérique
- Climatisation réversible
- Faux plafonds dalles led
- Sol moquette
- Sanitaires communs
- 6 stationnements privatifs extérieurs
- Immeuble indépendant
Accessibilité:
Aeroport à 10 mn en voiture
Route Axe Rennes-Nantes accès à proximité
Route Rocade sud à 8 mn
Les informations sur les risques auxquels ce bien est exposé sont disponibles sur le site Géorisques : www.georisques.gouv.fr
Voir plus
Afficher les consommations énergétiques
Favoris
Exporter
Appeler
Contacter
Signaler cette annonce
