Advenis Conseil et Transaction Strasbourg est un cabinet de conseil spécialiste de l'immobilier d'entreprise. Dirigé par Serge Kraemer, Advenis Conseil et Transaction Strasbourg est un acteur recon ...
En savoir plus

107 m²
Bureau à vendre - 107 m²
Bernolsheim (67170)
Dernière mise à jour : Hier
Dernier plateau de bureaux neuf à vendre - Bernolsheim/Brumath
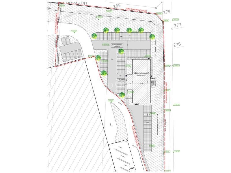
A Bernolsheim, à 26 kilomètres au nord de Strasbourg, Advenis Conseil et Transaction Strasbourg vous propose à la vente un dernier plateau de bureaux neuf de 107 m².Ces bureaux sont situés au 1er étage d'un immeuble de bureaux en R+3 à construire répondant aux normes RE2020 et équipé de panneaux photovoltaïques. Accessible par ascenseur, ils seront livrés aménagés et non cloisonnés, avec une possibilité d'ERP.Bernolsheim jouit d'un emplacement stratégique sur l'axe reliant Strasbourg, Brumath et Saverne. Idéalement située, cette commune est accessible en seulement 20 minutes au nord de Strasbourg par l'autoroute, à 20 minutes de la gare de Strasbourg et à 30 minutes de l'Aéroport International de Strasbourg-Entzheim. Elle offre ainsi un cadre de vie attractif, alliant accessibilité et tranquillité.
Les informations sur les risques auxquels ce bien est exposé sont disponibles sur le site Géorisques : www.georisques.gouv.fr
Bâtiment aux normes RE2020
Panneaux photovoltaïques
Bureaux structure béton
Ascenseur et escalier
Ensemble aménagé, non cloisonné
Sol moquette en dalle
Faux plafond avec pavés Led
Climatisation et chauffage réversible par Pompe à chaleur
Brises soleil orientables
Sanitaires H/F + PMR commun par niveau
Lots en cours d'aménagement
Possibilité d'ERP
A 26 km au Nord de Strasbourg
Autoroute A4
A 15 km d'Haguenau
Sortie Mommenheim/Bernolsheim
Zone éligible au dispositif Aides à Finalité Régionale (AFR)
Disponibilité : 2nd semestre 2026
Prix de vente : 2650 € HT / m2
Honoraires à la charge de l'acquéreur : 5 % HT
A Bernolsheim, à 26 kilomètres au nord de Strasbourg, Advenis Conseil et Transaction Strasbourg vous propose à la vente un dernier plateau de bureaux neuf de 107 m².Ces bureaux sont situés au 1er étage d'un immeuble de bureaux en R+3 à construire répondant aux normes RE2020 et équipé de panneaux photovoltaïques. Accessible par ascenseur, ils seront livrés aménagés et non cloisonnés, avec une possibilité d'ERP.Bernolsheim jouit d'un emplacement stratégique sur l'axe reliant Strasbourg, Brumath et Saverne. Idéalement située, cette commune est accessible en seulement 20 minutes au nord de Strasbourg par l'autoroute, à 20 minutes de la gare de Strasbourg et à 30 minutes de l'Aéroport International de Strasbourg-Entzheim. Elle offre ainsi un cadre de vie attractif, alliant accessibilité et tranquillité.
Les informations sur les risques auxquels ce bien est exposé sont disponibles sur le site Géorisques : www.georisques.gouv.fr
Bâtiment aux normes RE2020
Panneaux photovoltaïques
Bureaux structure béton
Ascenseur et escalier
Ensemble aménagé, non cloisonné
Sol moquette en dalle
Faux plafond avec pavés Led
Climatisation et chauffage réversible par Pompe à chaleur
Brises soleil orientables
Sanitaires H/F + PMR commun par niveau
Lots en cours d'aménagement
Possibilité d'ERP
A 26 km au Nord de Strasbourg
Autoroute A4
A 15 km d'Haguenau
Sortie Mommenheim/Bernolsheim
Zone éligible au dispositif Aides à Finalité Régionale (AFR)
Disponibilité : 2nd semestre 2026
Prix de vente : 2650 € HT / m2
Honoraires à la charge de l'acquéreur : 5 % HT
| bât/lot | typologie | surface |
| 01 | bureaux | 107 |
Voir plus
Afficher les consommations énergétiques
Localisation et transport aux alentours
Favoris
Exporter
Appeler
Contacter
Signaler cette annonce
