Nous sommes Immprove, une grande équipe de plus de 200 experts en immobilier d’entreprise, implantés localement avec plus de 20 agences sur tout le territoire.Depuis 2009, notre proximité, notre ét ...
En savoir plus



266 m²
Bureau à vendre - 266 m²
Asnières-sur-Seine (92600)
Dernière mise à jour : Il y a 3 jours
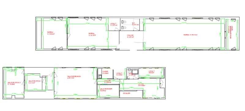
Découvrez votre nouveau bureau flottant ! Charmante péniche très bien entretenue composée de 265,5m² sur deux niveaux ainsi qu'une double terrasse de 100m². Située sur les bords de Seine, vous apprécierez le cadre et le calme tout en étant situé à proximité du métro, des axes routiers et des commodités. A destination exlusivement de bureaux, la péniche se décompose en open space, bureaux cloisonnés, salle de réunion, cuisine équipée et espace détente.
Les + : indépendance, luminosité, atypisme, parkings et clés en main ! N'hésitez pas à nous contacter si vous souhaitez plus d'informations sur ce type d'acquisition.
Impôt Foncier : 17,29 €/m²/ an HT
Régime Fiscal : TVA (20%)
Honoraires : 5% HT du prix de vente HD à la charge de l'acquéreur
Taxe Bureau : 21,21 €/m²/an
Prestations :
Accessibilité:
Metro Gabriel Péri Asnières-Gennevilliers (13)
Autoroute A86 / D7
Train SNCF Asnières sur Seine
Les informations sur les risques auxquels ce bien est exposé sont disponibles sur le site Géorisques : www.georisques.gouv.fr
Les + : indépendance, luminosité, atypisme, parkings et clés en main ! N'hésitez pas à nous contacter si vous souhaitez plus d'informations sur ce type d'acquisition.
| Étage | Type | Surfaces | Dispo | Prix(m²) | Charges | Honoraires | Fiscal |
|---|---|---|---|---|---|---|---|
| Terrasse | 100 | Immédiate | n.c. | n.c. | 5% HT du prix de vente HD à la charge de l'acquéreur | TVA (20%) | |
| 1 | Bureaux | 117 | Immédiate | 3325 m² HD | 26 m²/an HT | 5% HT du prix de vente HD à la charge de l'acquéreur | TVA (20%) |
| RDC | Bureaux | 148,5 | Immédiate | 3325 m² HD | 26 m²/an HT | 5% HT du prix de vente HD à la charge de l'acquéreur | TVA (20%) |
| Parkings | Immédiate | n.c. | n.c. | 5% HT du prix de vente HD à la charge de l'acquéreur | TVA (20%) |
Impôt Foncier : 17,29 €/m²/ an HT
Régime Fiscal : TVA (20%)
Honoraires : 5% HT du prix de vente HD à la charge de l'acquéreur
Taxe Bureau : 21,21 €/m²/an
Prestations :
- Péniche indépendante
- Accès privatif sur rue
- Télésurveillance
- Site clos
- Fibre optique + câblage
- Double terrasse privative
- Bon état
- Accueil
- Espace ouvert
- Bureaux cloisonnés
- Salle de réunion
- Espace détente
- Local technique
- Locaux traversants
- Locaux lumineux
- Terrasse privative
- Sol PVC imitation parquet
- Plinthes périphériques
- Câblage informatique et téléphonique
- Prises RJ45
- Alarme
- Chauffage électrique
- Cuisine
- Sanitaires privatifs
- Douche
- Immeuble indépendant
- Surface RDC : 148,5 m²
Accessibilité:
Metro Gabriel Péri Asnières-Gennevilliers (13)
Autoroute A86 / D7
Train SNCF Asnières sur Seine
Les informations sur les risques auxquels ce bien est exposé sont disponibles sur le site Géorisques : www.georisques.gouv.fr
Voir plus
Afficher les consommations énergétiques
Favoris
Exporter
Appeler
Contacter
Signaler cette annonce
