L''agence BNP Paribas Real Estate est présente à Bordeaux depuis 40 ans. Elle accompagne les investisseurs et les entreprises dans chaque projet d''agrandissement, d''acquisition, de location et de ...
En savoir plus

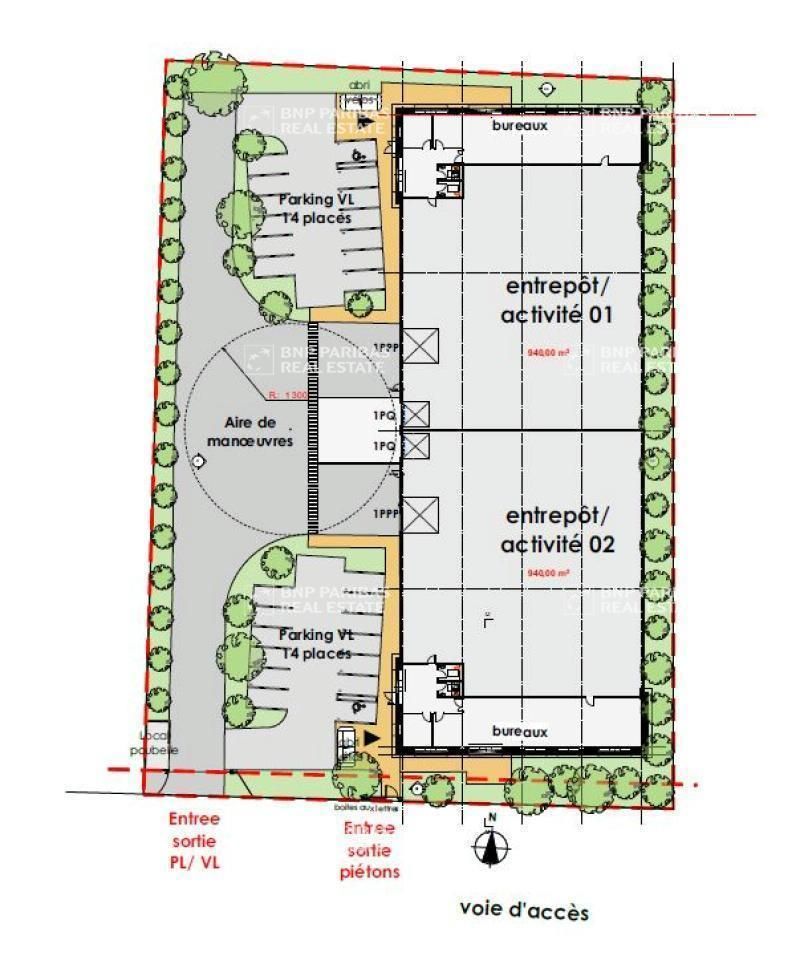
Activité/Entrepôt à vendre - 2295 m²
*** BORDEAUX OUEST - MERIGNAC : BTIMENT CLE EN MAIN ***
Rare ! Projet clé en main btiment indépendant à l'acquisition à Mérignac !
BNP PARIBAS REAL ESTATE ADVISORY FRANCE vous propose la construction d'un btiment clé en main de 2 300 m² sur une parcelle de 5 721 m².
Cette parcelle de 5 721 m² est situé à Mérignac, à l'Ouest de la Métropole de Bordeaux, au sein du Parc d'activités Vert Castel 2. Toujours en cours de développement, ce dernier s'inscrit dans l'opération d'Intérêt Métropolitain " OIM BORDEAUX AEROPARC ".
Jouxtant le Haillan et Magudas, au nord de l'aéroport international de Bordeaux-Mérignac, le parc est implanté au coeur d'un secteur tertiaire particulièrement dynamique, avec une industrie aéronautique de premier ordre et des projets ambitieux en plein développement.
Il profite également d'une situation stratégique pour les entreprises en recherche d'un accès facile et rapide.
Il est accessible via la rocade sorties n°9 "Saint-Médard-en-Jalles, Le Haillan, Bordeaux-Caudéran, Bordeaux-Capeyron" et n°10 "Cap-Ferret, Andernos, Martignas-sur-Jalle, Aéroparc".
Il est desservi par les transports en commun :
Bus n°26, 30 et 39 à
Tramway A " Le Haillan Rostand " à 2,5 km.
La surface de plancher constructible de la parcelle à vendre est de 2 300 m² .
Nous vous accompagnons dans la construction de votre btiment d'activité à usage de bureaux, atelier, entrepôt ou encore showroom :
Proposition de foncier
Etude d'implantation
Rencontre avec le constructeur spécialisé en immobilier d'entreprise
Montage de l'opération.
Vous souhaitez en savoir plus ? Contactez-moi au 06 08 24 50 96
Pour consulter toutes nos offres : https://www.bnppre.fr/bordeaux.
Zoom sur le secteur Ouest de Bordeaux Métropole :
Le secteur Ouest est le premier marché de périphérie en bureaux. La taille du parc est de 762 000 m².
L'Opération d'Intérêt Métropolitain (OIM) Bordeaux Aéroparc présente un cadre exceptionnel pour accueillir les entreprises de l'Aéronautique-Spatial-Défense (ASD). Riche de 7 entreprises majeures et 110 sous-traitants de la filière ASD, c'est un grand territoire de projets prioritaires pour Bordeaux Métropole.
L' OIM Bordeaux Aéroparc permettra la création à terme de 10 000 emplois, grce à un programme d'aménagement viabilisant 400 ha de foncier. L'arrivée du tramway à l'aéroport depuis le centre-ville de Bordeaux est un véritable atout pour ce territoire ainsi qu'une desserte de la rocade.
La ville de Mérignac appelé le " poumon économique et fleuron aéronautique " constitue un moteur économique majeur pour la région.
Chiffres clés :
> 2 500 ha (dont 1 500 ha Aéroparc)
> 3 communes Mérignac, Le Haillan et saint Médard en Jalles
> 35 000 emplois
> 1er pôle industriel de la région
> 7 entreprises majeures filière ASD
> 110 sous-traitants ASD
> Base de l'Armée de l'air francaise et Simmad (entretien du matériel aéronautique de l'armée).
Disponibilité: Nous consulterHonoraires: 5% HT du prix HT/HD. à la signature de l'acte
| Fiche technique du bien | |
|---|---|
| Etat des locaux | Neuf |
