L’agence CBRE Lille conseille et accompagne les chefs d’entreprise dans leurs projets immobiliers quels que soient leur taille et leur secteur d’activité. Spécialistes de la transaction de bureaux, ...
En savoir plus

50 290 m²
Prix sur demande
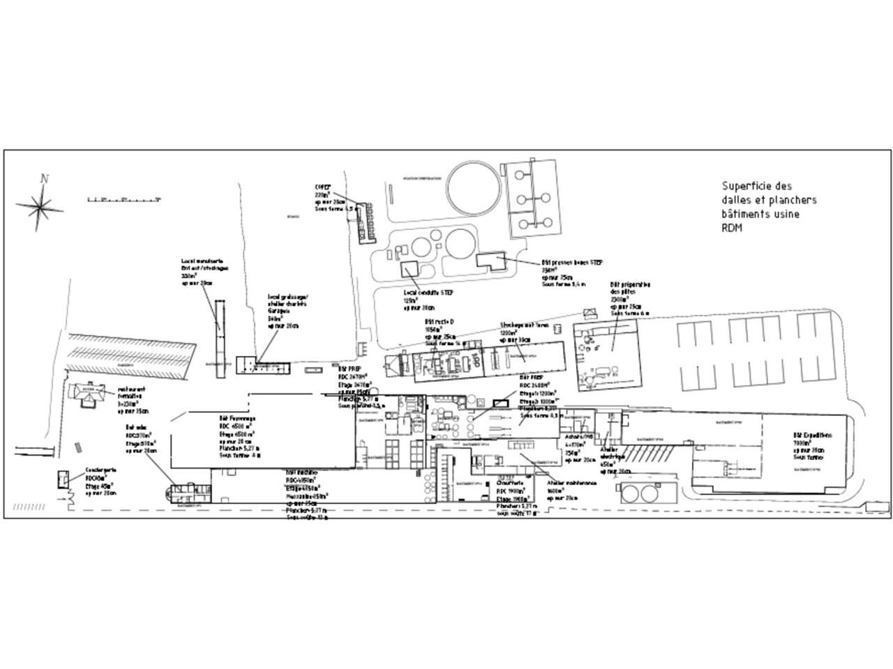
Activité/Entrepôt à vendre - 50290 m²
Blendecques (62575)
Dernière mise à jour : Hier
CBRE Lille spécialiste de l'immobilier d'entreprise vous propose à la vente une ancienne usine de type cartonnerie située sur la commune de Blendecques (62575). Sur une emprise foncière de 25 hectares, le site industriel présente une surface bâtie de 31 937 m² au sol, soit 50 290 m² en surface développée. Le site industriel est situé à proximité de la ZA Porte Multimodale et accessible depuis l'autoroute A26.
Régime Fiscal : Droits d'enregistrement
Honoraires : 5% HT du prix de vente HD ou HT à la charge de l'acquéreur
Prestations :
Accessibilité:
Aeroport 3 aéroports: Paris-Charles de Gaulle, Lesquin et Beauvais-Tillé, offrant chacun des vols domestiques et internationaux.
Route Accès direct à trois capitales européennes:
Route 3h de Paris
Route 1h de Lille
Route 2h30 de Bruxelles
SNCF 1h de Paris
SNCF 1h20 de Londres
SNCF 35 min de Bruxelles
Aeroport Aéroport de Lesquin: 1h -70 km
Aeroport Aéroport CDG : 2h15 -230 km
Port de Dunkerque : 40 min -40 km
Autoroute Autoroute A26: 7 min -7 km
Autoroute Dunkerque: 45 min -50 km
Autoroute Calais : 40 min -45 km
Autoroute Lille : 55 min -65 km
Les informations sur les risques auxquels ce bien est exposé sont disponibles sur le site Géorisques : www.georisques.gouv.fr
| Étage | Type | Surfaces | Dispo | Prix(m²) | Charges | Honoraires | Fiscal |
|---|---|---|---|---|---|---|---|
| Entrepôts | 50290 | Immédiate | n.c. | n.c. | 5% HT du prix de vente HD ou HT à la charge de l'acquéreur | Droits d'enregistrement |
Régime Fiscal : Droits d'enregistrement
Honoraires : 5% HT du prix de vente HD ou HT à la charge de l'acquéreur
Prestations :
- Surface terrain : 254834
Accessibilité:
Aeroport 3 aéroports: Paris-Charles de Gaulle, Lesquin et Beauvais-Tillé, offrant chacun des vols domestiques et internationaux.
Route Accès direct à trois capitales européennes:
Route 3h de Paris
Route 1h de Lille
Route 2h30 de Bruxelles
SNCF 1h de Paris
SNCF 1h20 de Londres
SNCF 35 min de Bruxelles
Aeroport Aéroport de Lesquin: 1h -70 km
Aeroport Aéroport CDG : 2h15 -230 km
Port de Dunkerque : 40 min -40 km
Autoroute Autoroute A26: 7 min -7 km
Autoroute Dunkerque: 45 min -50 km
Autoroute Calais : 40 min -45 km
Autoroute Lille : 55 min -65 km
Les informations sur les risques auxquels ce bien est exposé sont disponibles sur le site Géorisques : www.georisques.gouv.fr
Voir plus
Afficher les consommations énergétiques
Favoris
Exporter
Appeler
Contacter
Signaler cette annonce


