Cushman & Wakefield Toulouse est un cabinet de conseil en immobilier d'entreprise actif depuis 1980. Son équipe de professionnels conseille les PME, les ETI, les grandes entreprises et les investis ...
En savoir plus

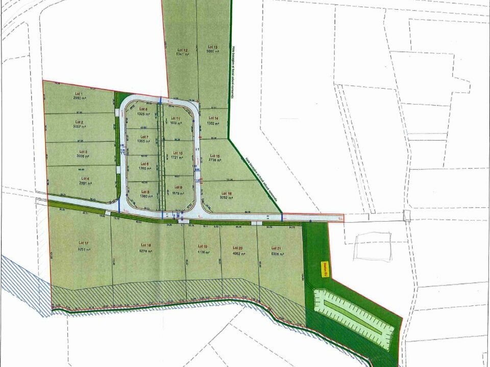
17 816 m² divisible dès 1 352 m²
Terrain à vendre - 17816 m²
Bressols (82710)
Dernière mise à jour : Il y a 7 mois
TERRAINS INDUSTRIELS A VENDRE
Les informations sur les risques auxquels ce bien est exposé sont disponibles sur le site Géorisques : www.georisques.gouv.fr
Les terrains sont prêts à bâtir et peuvent être vendus rassemblés selon les possibilités.
Les réseaux sont réalisés
Les accès sont réalisés.
Les fluides sont en attente
Accessibilité :
Accès via A 62
Disponibilité : à l'acte
Prix de vente : 1870680 €
Honoraires à la charge de l'acquéreur : 7 % HT
Cushman et Wakefield Toulouse vous propose un nouveau lotissement industriel en cours de réalisation à VENDRE.
Les terrains à usage d'activités sont idéalement situés au sud de Montauban sur la commune de Bressols et à proximité de la ZAC de Grand Sud Logistique
Les terrains sont viabilisés, prêts à construire
Les informations sur les risques auxquels ce bien est exposé sont disponibles sur le site Géorisques : www.georisques.gouv.fr
Les terrains sont prêts à bâtir et peuvent être vendus rassemblés selon les possibilités.
Les réseaux sont réalisés
Les accès sont réalisés.
Les fluides sont en attente
Accessibilité :
Accès via A 62
Disponibilité : à l'acte
Prix de vente : 1870680 €
Honoraires à la charge de l'acquéreur : 7 % HT
| batiment - lot | surface | prix vente | prix vente m2 | honoraires | disponibilité |
| lot 8 | 1 325 m² | 139 125 € ht | 105 € ht | 9 739 € ht | oui |
| lot 10 | 1 721 m² | 180 705 € ht | 105 € ht | 12 649 € ht | oui |
| lot 11 | 1 659 m² | 174 195 € ht | 105 € ht | 12 194 € ht | oui |
| lot 14 | 1 352 m² | 141 960 € ht | 105 € ht | 9 937 € ht | oui |
| lot 15 | 2 738 m² | 273 800 € ht | 100 € ht | 19 166 € ht | oui |
Voir plus
Afficher les consommations énergétiques
Favoris
Exporter
Appeler
Contacter
Signaler cette annonce




