Avec près de 80 implantations en France, Arthur Loyd est le premier réseau National de professionnels de Conseil en Immobilier d’Entreprise. Nous vous accompagnons dans vos projets sur l’ensemble d ...
En savoir plus

10 000 m²
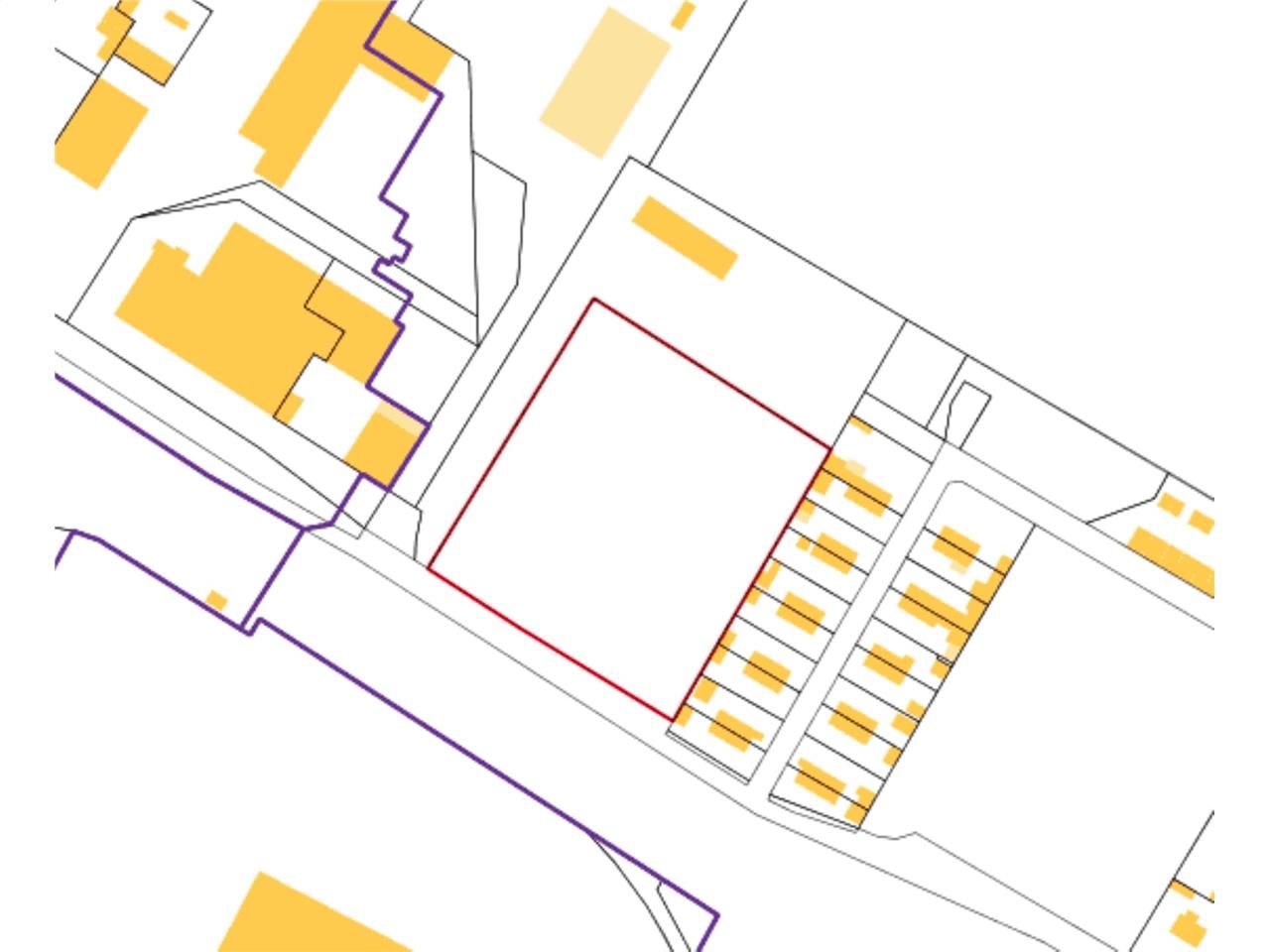
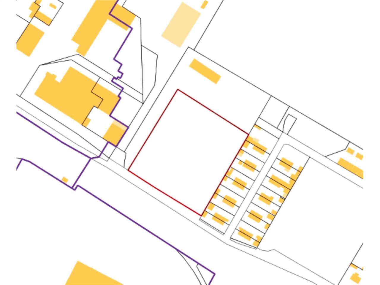
Terrain à vendre - 10000 m²
Aubevoye (27940)
Dernière mise à jour : Hier
Terrain à bâtir à destination d'activité industrielle et artisanale d'une surface de 10 000 m2
Régime Fiscal : Droits de mutation
Honoraires : 7% HT du montant NV à la charge de l'acquéreur
Prestations :
Les informations sur les risques auxquels ce bien est exposé sont disponibles sur le site Géorisques : www.georisques.gouv.fr
| Étage | Type | Surfaces | Dispo | Prix(m²) | Charges | Honoraires | Fiscal |
|---|---|---|---|---|---|---|---|
| Terrain | 10000 | 40 m² HD | n.c. | 7% HT du montant NV à la charge de l'acquéreur | Droits de mutation |
Régime Fiscal : Droits de mutation
Honoraires : 7% HT du montant NV à la charge de l'acquéreur
Prestations :
- Terrain à batir indépendant, à destination industrielle et artisanale d'une contenance de 10 000 m2
Les informations sur les risques auxquels ce bien est exposé sont disponibles sur le site Géorisques : www.georisques.gouv.fr
Voir plus
Afficher les consommations énergétiques
Localisation et transport aux alentours
Favoris
Exporter
Appeler
Contacter
Signaler cette annonce
