Depuis 2003, KEOPS Toulouse accompagne les entreprises dans leurs projets immobiliers sur toute l’aire urbaine toulousaine.Notre équipe de professionnels passionnés met à votre service sa connaissa ...
En savoir plus

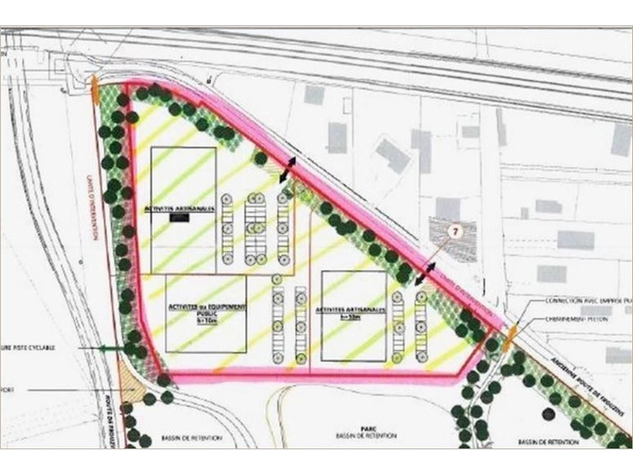
13 800 m² divisible dès 4 600 m²
Prix sur demande
Terrain à vendre - 13800 m²
Roques (31120)
Publiée : Il y a 4 jours
Terrains industriels à bâtir, situés au sud de Toulouse, à proximité immédiate du CC et IKEA
Régime Fiscal : T.V.A.
Dépôt de garantie : 3 mois de loyer HT HC
Honoraires : 5 % HT du prix de vente HT
Prestations :
Accessibilité:
Accès : par A64 sortie n° 36 "Roques" Par route d'Espagne
Les informations sur les risques auxquels ce bien est exposé sont disponibles sur le site Géorisques : www.georisques.gouv.fr
| Étage | Type | Surfaces | Dispo | Prix(m²) | Charges | Honoraires | Fiscal |
|---|---|---|---|---|---|---|---|
| Terrain | 9200 | Immédiate | n.c. | n.c. | 5 % HT du prix de vente HT | T.V.A. | |
| Terrain | 4600 | Immédiate | n.c. | n.c. | 5 % HT du prix de vente HT | T.V.A. |
Régime Fiscal : T.V.A.
Dépôt de garantie : 3 mois de loyer HT HC
Honoraires : 5 % HT du prix de vente HT
Prestations :
- Terrain industriel d'une surface de 13 800 m² divisibles à partir de 4 600 m² HSP max 10 m Terrains viabilisés
Accessibilité:
Accès : par A64 sortie n° 36 "Roques" Par route d'Espagne
Les informations sur les risques auxquels ce bien est exposé sont disponibles sur le site Géorisques : www.georisques.gouv.fr
Voir plus
Afficher les consommations énergétiques
Localisation et transport aux alentours
Favoris
Exporter
Appeler
Contacter
Signaler cette annonce
