Pôle Implantation Entreprises est un service opérationnel dans toutes les régions de France pour accompagner les dirigeants d’entreprises dans leurs recherches immobilières, mais aussi sur l’ensemb ...
En savoir plus

5 542 m²
Terrain à vendre - 5542 m²
Mercin-et-Vaux (02200)
Dernière mise à jour : Il y a 2 jours
Terrain industriels dans zone PME artisanale à vendre - Mercin et Vaux (02)
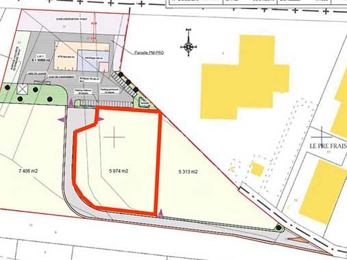
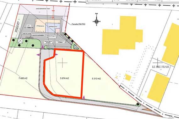
Terrain de 5 542 m² à acheter en zone PME artisanale
Les informations sur les risques auxquels ce bien est exposé sont disponibles sur le site Géorisques : www.georisques.gouv.fr
Accessibilité :
LocalisationMercin et Vaux, à côté de Soissons, accès direct RN31, direction Compiègne.Accès direct à la RN31 et RN2, connexion gratuite au Grand Paris en 45 min, raccordement à autoroutes A1 (Paris-Lille) / A4 (Paris-Strasbourg) / A26 (Lyon-Lille) en 30 min.
Gares TGV les plus proches : Paris-CDG et Eurodisney en 40 min par la route.
Accès à Paris par le train depuis la gare de Soissons en 1h (12 A/R par jour).Gare de Soissons à 10 min - Aéroport international Paris-CDG en 45 min.
Disponibilité :
Prestations :
Terrain nu, libéré des fouilles.
Prix de vente : 193970 € HT
surface foncière : 5 542 m²
Terrain de 5 542 m² à acheter en zone PME artisanale
Situé sur une zone d'activités artisanales aux portes du centre-ville avec un accès direct à la RN31, Direction Compiègne.
Les informations sur les risques auxquels ce bien est exposé sont disponibles sur le site Géorisques : www.georisques.gouv.fr
Accessibilité :
LocalisationMercin et Vaux, à côté de Soissons, accès direct RN31, direction Compiègne.Accès direct à la RN31 et RN2, connexion gratuite au Grand Paris en 45 min, raccordement à autoroutes A1 (Paris-Lille) / A4 (Paris-Strasbourg) / A26 (Lyon-Lille) en 30 min.
Gares TGV les plus proches : Paris-CDG et Eurodisney en 40 min par la route.
Accès à Paris par le train depuis la gare de Soissons en 1h (12 A/R par jour).Gare de Soissons à 10 min - Aéroport international Paris-CDG en 45 min.
Disponibilité :
Prestations :
Terrain nu, libéré des fouilles.
Prix de vente : 193970 € HT
surface foncière : 5 542 m²
Voir plus
Afficher les consommations énergétiques
Favoris
Exporter
Appeler
Contacter
Signaler cette annonce



