Geolink Expansion propose un service simple et gratuit de recherche de locaux pour toutes les entreprises. Grâce à son réseau de collectivités locales et de gestionnaires de zones d’activités, Geol ...
En savoir plus

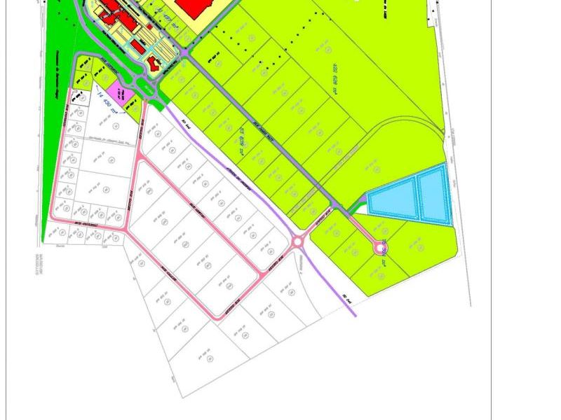
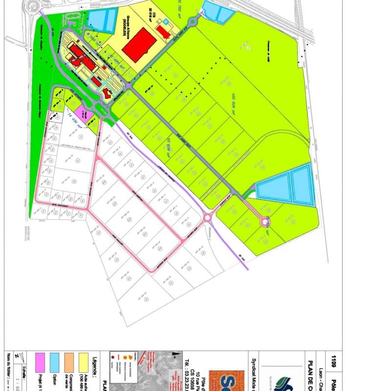
40 000 m² divisible dès 2 000 m²
Terrain à vendre - 40000 m²
Laon (02000)
Dernière mise à jour : Il y a 6 mois
Terrains industriels dans les Hauts-de-France/Laon
Terrains industriels dans les Hauts-de-France, au sein du pôle d'activités du Griffon. Terrains industriels situés à Laon, dans l'Aisne, sur un emplacement de qualité, avec accessibilité et visibilité depuis l'autoroute A26, embranchement à la ligne de chemin de fer possible. Des parcelles de terrains industriels sont disponibles, à partir de 2000m², à 20 /m².
Terrains industriels dans les Hauts-de-France, au sein du pôle d'activités du Griffon. Terrains industriels situés à Laon, dans l'Aisne, sur un emplacement de qualité, avec accessibilité et visibilité depuis l'autoroute A26, embranchement à la ligne de chemin de fer possible. Des parcelles de terrains industriels sont disponibles, à partir de 2000m², à 20 /m².
Voir plus
Afficher les consommations énergétiques
Localisation et transport aux alentours
Favoris
Exporter
Appeler
Contacter
Signaler cette annonce
