L’agence CBRE Nice-Sophia Antipolis conseille et accompagne les chefs d’entreprise dans leurs projets immobiliers quels que soient leur taille et leur secteur d’activité. Spécialistes de la transac ...
En savoir plus

2 000 m²
Terrain à vendre - 2000 m²
Grasse (06130)
Dernière mise à jour : Aujourd'hui
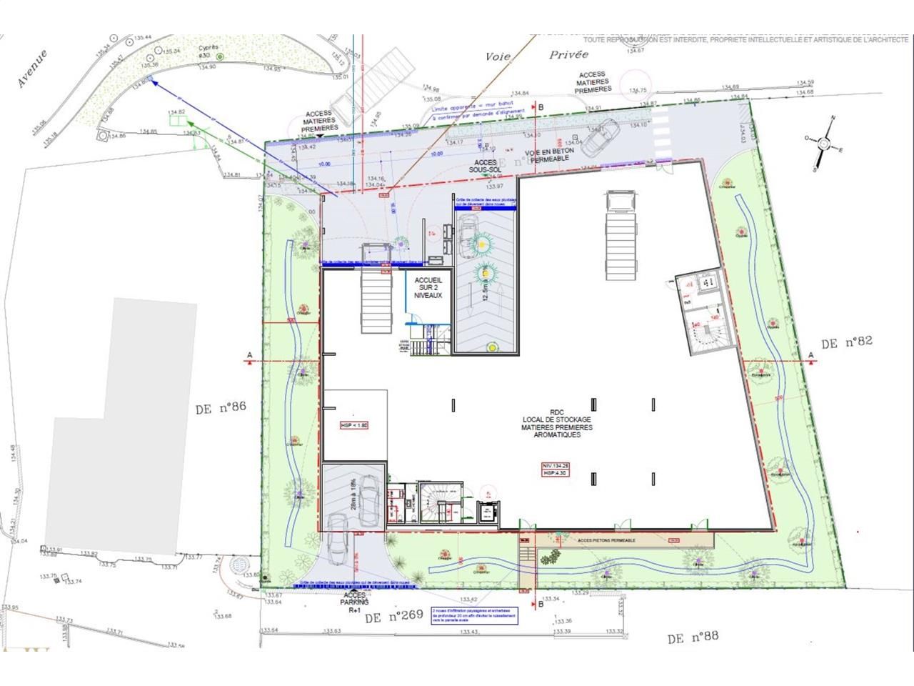
Situé sur la zone du Plan de Grasse à GRASSE (06130), CBRE vous propose à la VENTE un terrain idéalement situé dans un environnent commercial et industriel. PC obtenu pour construire un bâtiment d'une surface de 3069 m² SPD, sur 3 niveaux + 1 sous-sol pour stationnement.
Terrain situé sur l'axe Mouans Sartoux/Grasse.
Idéalement situé, proche des services de proximité et des axes routiers.
Si ce terrain vous intéresse, n'hésitez pas à nous contacter pour organiser une visite et bénéficier de toutes les informations nécessaires pour votre projet immobilier.
Grasse est à moins de 15 mn de la technopole de Sophia-Antipolis autant de facteurs qui incitent de nombreuses entreprises à y louer ou acheter des entrepôts, terrains ou locaux d'activité
. Par la RD6185, qui relie Grasse à Cannes et à l'autoroute A8 (sortie 42).
. Transports en commun : Réseau Sillages
. Accès en train : la gare SNCF de Grasse est connectée à Cannes, Nice et Vintimille via les lignes TER.
Régime Fiscal : T.V.A.
Honoraires : 5% HT du prix de vente HT à la charge de l'acquéreur
Prestations :
Accessibilité:
Bus Réseau urbain
Route D6185
Autoroute Autoroute A8 à 15 mn
Les informations sur les risques auxquels ce bien est exposé sont disponibles sur le site Géorisques : www.georisques.gouv.fr
Terrain situé sur l'axe Mouans Sartoux/Grasse.
Idéalement situé, proche des services de proximité et des axes routiers.
Si ce terrain vous intéresse, n'hésitez pas à nous contacter pour organiser une visite et bénéficier de toutes les informations nécessaires pour votre projet immobilier.
Grasse est à moins de 15 mn de la technopole de Sophia-Antipolis autant de facteurs qui incitent de nombreuses entreprises à y louer ou acheter des entrepôts, terrains ou locaux d'activité
. Par la RD6185, qui relie Grasse à Cannes et à l'autoroute A8 (sortie 42).
. Transports en commun : Réseau Sillages
. Accès en train : la gare SNCF de Grasse est connectée à Cannes, Nice et Vintimille via les lignes TER.
| Étage | Type | Surfaces | Dispo | Prix(m²) | Charges | Honoraires | Fiscal |
|---|---|---|---|---|---|---|---|
| Terrain | 2000 | Immédiate | 700 m² HT | n.c. | 5% HT du prix de vente HT à la charge de l'acquéreur | T.V.A. |
Régime Fiscal : T.V.A.
Honoraires : 5% HT du prix de vente HT à la charge de l'acquéreur
Prestations :
- Terrain constructible d'une surface d'environ 2 000 m²
- Terrain situé en zone UGi pour activités industrielles (hors artisanat, commerce de gros)
- PC obtenu
- Projet pour une surface de 3 069 m² SDP sur 3 niveaux + 1 sous-sol pour stationnement (40 places dont 3 extérieures)
- Surface RDC : 0 m²
Accessibilité:
Bus Réseau urbain
Route D6185
Autoroute Autoroute A8 à 15 mn
Les informations sur les risques auxquels ce bien est exposé sont disponibles sur le site Géorisques : www.georisques.gouv.fr
Voir plus
Afficher les consommations énergétiques
Favoris
Exporter
Appeler
Contacter
Signaler cette annonce
