Spécialiste de Toulouse, LOCO² est une société de conseil en immobilier d'entreprise qui accompagne ses clients à l'achat ou à la location, qu'ils soient propriétaires, investisseurs ou utilisateur ...
En savoir plus

2 139 m²
Terrain à vendre - 2139 m²
Castanet-Tolosan (31320)
Dernière mise à jour : Il y a 2 jours
Terrain à vendre zone de VIC Au Sud Est de Toulouse, secteur Labège - Escalquens, LOCO² vous propose à la vente un terrain situé dans la dynamique zone artisanale de Vic à Castanet Tolosan, au coeur du Sicoval.
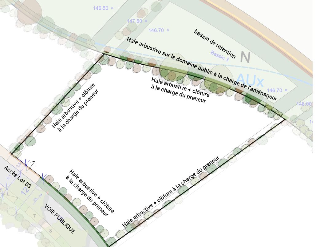
Programme les Haies de Vic ; possibilité d'acquérir en plus un PC déjà obtenu sur ce site (nous consulter).
Les voiries, neuves, ont été livrées l'an passé sur cette extension de zone.
Environnement de travail qualitatif : Canal du Midi, Décathlon, padel, zone de la Masquère, etc.
Accès rapide au périphérique / rocade et Autoroute A61;
Aspects financiers :
Description honoraires : 7% HT du prix de vente, en sus du prix ci-dessus
Taxe foncière : 22 €
Programme les Haies de Vic ; possibilité d'acquérir en plus un PC déjà obtenu sur ce site (nous consulter).
Les voiries, neuves, ont été livrées l'an passé sur cette extension de zone.
Environnement de travail qualitatif : Canal du Midi, Décathlon, padel, zone de la Masquère, etc.
Accès rapide au périphérique / rocade et Autoroute A61;
Aspects financiers :
Description honoraires : 7% HT du prix de vente, en sus du prix ci-dessus
Taxe foncière : 22 €
Voir plus
Afficher les consommations énergétiques
Localisation et transport aux alentours
Favoris
Exporter
Appeler
Contacter
Signaler cette annonce




