Arthur Loyd Bretagne est une société de conseil en immobilier d'entreprise de la métropole brestoise. Spécialiste de l’immobilier d’entreprise sur le Finistère, les Côtes-d’Armor, l’Ille et Vilaine ...
En savoir plus

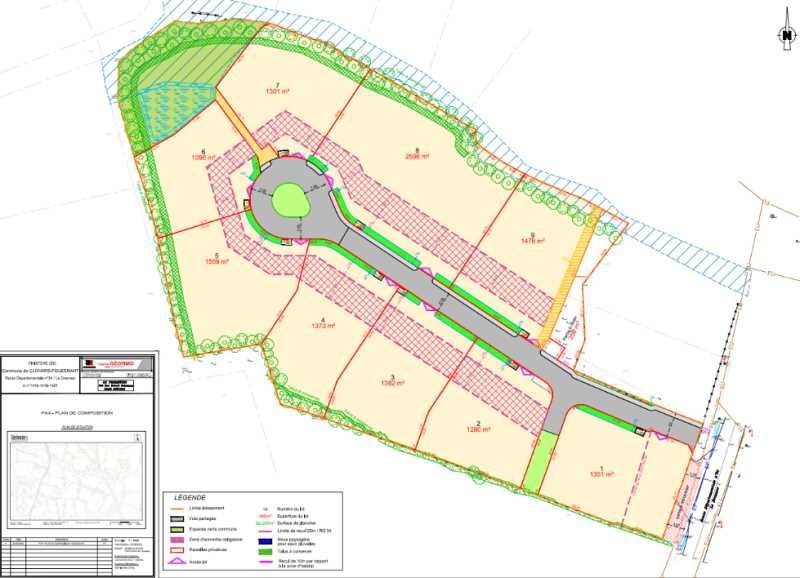
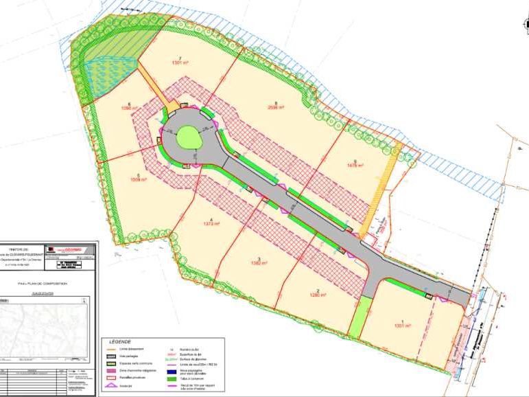
8 185 m² divisible dès 1 096 m²
Prix sur demande
Terrain à vendre - 8185 m²
Clohars-Fouesnant (29950)
Dernière mise à jour : Il y a 13 jours
Terrains à vendre à Clohars Fouesnant idéal pour activités d'artisans
Arthur Loyd Bretagne vous propose une opportunité unique d'acquérir des terrains sur une zone d'activité en plein développement, située à Clohars-Fouesnant dans le Finistère. Le site est sécurisé par un portail.
Caractéristiques principales :
- Emplacement stratégique sur un axe passant
- Possibilité de construction de locaux d'activités livrés clé en main selon vos besoins
- Deux sens de circulation pour une meilleure accessibilité et fluidité
- Projet entièrement modulable en fonction de votre cahier des charges
Idéal pour développer votre activité dans un cadre dynamique et en pleine expansion.
Prestations :
Accessibilité:
Route Sur l'axe D34 à 16 minutes de Quimper
Aménagement de voies douces prévu à moyen terme pour relier la zone de Ty Roud Guen à Bénodet.
Les informations sur les risques auxquels ce bien est exposé sont disponibles sur le site Géorisques : www.georisques.gouv.fr
Arthur Loyd Bretagne vous propose une opportunité unique d'acquérir des terrains sur une zone d'activité en plein développement, située à Clohars-Fouesnant dans le Finistère. Le site est sécurisé par un portail.
Caractéristiques principales :
- Emplacement stratégique sur un axe passant
- Possibilité de construction de locaux d'activités livrés clé en main selon vos besoins
- Deux sens de circulation pour une meilleure accessibilité et fluidité
- Projet entièrement modulable en fonction de votre cahier des charges
Idéal pour développer votre activité dans un cadre dynamique et en pleine expansion.
| Étage | Type | Surfaces | Dispo | Prix(m²) | Charges | Honoraires | Fiscal |
|---|---|---|---|---|---|---|---|
| Terrain | 1555 | n.c. | n.c. | ||||
| Terrain | 1478 | n.c. | n.c. | ||||
| Terrain | 1382 | n.c. | n.c. | ||||
| Terrain | 1373 | n.c. | n.c. | ||||
| Terrain | 1301 | n.c. | n.c. | ||||
| Terrain | 1096 | n.c. | n.c. |
Prestations :
- terrains viabilisés
- Site sécurisé par un portail
Accessibilité:
Route Sur l'axe D34 à 16 minutes de Quimper
Aménagement de voies douces prévu à moyen terme pour relier la zone de Ty Roud Guen à Bénodet.
Les informations sur les risques auxquels ce bien est exposé sont disponibles sur le site Géorisques : www.georisques.gouv.fr
Voir plus
Afficher les consommations énergétiques
Favoris
Exporter
Appeler
Contacter
Signaler cette annonce
