L’agence CBRE Bordeaux conseille et accompagne les chefs d’entreprise dans leurs projets immobiliers quels que soient leur taille et leur secteur d’activité. Spécialistes de la transaction de burea ...
En savoir plus

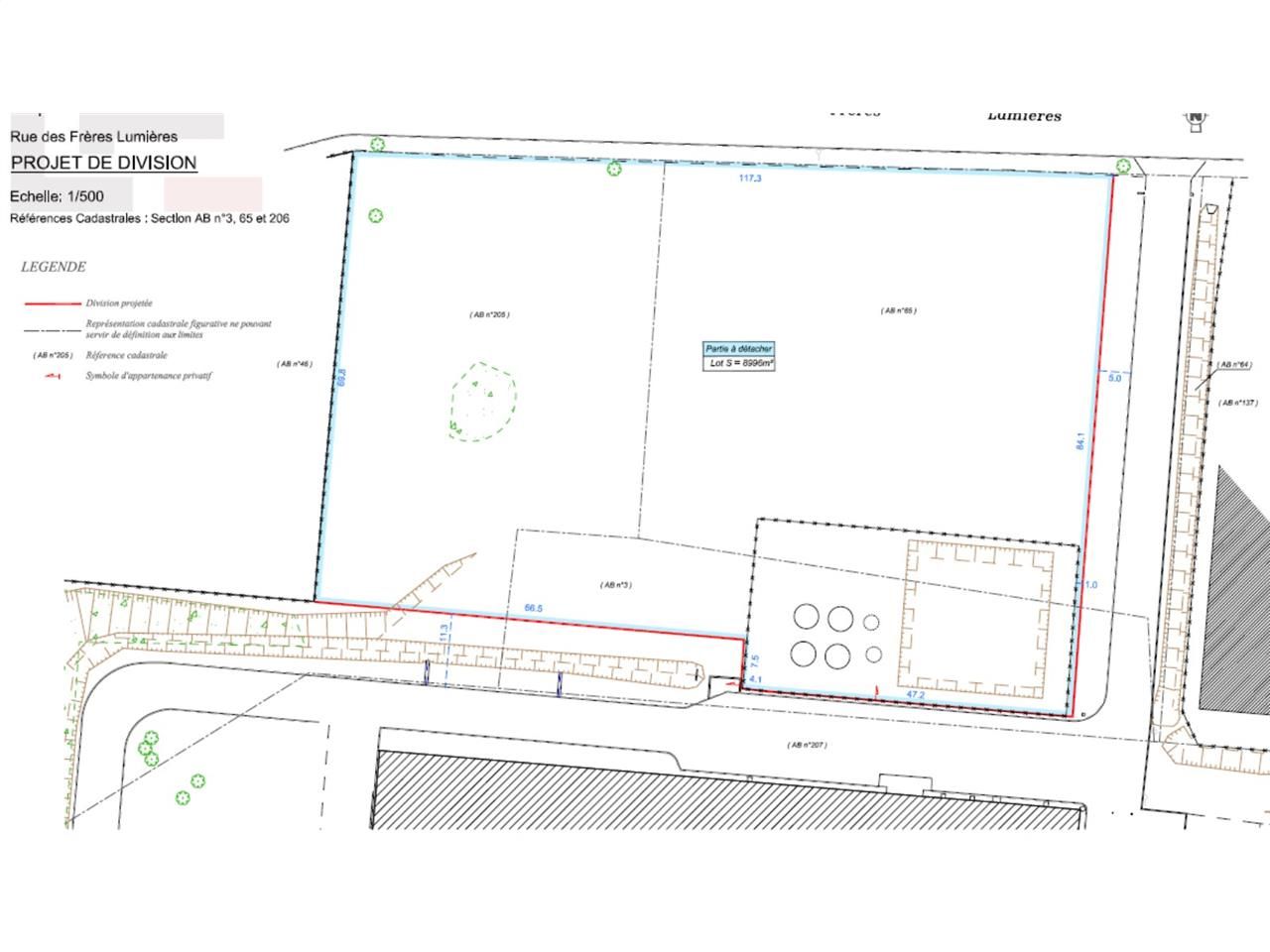
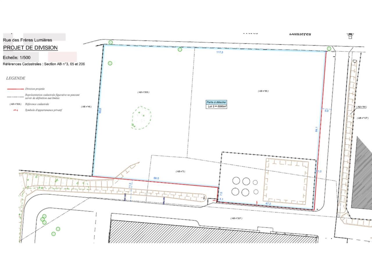
8 996 m²
Terrain à vendre - 8996 m²
Carbon-Blanc (33560)
Dernière mise à jour : Hier
EXCLUSIVITE CBRE - A VENDRE, terrain de 8 900 m² situé dans la zone artisanale de la Mouline à Carbon blanc. Libre de construction et non viabilisé, en zone US8 du PLU, ce foncier bénéficie d'un accès rapide à l'A10 et est disponible immédiatement. Divisible selon projet. Très belle opportunité pour développer votre activité !
Pour plus d'informations, n'hésitez pas à nous contacter au 05 56 90 52 30.
Régime Fiscal : Droits d'enregistrement
Honoraires : 5% HT du prix de vente HD à la charge de l'acquéreur
Prestations :
Accessibilité:
Bus Lignes n°29 et 31
Bus Cars régionaux 430, 431, 432 et 461
Autoroute Accès A10 à 1,5 km
Route Accès rocade à 4,5 km
Route Accès N89 à 11 km
Les informations sur les risques auxquels ce bien est exposé sont disponibles sur le site Géorisques : www.georisques.gouv.fr
Pour plus d'informations, n'hésitez pas à nous contacter au 05 56 90 52 30.
| Étage | Type | Surfaces | Dispo | Prix(m²) | Charges | Honoraires | Fiscal |
|---|---|---|---|---|---|---|---|
| Terrain | 8996 | Immédiate | 165 m² HD | n.c. | 5% HT du prix de vente HD à la charge de l'acquéreur | Droits d'enregistrement |
Régime Fiscal : Droits d'enregistrement
Honoraires : 5% HT du prix de vente HD à la charge de l'acquéreur
Prestations :
- Terrain comprenant totalement ou partiellement les parcelles AB-65, AB-205 et AB-3
- Découpage parcellaire à déterminer
- Divisibilité à partir de 2000 m²
- PLU zone US8 : zone spécifique urbaine liée à l'économie
- Terrain vendu non viabilisé, libre de construction
- Surface RDC : 0 m²
Accessibilité:
Bus Lignes n°29 et 31
Bus Cars régionaux 430, 431, 432 et 461
Autoroute Accès A10 à 1,5 km
Route Accès rocade à 4,5 km
Route Accès N89 à 11 km
Les informations sur les risques auxquels ce bien est exposé sont disponibles sur le site Géorisques : www.georisques.gouv.fr
Voir plus
Afficher les consommations énergétiques
Localisation et transport aux alentours
Favoris
Exporter
Appeler
Contacter
Signaler cette annonce
