L’agence CBRE Bordeaux conseille et accompagne les chefs d’entreprise dans leurs projets immobiliers quels que soient leur taille et leur secteur d’activité. Spécialistes de la transaction de burea ...
En savoir plus

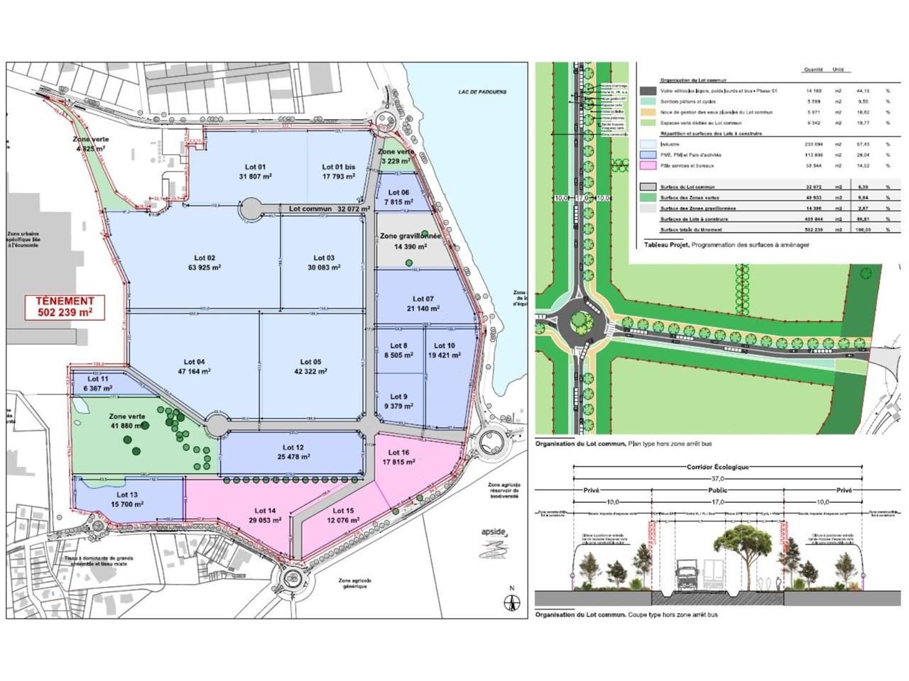
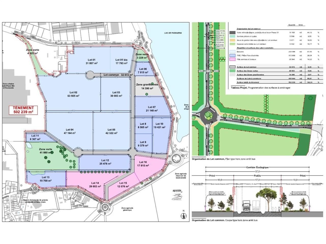
405 844 m² divisible dès 58 944 m²
Prix sur demande
Terrain à vendre - 405844 m²
Blanquefort (33290)
Dernière mise à jour : Il y a 3 mois
Implantez votre activité à Blanquefort - Un site stratégique pour votre croissance. Blanquefort Business Park : Votre futur hub d'activités au coeur de la métropole bordelaise. CBRE Conseil et Transaction Bordeaux commercialise un projet d'aménagement à Blanquefort pour répondre aux besoins des entreprises en quête d'un emplacement premium dans la métropole bordelaise. Ce programme prévoit la création d'environ 16 lots destinés à accueillir des bâtiments sur mesure pour vos activités.
Vos avantages :
. Emplacement stratégique : proximité immédiate de Bordeaux et des axes majeurs.
. Flexibilité totale : conception adaptée à votre activité (bureaux, production, stockage hors logistique).
. Solutions clés en main :
- VEFA (Vente en l'état futur d'achèvement)
- BEFA (Location en l'état futur d'achèvement)
Pour qui ? TPE, PME, PMI, ETI et grandes entreprises industrielles qui souhaitent :
. Développer leur activité dans un environnement dynamique.
. Disposer d'un bâtiment moderne et performant.
. Bénéficier d'un accompagnement personnalisé pour leur implantation.
Calendrier :
. Dépôt du permis d'aménager : février/mars 2025
. Obtention : fin T1 2026
. Livraison des bâtiments : selon vos besoins et calendrier projet.
Contactez-nous dès aujourd'hui pour anticiper votre implantation et réserver votre lot.
Emmanuel CASTELLANI Port 05 33 06 27 80
Régime Fiscal : T.V.A.
Dépôt de garantie : 2 mois de loyer HT/HC
Paiement Loyer : trimestriel
Honoraires : A la charge de l'acquéreur
Prestations :
Accessibilité:
Autoroute A630 (4 km)
Autoroute A10
Autoroute A63
Autoroute A89
SNCF Gare de Bordeaux St-Jean (18 km)
SNCF TER Blanquefort (3 km)
Tramway Ligne C - Blanquefort (3 km)
Aeroport Bordeaux-Mérignac (14 km)
Les informations sur les risques auxquels ce bien est exposé sont disponibles sur le site Géorisques : www.georisques.gouv.fr
Vos avantages :
. Emplacement stratégique : proximité immédiate de Bordeaux et des axes majeurs.
. Flexibilité totale : conception adaptée à votre activité (bureaux, production, stockage hors logistique).
. Solutions clés en main :
- VEFA (Vente en l'état futur d'achèvement)
- BEFA (Location en l'état futur d'achèvement)
Pour qui ? TPE, PME, PMI, ETI et grandes entreprises industrielles qui souhaitent :
. Développer leur activité dans un environnement dynamique.
. Disposer d'un bâtiment moderne et performant.
. Bénéficier d'un accompagnement personnalisé pour leur implantation.
Calendrier :
. Dépôt du permis d'aménager : février/mars 2025
. Obtention : fin T1 2026
. Livraison des bâtiments : selon vos besoins et calendrier projet.
Contactez-nous dès aujourd'hui pour anticiper votre implantation et réserver votre lot.
Emmanuel CASTELLANI Port 05 33 06 27 80
| Étage | Type | Surfaces | Dispo | Prix(m²) | Charges | Honoraires | Fiscal |
|---|---|---|---|---|---|---|---|
| Terrain | 233094 | 18 mois ap. déb. trx | n.c. | n.c. | A la charge de l'acquéreur | T.V.A. | |
| Terrain | 113806 | 18 mois ap. déb. trx | n.c. | n.c. | A la charge de l'acquéreur | T.V.A. | |
| Terrain | 58944 | 18 mois ap. déb. trx | n.c. | n.c. | A la charge de l'acquéreur | T.V.A. |
Régime Fiscal : T.V.A.
Dépôt de garantie : 2 mois de loyer HT/HC
Paiement Loyer : trimestriel
Honoraires : A la charge de l'acquéreur
Prestations :
- Surface RDC : 0 m²
Accessibilité:
Autoroute A630 (4 km)
Autoroute A10
Autoroute A63
Autoroute A89
SNCF Gare de Bordeaux St-Jean (18 km)
SNCF TER Blanquefort (3 km)
Tramway Ligne C - Blanquefort (3 km)
Aeroport Bordeaux-Mérignac (14 km)
Les informations sur les risques auxquels ce bien est exposé sont disponibles sur le site Géorisques : www.georisques.gouv.fr
Voir plus
Afficher les consommations énergétiques
Favoris
Exporter
Appeler
Contacter
Signaler cette annonce

