Conseil en immobilier d'entreprise, Cushman & Wakefield est un acteur incontournable au rayonnement international. Cushman & Wakefield offre des solutions dans toutes les étapes que comporte un p ...
En savoir plus

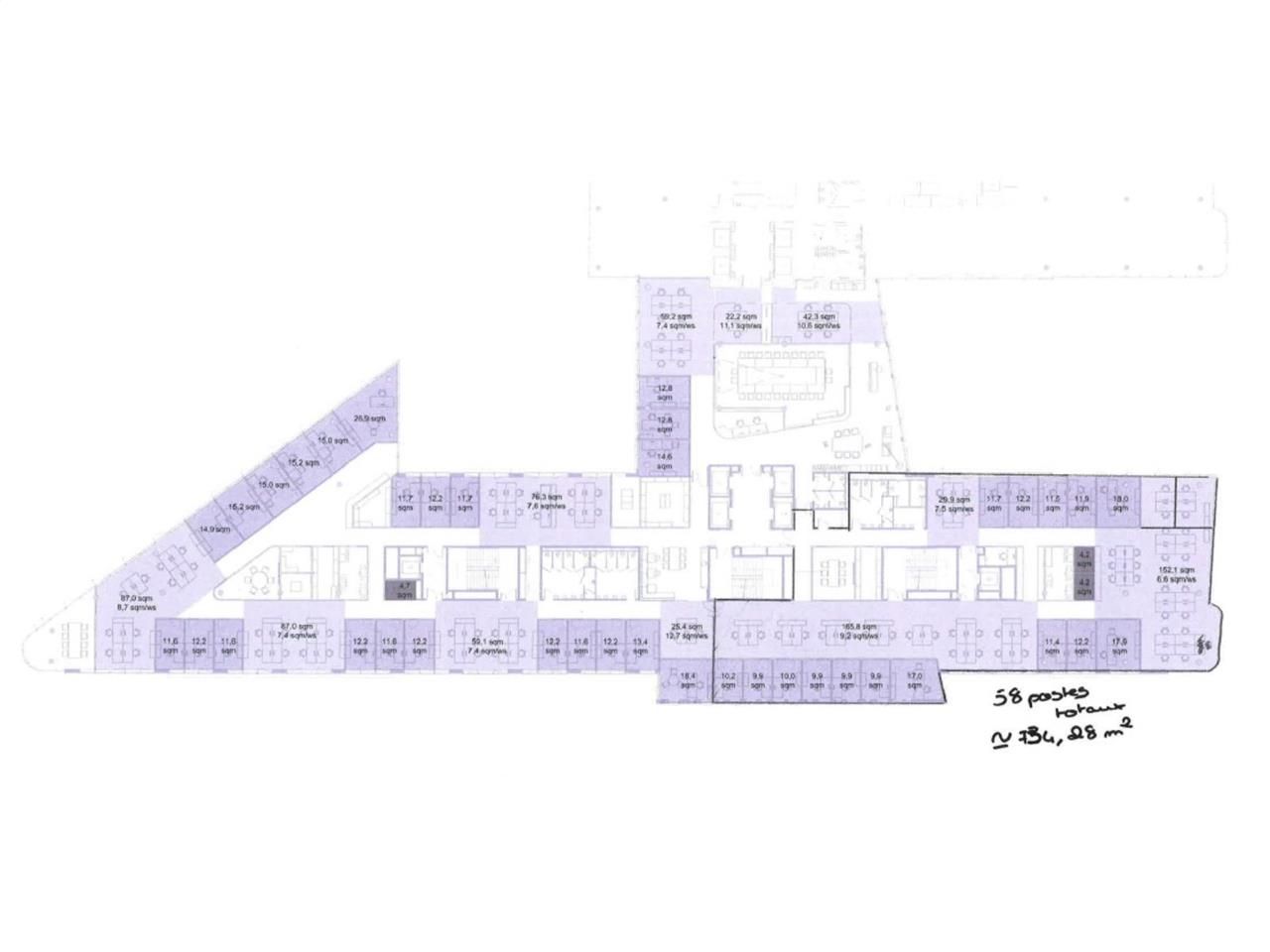
734 m²
HT HC
SEINE AVENUE - Location bureau - 734 m²
Asnières-sur-Seine (92600)
Dernière mise à jour : Il y a 4 jours
Sous-location Plug & play
Immeuble SEINE AVENUE
Bureaux à sous-louer - Asnières-sur-Seine
Cushman & Wakefield vous propose à la sous-location une surface de bureaux de 734 m² située dans un immeuble moderne au sein de la ZAC Asnières Bords de Seine.
Ces bureaux Plug & Play, parfaitement aménagés, sont immédiatement opérationnels et peuvent accueillir jusqu'à 58 postes de travail. L'aménagement de qualité, les volumes généreux et les terrasses accessibles offrent un environnement de travail confortable et stimulant pour vos équipes.
L'immeuble dispose d'une large gamme de services haut de gamme : RIE, cafétéria, espace fitness, gaming room, auditorium de 100 places, conciergerie, community manager, et même un Working Café, favorisant bien-être et productivité au quotidien.
Le site bénéficie également d'un faux plancher technique de 9 cm, d'une climatisation efficace, de la présence de vélos électriques à disposition ainsi qu'un service de dépose taxi et VIP.
Situé dans un quartier en plein essor, facilement accessible, ce plateau de bureaux représente une solution idéale pour les entreprises en recherche de flexibilité et de services.
Contactez-nous pour organiser une visite et découvrir ce cadre de travail exceptionnel. Disponibilité immédiate.
Impôt Foncier : 27,13 €//m²/an
Régime Fiscal : T.V.A.
Dépôt de garantie : 3 mois de loyer HT/HC
Paiement Loyer : Trimestriel
Honoraires : à la charge du preneur
Taxe Bureau : 21,31 €/m²/an
Information sur le Bail :
Possibilité de sous-location jusqu'à 2031
Prestations :
Accessibilité:
RER Les Grésillons (RER C)
Bus Lignes 54-140-175-177-235-238-276-304-340-577
Bus Navette privative permettant un accès au métro 13 en moins de 7 mn
Accès routier A15-A86-A1-A14-quais de Seine
Les informations sur les risques auxquels ce bien est exposé sont disponibles sur le site Géorisques : www.georisques.gouv.fr
Immeuble SEINE AVENUE
Bureaux à sous-louer - Asnières-sur-Seine
Cushman & Wakefield vous propose à la sous-location une surface de bureaux de 734 m² située dans un immeuble moderne au sein de la ZAC Asnières Bords de Seine.
Ces bureaux Plug & Play, parfaitement aménagés, sont immédiatement opérationnels et peuvent accueillir jusqu'à 58 postes de travail. L'aménagement de qualité, les volumes généreux et les terrasses accessibles offrent un environnement de travail confortable et stimulant pour vos équipes.
L'immeuble dispose d'une large gamme de services haut de gamme : RIE, cafétéria, espace fitness, gaming room, auditorium de 100 places, conciergerie, community manager, et même un Working Café, favorisant bien-être et productivité au quotidien.
Le site bénéficie également d'un faux plancher technique de 9 cm, d'une climatisation efficace, de la présence de vélos électriques à disposition ainsi qu'un service de dépose taxi et VIP.
Situé dans un quartier en plein essor, facilement accessible, ce plateau de bureaux représente une solution idéale pour les entreprises en recherche de flexibilité et de services.
Contactez-nous pour organiser une visite et découvrir ce cadre de travail exceptionnel. Disponibilité immédiate.
| Étage | Type | Surfaces | Dispo | Loyer | Charges | Type de bailRév. annuelle |
|---|---|---|---|---|---|---|
| 6 | Bureaux | 734 | 100 HT/HC/m²/an | 83 HT/m²/an | Sous locationSur l'indice ILAT | |
| SS | Parkings | 1200 HT/HC/place/an | Sous locationSur l'indice ILAT |
Impôt Foncier : 27,13 €//m²/an
Régime Fiscal : T.V.A.
Dépôt de garantie : 3 mois de loyer HT/HC
Paiement Loyer : Trimestriel
Honoraires : à la charge du preneur
Taxe Bureau : 21,31 €/m²/an
Information sur le Bail :
Possibilité de sous-location jusqu'à 2031
Prestations :
- RIE/Cafétéria
- Climatisation
- Faux plancher : plénum de 9 cm
- Terrasses accessibles
- Community manager
- Conciergerie
- Local Vélos
- Le Working Café
- Espace Fitness
- Auditorium (100 personnes)
- Gaming room
- Vélo électrique
- Dépose taxi et VIP
- Surface Plug & Play
- Capacitaire : 58 postes
- Aménagement de qualité
Accessibilité:
RER Les Grésillons (RER C)
Bus Lignes 54-140-175-177-235-238-276-304-340-577
Bus Navette privative permettant un accès au métro 13 en moins de 7 mn
Accès routier A15-A86-A1-A14-quais de Seine
Les informations sur les risques auxquels ce bien est exposé sont disponibles sur le site Géorisques : www.georisques.gouv.fr
Voir plus
Afficher les consommations énergétiques
Localisation et transport aux alentours
- Les Grésillons527m (8min à pied)C15O
Favoris
Exporter
Appeler
Contacter
Signaler cette annonce










