BNP Paribas Real Estate, N°1 de la transaction en immobilier d''entreprise en France, vous propose un accompagnement de qualité pour l''acquisition, la vente ou la location d''un bien immobilier.Vo ...
En savoir plus

25 276 m²
Prix sur demande
Activité/Entrepôt à vendre - 25276 m²
Cavaillon (84300)
Dernière mise à jour : Hier
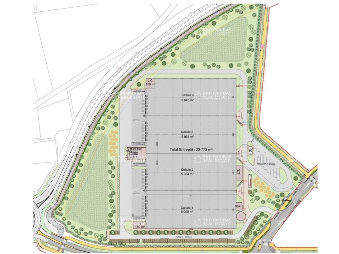
CAVAILLON (84) PROJET ENTREPOT LOGISTIQUE - A VENDRE
Sur un foncier de 66 568 m² au sein du Parc multi-activités Des Hauts Banquets, nous vous proposons à la vente (en VEFA, BEFA possible) un projet d'entrepôt logistique d'une superficie d'environ 25 276 m². Situé en bordure de la Durance et à proximité de l'échangeur de l'A7, le site est au barycentre du triangle Lyon-Montpellier-Marseille. Site labellisé Biodivercity. Certification BREEAM Excellent. Etat de construction : Projet sans PC. Disponibilité : 24 mois après accord.
Disponibilité: 24 mois après accordHonoraires: Nous consulter. à la signature de l'acte
| Fiche technique du bien | |
|---|---|
| TER | Gare de Cavaillon 3 km |
| Desserte routière | D973 500 m |
| Desserte routière | A7 3 km |
| Aéroport | Avignon Caumont 23 km |
| Gare | Avignon TGV 32 km |
| Autorisation d'exploiter | 2663-2 |
| Autorisation d'exploiter | 1510 |
| Autorisation d'exploiter | 1532 |
| Autorisation d'exploiter | 2662 |
| Autorisation d'exploiter | 1511 |
| Autorisation d'exploiter | 2663-1 |
| Autorisation d'exploiter | 1530 |
| Parking(s) | 122 Places |
| Parking(s) | 8 Places |
| Eclairage Bureaux | par dalles LED |
| Sanitaire(s) | et vestiaires |
| Autre élément bureau | Plateau de bureaux paysagé chauffé et rafraîchi |
| Charge au sol RDC | 5,00 tonne(s)/m² |
| Hauteur libre | 11,50 mètre(s) |
| Hauteur sous porte plain-pied | 4,60 mètre(s) |
| Porte(s) d'accès plain-pied | Oui |
| Porte(s) d'accès à quai | 1 pour 1 000 m² |
| Eclairage intérieur | LED |
Afficher les consommations énergétiques
Favoris
Exporter
Appeler
Contacter
Signaler cette annonce









