Le cabinet Oxxi - Arthur Loyd 77-91 est Concessionnaire du réseau Arthur Loyd, 1er réseau français de Conseil en Immobilier d’Entreprises. Véritable spécialiste de l’immobilier professionnel, l’age ...
En savoir plus

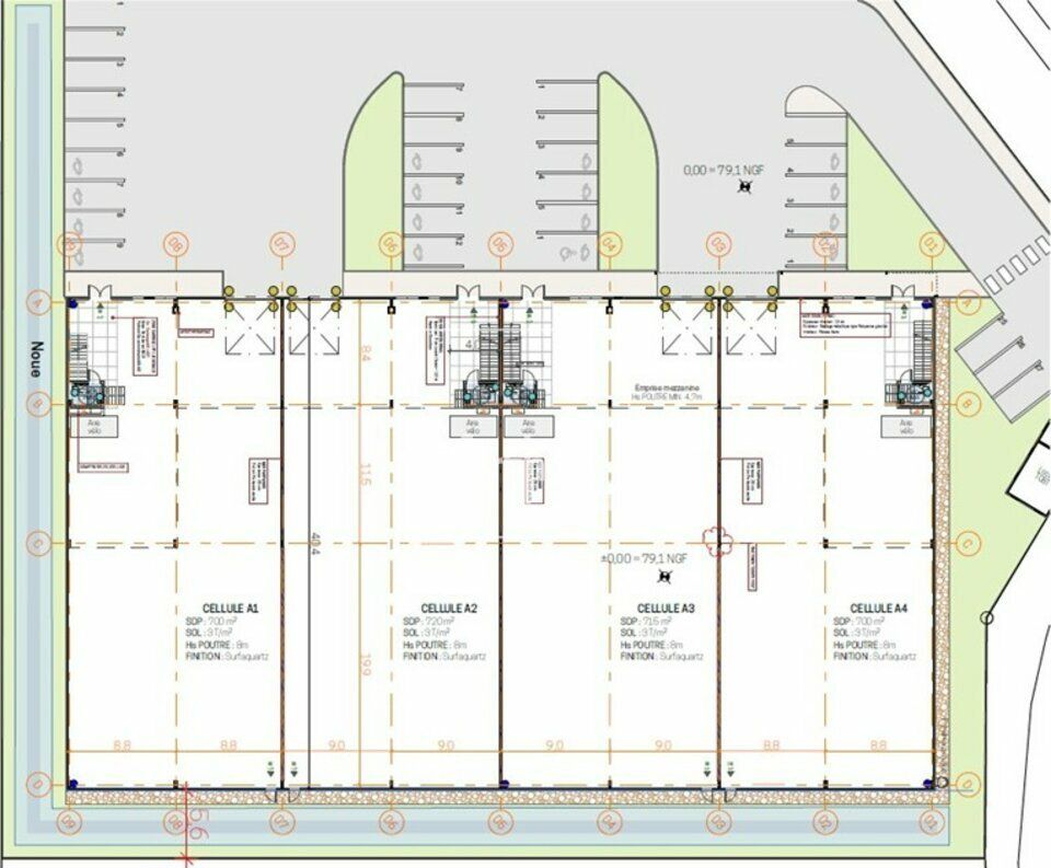
3 615 m² divisible dès 700 m²
Activité/Entrepôt à vendre - 3615 m²
Évry (91000)
Dernière mise à jour : Il y a 3 mois
Locaux neufs à vendre - EVRY
Les informations sur les risques auxquels ce bien est exposé sont disponibles sur le site Géorisques : www.georisques.gouv.fr
Murs en bardage métallique
Dimension des portes: 4M * 4,5M
Electricité : tarif bleu ou jaune
Murs mitoyens parpaing
Hauteur libre: 8M
Chauffage aérothermes gaz dans entrepôt
A6 et N104
RER D
Disponibilité : 1er semestre 2025
Accès plain-pied
Charge au sol : 3 T/M²
Convecteurs électriques
Type de couverture : bac acier
Prix de vente : 6868500 € HT
Honoraires à la charge de l'acquéreur : 5 % HT
Arthur Loyd 77-91 vous propose sur la commune d'EVRY-COURCOURONNES, d'acquérir des locaux d'activités de 700 m² ou plus, avec accès livraisons tous porteurs.
Les locaux disposent d'une hauteur de 8 mètres et d'une charge au sol de 3 T/m².
Des places de parking sont disponibles sur ce parc clos et sécurisé.
Locaux certifiés BREEAM et BIODIVERSITY.
Honoraires de commercialisation : 5 % HT du prix de vente HT à la charge de l'Acquéreur.
Les informations sur les risques auxquels ce bien est exposé sont disponibles sur le site Géorisques : www.georisques.gouv.fr
Murs en bardage métallique
Dimension des portes: 4M * 4,5M
Electricité : tarif bleu ou jaune
Murs mitoyens parpaing
Hauteur libre: 8M
Chauffage aérothermes gaz dans entrepôt
A6 et N104
RER D
Disponibilité : 1er semestre 2025
Accès plain-pied
Charge au sol : 3 T/M²
Convecteurs électriques
Type de couverture : bac acier
Prix de vente : 6868500 € HT
Honoraires à la charge de l'acquéreur : 5 % HT
| batiment - lot | rez-de-chaussée, activités | 1er étage - bureaux | surface totale | prix vente ht | prix vente m² |
| a1 | 700 m² | 245 m² | 945 m² | 1 795 500 € ht | 1900 € ht |
| a2 | 720 m² | 145 m² | 865 m² | 1 643 500 € ht | 1900 € ht |
| a3 | 715 m² | 145 m² | 860 m² | 1 634 000 € ht | 1900 € ht |
| a4 | 700 m² | 245 m² | 945 m² | 1 795 500 € ht | 1900 € ht |
Voir plus
Afficher les consommations énergétiques
Favoris
Exporter
Appeler
Contacter
Signaler cette annonce





