CBRE Montpellier, situé au cœur de la ville, est votre partenaire de confiance pour tous vos projets immobiliers professionnels. Notre équipe d''experts locaux accompagne les entreprises de toutes ...
En savoir plus

759 m² divisible dès 142 m²
Activité/Entrepôt à vendre - 759 m²
Sète (34200)
Dernière mise à jour : Il y a 9 jours
CBRE vous propose des locaux d'activité et des bureaux neufs à la vente sur la ZAE des eaux blanches à Sète.
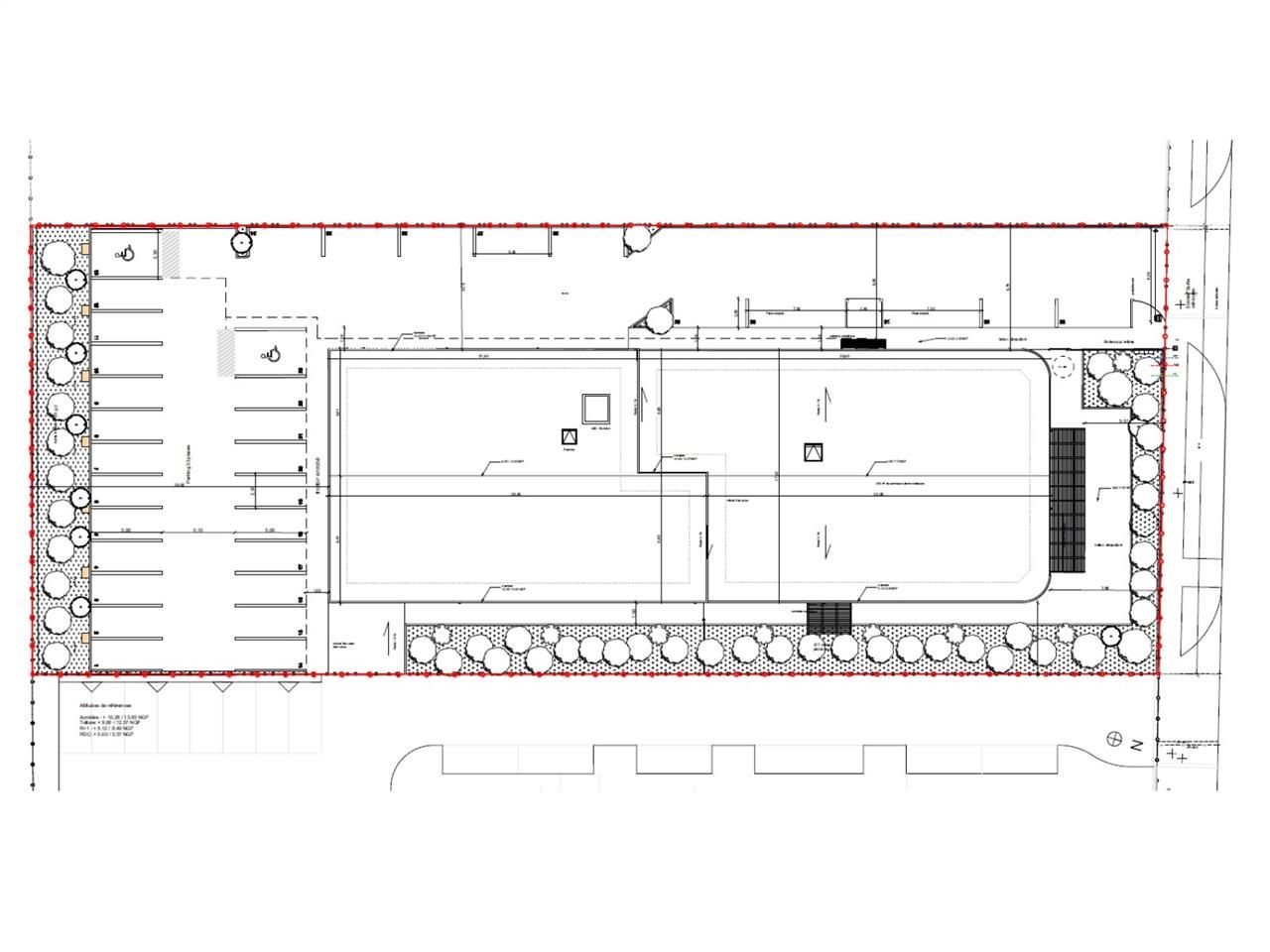
Le projet L11 prévoit la construction d'un bâtiment à vocation mixte, composé de deux entités distinctes, répondant aux besoins d'activités et de bureaux tout en
proposant une architecture moderne et fonctionnelle. Le bâtiment s'étend sur deux niveaux. Le rez-de-chaussée
accueillera trois locaux d'activité, chacun
d'une surface entre 100 et 130 m² environ, offrant une flexibilité d'utilisation selon les besoins des occupants.
À l'étage, trois bureaux d'une surface similaire (environ 130 m² chacun) seront aménagés pour favoriser le confort et la productivité des professionnels.
N'hésitez pas à nous contacter pour tout complément d'information.
Impôt Foncier : 7 €/HT/m²/an
Régime Fiscal : T.V.A.
Honoraires : 3% + TVA du Prix de Vente à la charge de l'acquéreur
Prestations :
Accessibilité:
Autoroute A9 à 8.7 km (10 minutes)
Les informations sur les risques auxquels ce bien est exposé sont disponibles sur le site Géorisques : www.georisques.gouv.fr
Le projet L11 prévoit la construction d'un bâtiment à vocation mixte, composé de deux entités distinctes, répondant aux besoins d'activités et de bureaux tout en
proposant une architecture moderne et fonctionnelle. Le bâtiment s'étend sur deux niveaux. Le rez-de-chaussée
accueillera trois locaux d'activité, chacun
d'une surface entre 100 et 130 m² environ, offrant une flexibilité d'utilisation selon les besoins des occupants.
À l'étage, trois bureaux d'une surface similaire (environ 130 m² chacun) seront aménagés pour favoriser le confort et la productivité des professionnels.
N'hésitez pas à nous contacter pour tout complément d'information.
| Étage | Type | Surfaces | Dispo | Prix(m²) | Charges | Honoraires | Fiscal |
|---|---|---|---|---|---|---|---|
| RDC | Activités | 198,81 | Septembre 2026 | 1690 m² HT | n.c. | 3% + TVA du Prix de Vente à la charge de l'acquéreur | T.V.A. |
| RDC | Activités | 174,7 | Septembre 2026 | 1689,9 m² HT | n.c. | 3% + TVA du Prix de Vente à la charge de l'acquéreur | T.V.A. |
| 1 | Bureaux | 243,4 | Septembre 2026 | 1990 m² HT | n.c. | 3% + TVA du Prix de Vente à la charge de l'acquéreur | T.V.A. |
| 1 | Bureaux | 141,69 | Septembre 2026 | 1990 m² HT | n.c. | 3% + TVA du Prix de Vente à la charge de l'acquéreur | T.V.A. |
Impôt Foncier : 7 €/HT/m²/an
Régime Fiscal : T.V.A.
Honoraires : 3% + TVA du Prix de Vente à la charge de l'acquéreur
Prestations :
- Prix parkings : 6 500 euros HT.
- Accès plain-pied : 1 sectionnelle par cellule d'activités
- Surface RDC : 373,51 m²
- Surface terrain : 0
- Haut. libre min. ss poutre : 3,2 m
Accessibilité:
Autoroute A9 à 8.7 km (10 minutes)
Les informations sur les risques auxquels ce bien est exposé sont disponibles sur le site Géorisques : www.georisques.gouv.fr
Voir plus
Afficher les consommations énergétiques
Favoris
Exporter
Appeler
Contacter
Signaler cette annonce
