Nous sommes Immprove, une grande équipe de plus de 200 experts en immobilier d’entreprise, implantés localement avec plus de 20 agences sur tout le territoire.Depuis 2009, notre proximité, notre ét ...
En savoir plus

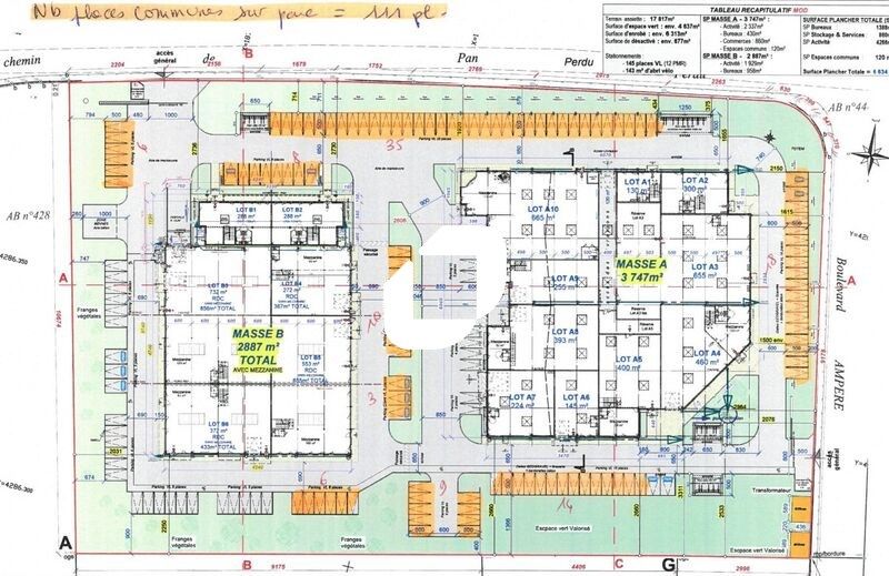
1 310 m² divisible dès 288 m²
Activité/Entrepôt à vendre - 1310 m²
Tignieu-Jameyzieu (38230)
Dernière mise à jour : Il y a 1 mois
A TIGNIEU JAMEYZIEU, au sein d'un parc d'activités clos et sécurisé, Immprove vous propose à la vente ou à la location, des locaux d'activités divisibles à partir de 288 m². Les cellules sont dédiées aux activités artisanales et tertiaires.
Régime Fiscal : TVA
Dépôt de garantie : 3 mois de loyer HT HC
Honoraires : 2.5% HT du prix de vente HD à la charge de l'acquéreur
Prestations :
Accessibilité:
Route A proximité de la métropole lyonnaise et de Bourgoin-J
Route A moins de 5 minutes de la zone commerciale La Place du Dauphiné
Route D517, D18 et D24a
Aéroport a proximité de Saint-Exupery
Autoroute A432 et A43
Les informations sur les risques auxquels ce bien est exposé sont disponibles sur le site Géorisques : www.georisques.gouv.fr
| Étage | Type | Surfaces | Dispo | Prix(m²) | Charges | Honoraires | Fiscal |
|---|---|---|---|---|---|---|---|
| R+1 | Mezzanine | 149 | 2ème trimestre 2026 | n.c. | n.c. | 2.5% HT du prix de vente HD à la charge de l'acquéreur | TVA |
| RDC | Bureaux | 139 | 2ème trimestre 2026 | n.c. | n.c. | 2.5% HT du prix de vente HD à la charge de l'acquéreur | TVA |
| Total Cellule B2 | Activités | 288 | 2ème trimestre 2026 | 1996,53 HT/m² | n.c. | 2.5% HT du prix de vente HD à la charge de l'acquéreur | TVA |
| R+1 | Mezzanine | 95 | 2ème trimestre 2026 | n.c. | n.c. | 2.5% HT du prix de vente HD à la charge de l'acquéreur | TVA |
| RDC | Activités | 272 | 2ème trimestre 2026 | n.c. | n.c. | 2.5% HT du prix de vente HD à la charge de l'acquéreur | TVA |
| Total Cellule B4 | Activités | 367 | 2ème trimestre 2026 | 1397,82 HT/m² | n.c. | 2.5% HT du prix de vente HD à la charge de l'acquéreur | TVA |
| R+1 | Mezzanine | 102 | 2ème trimestre 2026 | n.c. | n.c. | 2.5% HT du prix de vente HD à la charge de l'acquéreur | TVA |
| RDC | Activités | 553 | 2ème trimestre 2026 | n.c. | n.c. | 2.5% HT du prix de vente HD à la charge de l'acquéreur | TVA |
| Total Cellule B5 | Activités | 655 | 2ème trimestre 2026 | 1395,42 HT/m² | n.c. | 2.5% HT du prix de vente HD à la charge de l'acquéreur | TVA |
Régime Fiscal : TVA
Dépôt de garantie : 3 mois de loyer HT HC
Honoraires : 2.5% HT du prix de vente HD à la charge de l'acquéreur
Prestations :
- Parc clos et sécurisé
- 111 places de parking communs
- Hauteur sous faîtière : 7 mètres
- Portes sectionnelles 3x3m (1/lot)
- Câblage électrique primaire
- Mezzanine pour chaque lot avec escalier d'accès
- Dalle quartz
Accessibilité:
Route A proximité de la métropole lyonnaise et de Bourgoin-J
Route A moins de 5 minutes de la zone commerciale La Place du Dauphiné
Route D517, D18 et D24a
Aéroport a proximité de Saint-Exupery
Autoroute A432 et A43
Les informations sur les risques auxquels ce bien est exposé sont disponibles sur le site Géorisques : www.georisques.gouv.fr
Voir plus
Afficher les consommations énergétiques
Favoris
Exporter
Appeler
Contacter
Signaler cette annonce



