L’agence CBRE Marseille conseille et accompagne les chefs d’entreprise dans leurs projets immobiliers quels que soient leur taille et leur secteur d’activité. Spécialistes de la transaction de bure ...
En savoir plus

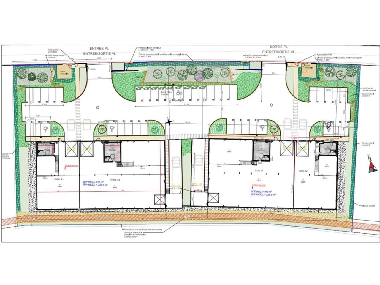
1 142 m² divisible dès 377 m²
Activité/Entrepôt à vendre - 1142 m²
Signes (83870)
Dernière mise à jour : Il y a 2 mois
Situé dans la Zone d'activités de Signes - Circuit Paul Ricard Le Castellet, faisant partie d'un ensemble industriel de très grande qualité Technoparc La Queue de Sartan (avec trois bâtiments déjà construits et commercialisés et un hôtel 3 Etoiles "Adonis Le Castellet") et situé dans le Bâtiment D à construire de 1 142 m², disponibilité de 2 entrepôts / locaux d'activités de 377 et 765 m²
N'hésitez pas à nous contacter pour découvrir ces locaux.
CBRE leader mondial en Immobilier d'entreprise est à votre disposition pour vous accompagner dans tous vos projets immobiliers grâce à sa palette de métiers permettant de répondre à toutes problématiques immobilières de la valorisation, en passant par la gestion et la commercialisation à la rénovation.
Régime Fiscal : T.V.A.
Honoraires : A la charge de l'acquéreur : 2 % HT du prix de vente HT + TVA 20 %
Prestations :
Accessibilité:
Autoroute A50 - Sortie 11 : Signes - Le Castellet
Les informations sur les risques auxquels ce bien est exposé sont disponibles sur le site Géorisques : www.georisques.gouv.fr
N'hésitez pas à nous contacter pour découvrir ces locaux.
CBRE leader mondial en Immobilier d'entreprise est à votre disposition pour vous accompagner dans tous vos projets immobiliers grâce à sa palette de métiers permettant de répondre à toutes problématiques immobilières de la valorisation, en passant par la gestion et la commercialisation à la rénovation.
| Étage | Type | Surfaces | Dispo | Prix(m²) | Charges | Honoraires | Fiscal |
|---|---|---|---|---|---|---|---|
| RDC | Activités | 765 | 24 mois ap. déb. trx | 1500 m² HD | n.c. | A la charge de l'acquéreur : 2 % HT du prix de vente HT + TVA 20 % | T.V.A. |
| RDC | Activités | 377 | 24 mois ap. déb. trx | 1450 m² HD | n.c. | A la charge de l'acquéreur : 2 % HT du prix de vente HT + TVA 20 % | T.V.A. |
Régime Fiscal : T.V.A.
Honoraires : A la charge de l'acquéreur : 2 % HT du prix de vente HT + TVA 20 %
Prestations :
- Ossature : Métallique
- Murs périphériques : Double bardage
- Couverture : Bac acier isolé
- Chauffage aérotherme électrique
- Eclairage Full LED
- 1 Bloc sanitaire : 1 WC PMR
- HSP : 6 à 6.8 m
- Mezzanine : 350 kg/m²
- 1 Accès PL de PP avec porte sectionnelle à
- doubles parois (3.15 x 3.55 m) avec Commande manuelle par lot
- 1 Quai
- 7 places de parkings pour le lot D2 et 14 places pour le lot D1 (3 500 euros HT/place)
- Portail copropriété automatique
- Immeuble indépendant
- Surface RDC : 0 m²
- Surface terrain : 0
Accessibilité:
Autoroute A50 - Sortie 11 : Signes - Le Castellet
Les informations sur les risques auxquels ce bien est exposé sont disponibles sur le site Géorisques : www.georisques.gouv.fr
Voir plus
Afficher les consommations énergétiques
Favoris
Exporter
Appeler
Contacter
Signaler cette annonce










