Evolis, votre partenaire en immobilier d’entreprise! Que vous soyez une entreprise, utilisateur de locaux professionnels, investisseur, ou propriétaire, Evolis met à votre service son expertise ...
En savoir plus

528 m²
Activité/Entrepôt à vendre - 528 m²
Marolles-en-Hurepoix (91630)
Dernière mise à jour : Il y a 13 jours
Locaux d'activité de 528 m² non divisibles à vendre à Marolles en Hurepoix, proposés par EVOLIS. Idéalement situés, lumineux, avec parkings et accès poids lourds. Parfait pour entreprise en expansion.
Impôt Foncier : 10,16 €/m²/an
Régime Fiscal : TVA
Honoraires : 5% HT du prix de vente HD à la charge de l'acquéreur
Taxe Bureau : 11,87 €/m²/an
Prestations :
Accessibilité:
Bus ZI Cochets (4531)
RER RER C Brétigny sur orge
Route N104, N20, D19
Autoroute A6, A10
Les informations sur les risques auxquels ce bien est exposé sont disponibles sur le site Géorisques : www.georisques.gouv.fr
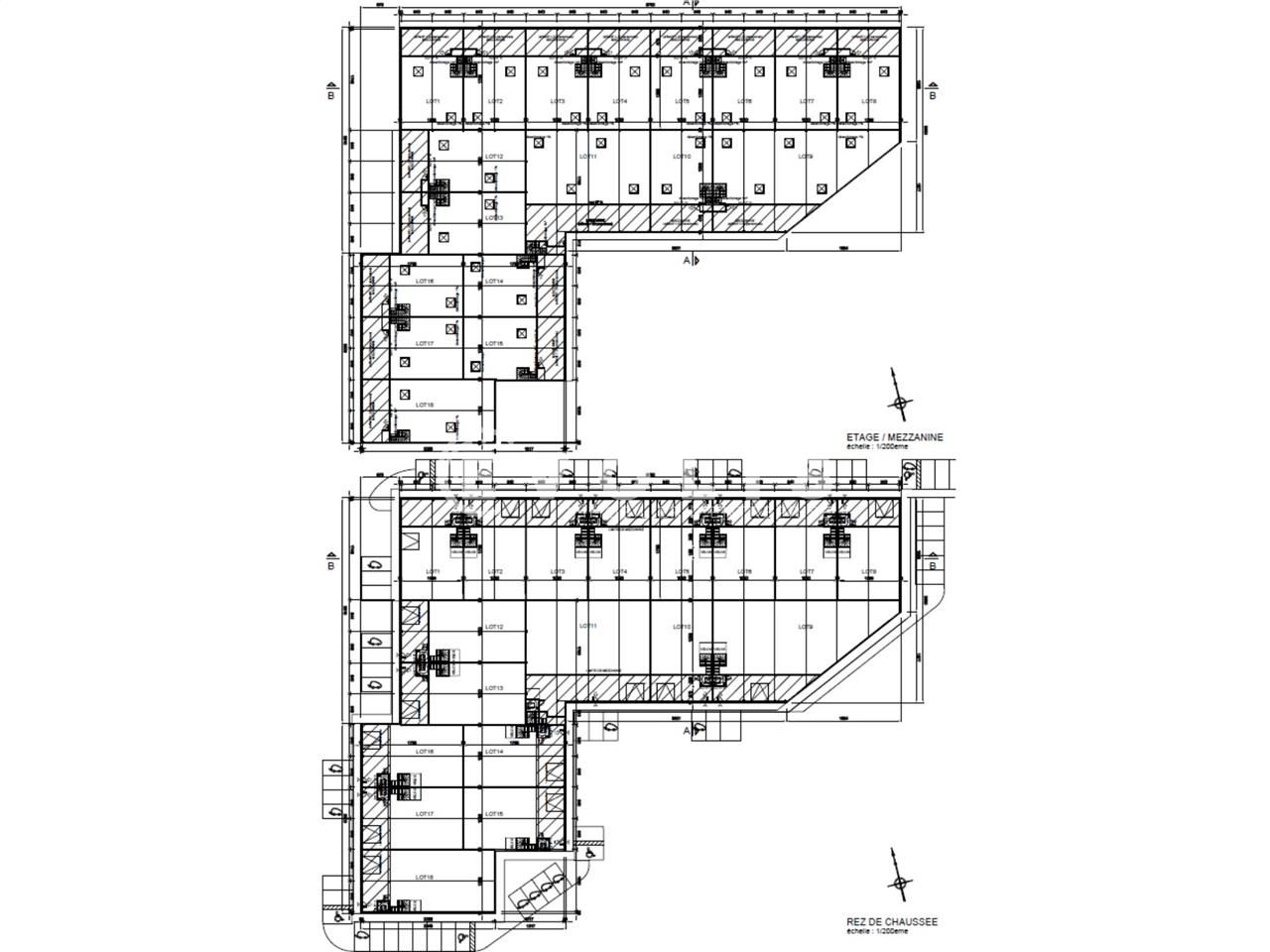
| Étage | Type | Surfaces | Dispo | Prix(m²) | Charges | Honoraires | Fiscal |
|---|---|---|---|---|---|---|---|
| 1 | Bureaux | 121 | Nous consulter | 1800 m² HD | 7 m²/an HT | 5% HT du prix de vente HD à la charge de l'acquéreur | TVA |
| RDC | Activités | 407 | Nous consulter | 1800 m² HD | n.c. | 5% HT du prix de vente HD à la charge de l'acquéreur | TVA |
| Parkings | n.c. | n.c. | 5% HT du prix de vente HD à la charge de l'acquéreur | TVA | |||
| Total Cellule 11 | Activités | 528 | Nous consulter | 1761,36 m² HD | n.c. | 5% HT du prix de vente HD à la charge de l'acquéreur | TVA |
Impôt Foncier : 10,16 €/m²/an
Régime Fiscal : TVA
Honoraires : 5% HT du prix de vente HD à la charge de l'acquéreur
Taxe Bureau : 11,87 €/m²/an
Prestations :
- Parcelle de 15.434 m² entièrement clôturée
- Deux portails d'accès motorisés
- Toiture végétalisée à hauteur de 30%
- Une voirie adaptée aux circulations lourdes (10 PL/j)
- 102 places de stationnements en Evergreen
- Locaux bureaux en R+1 :
- Dalle béton sur plancher collaborant : 350 kg/m²
- PVC ou moquette.
- Goulotte double compartiments en périphérie des façades avec équipement d'une prise de PC tous les 10m² de SDP
- Faux plafonds
- Eclairage par pavés LED(hauteur 2,40m)
- Climatisation 2 tubes
- Escalier métallique ou béton - porte Coupe-feu
- Locaux activité en RDC :
- Séparatif de modules (atelier/locaux sociaux) en maçonnerie d'agglomérés de ciment finition brute
- Eclairage LED par gamelles industrielles
- Eclairage extérieur par projecteur LED
- 2 prises PC
- 1 sanitaire handicapé avec VMC
- Tarif jaune : 48 KVA
- Surface RDC : 407 m²
- Haut. libre min. ss poutre : 3,4 m
- Haut. libre max. ss poutre : 6,5 m
- Résistance sol : 3 T/m²
- Nbr de portes plain pied : 1
- Ossature métallique
- Double bardage
- Couverture bac acier
- Surface RDC : 407 m²
Accessibilité:
Bus ZI Cochets (4531)
RER RER C Brétigny sur orge
Route N104, N20, D19
Autoroute A6, A10
Les informations sur les risques auxquels ce bien est exposé sont disponibles sur le site Géorisques : www.georisques.gouv.fr
Voir plus
Afficher les consommations énergétiques
Localisation et transport aux alentours
Favoris
Exporter
Appeler
Contacter
Signaler cette annonce









