L’agence CBRE Lyon conseille et accompagne les chefs d’entreprise dans leurs projets immobiliers quels que soient leur taille et leur secteur d’activité. Spécialistes de la transaction de bureaux, ...
En savoir plus

916 m²
Activité/Entrepôt à vendre - 916 m²
Béligneux (01360)
Dernière mise à jour : Il y a 2 jours
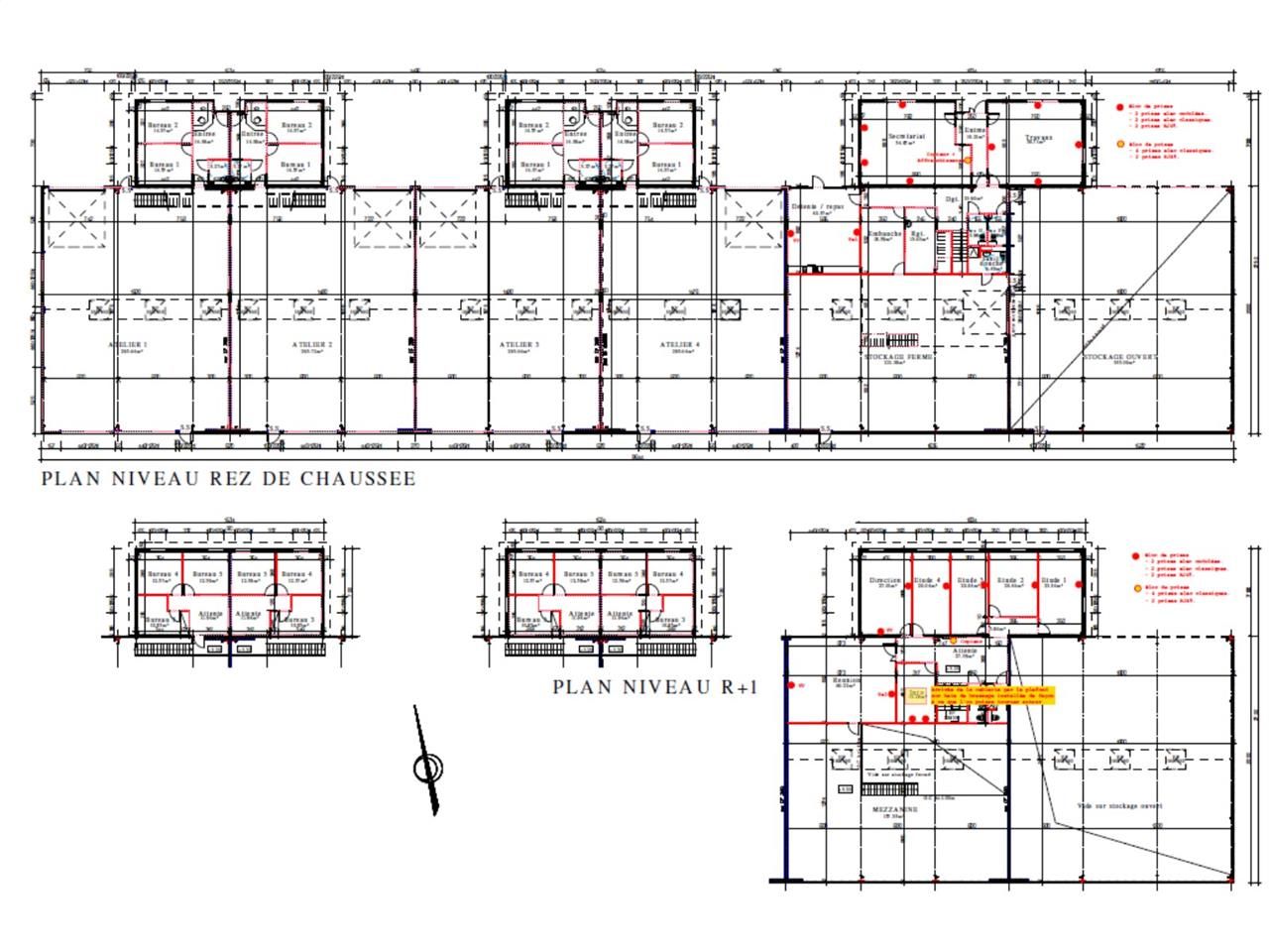
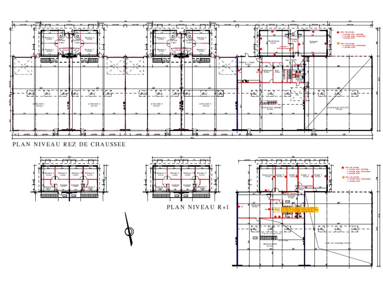
Votre agence CBRE Lyon vous propose de venir découvrir ces locaux d'activités disponibles à la location ou à l'acquisition sur la commune de Béligneux. Construit en 2023, ce bâtiment situé au sein de l'Europe Parc offre des prestations modernes et performantes : une partie activité de 580 m² avec une hauteur sous poutre de 7,50 m, un accès plain-pied, ainsi que des bureaux lumineux, climatisés et précâblés répartis sur deux niveaux.
L'ensemble bénéficie de 15 places de parking privatives, le tout dans un environnement clos et sécurisé à proximité immédiate de l'A42 et proche de l'Aéroport Lyon-Saint-Exupéry.
Régime Fiscal : T.V.A.
Dépôt de garantie : 3 mois de loyer HT/HC
Paiement Loyer : trimestriel
Honoraires : 3% HT du prix de vente HT à la charge de l'acquéreur
Prestations :
Accessibilité:
Autoroute A42
Bus Transports en commun
SNCF Gare TER de la Valbonne
Les informations sur les risques auxquels ce bien est exposé sont disponibles sur le site Géorisques : www.georisques.gouv.fr
L'ensemble bénéficie de 15 places de parking privatives, le tout dans un environnement clos et sécurisé à proximité immédiate de l'A42 et proche de l'Aéroport Lyon-Saint-Exupéry.
| Étage | Type | Surfaces | Dispo | Prix(m²) | Charges | Honoraires | Fiscal |
|---|---|---|---|---|---|---|---|
| RDC | Activités | 580 | Immédiate | n.c. | n.c. | 3% HT du prix de vente HT à la charge de l'acquéreur | T.V.A. |
| RDC | Bureaux | 168 | Immédiate | n.c. | n.c. | 3% HT du prix de vente HT à la charge de l'acquéreur | T.V.A. |
| 1 | Bureaux | 168 | Immédiate | n.c. | n.c. | 3% HT du prix de vente HT à la charge de l'acquéreur | T.V.A. |
| Total Cellule | Activités | 916 | Immédiate | n.c. | n.c. | 3% HT du prix de vente HT à la charge de l'acquéreur | T.V.A. |
Régime Fiscal : T.V.A.
Dépôt de garantie : 3 mois de loyer HT/HC
Paiement Loyer : trimestriel
Honoraires : 3% HT du prix de vente HT à la charge de l'acquéreur
Prestations :
- Locaux neufs - construction 2023
- Hauteur sous poutre : 7,50m²
- Eclairage LED + Skydome
- Cloison amovible
- Faux plafonds
- Plinthes périphériques
- Précâblage informatique et téléphonique
- Chauffage par aérotherme dans l'entrepôt
- Climatisation réversible dans les bureaux
- Ossature : Métallique
- Murs périmétriques : Bardage double peau
- Couverture : Bac acier double peau isolante
- Hauteur libre max. sous poutre : 7,50 m
- 1 porte de plain-pied
- 15 parkings extérieurs
- Surface RDC : 0 m²
- Surface terrain : 0
Accessibilité:
Autoroute A42
Bus Transports en commun
SNCF Gare TER de la Valbonne
Les informations sur les risques auxquels ce bien est exposé sont disponibles sur le site Géorisques : www.georisques.gouv.fr
Voir plus
Afficher les consommations énergétiques
Favoris
Exporter
Appeler
Contacter
Signaler cette annonce



