EVOLIS, votre partenaire en immobilier d’entreprise! Que vous soyez une entreprise, utilisateur de locaux professionnels, investisseur, ou propriétaire, EVOLIS met à votre service son expertise ...
En savoir plus

830 m² divisible dès 205 m²
HT HC
Location activité/entrepôt - 830 m²
Pont-de-Chéruy (38230)
Dernière mise à jour : Il y a 21 jours
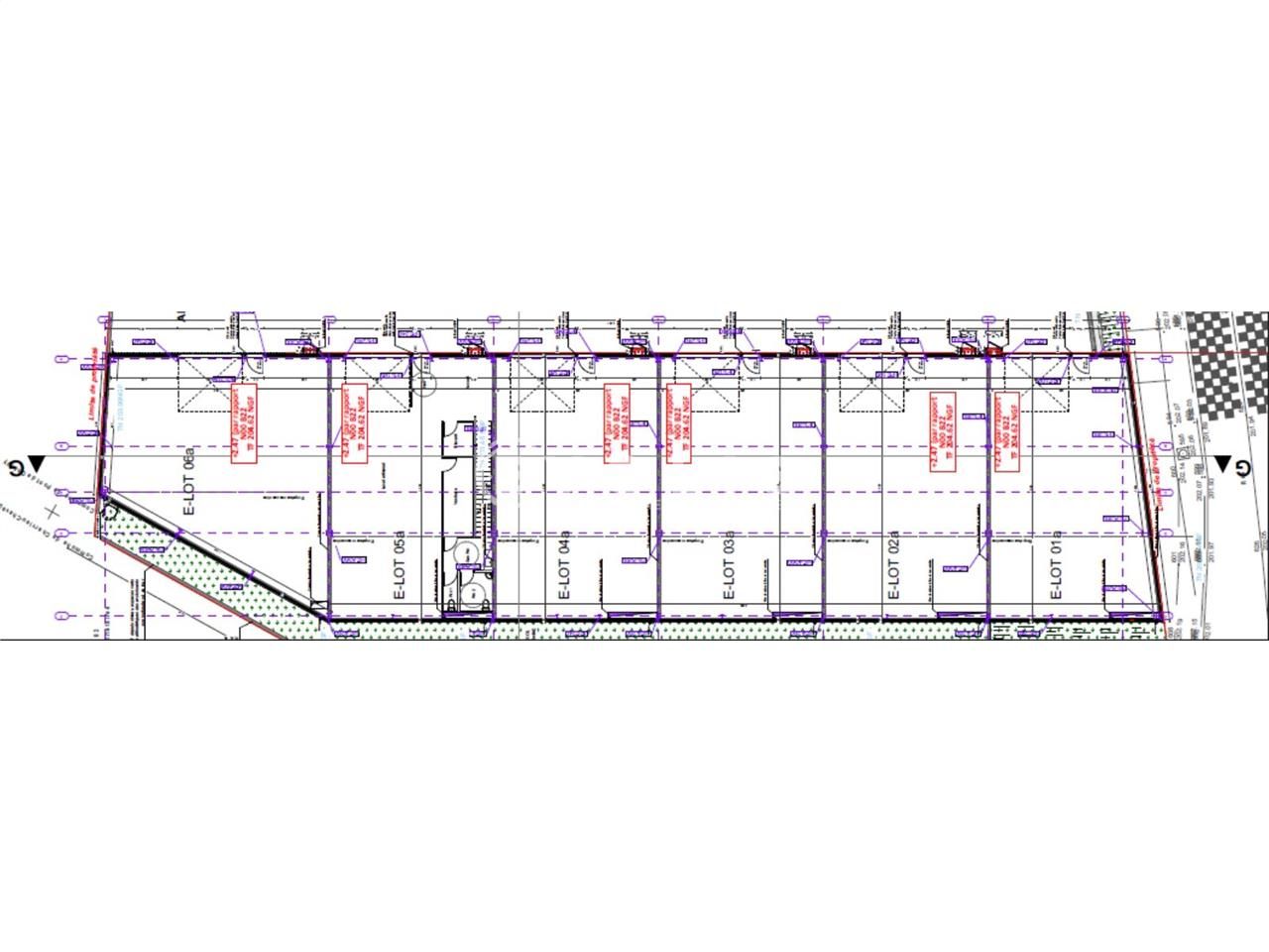
Locaux d'activités de 1036m² divisibles
EVOLIS, votre conseil en immobilier d'entreprise, vous présente une opportunité de location exceptionnelle au coeur de Pont-de-Chéruy. Découvrez ce parc d'activités neuf et sécurisé, offrant un espace total de 1 036 m², divisible en cellules à partir de 205 m², pour une flexibilité optimale.
Les atouts des biens :
Ces locaux modernes sont livrés bruts de béton avec les fluides en attente, vous permettant de les aménager selon vos besoins spécifiques. Chaque cellule bénéficie d'une belle hauteur sous plafond de 7 mètres, d'une porte sectionnelle de plain-pied pour un accès facile et d'une mezzanine de 45 m² pour un espace supplémentaire. Le site, entièrement clos et doté d'un portail d'accès, garantit un environnement de travail sécurisé.
Les atouts du secteur :
L'emplacement stratégique de ce parc est un avantage indéniable, avec un accès rapide à l'autoroute A432. Cette connexion directe facilite grandement la logistique et les déplacements, renforçant ainsi l'efficacité de votre entreprise.
Pour implanter votre activité dans un espace neuf, modulable et parfaitement situé, contactez EVOLIS dès maintenant pour obtenir plus d'informations ou pour organiser une visite.
Régime Fiscal : T.V.A.
Dépôt de garantie : 3 mois de loyer HT HC
Honoraires : 20% HT du loyer annuel HT HC à la charge du preneur
Prestations :
Accessibilité:
Autoroute A432
Les informations sur les risques auxquels ce bien est exposé sont disponibles sur le site Géorisques : www.georisques.gouv.fr
EVOLIS, votre conseil en immobilier d'entreprise, vous présente une opportunité de location exceptionnelle au coeur de Pont-de-Chéruy. Découvrez ce parc d'activités neuf et sécurisé, offrant un espace total de 1 036 m², divisible en cellules à partir de 205 m², pour une flexibilité optimale.
Les atouts des biens :
Ces locaux modernes sont livrés bruts de béton avec les fluides en attente, vous permettant de les aménager selon vos besoins spécifiques. Chaque cellule bénéficie d'une belle hauteur sous plafond de 7 mètres, d'une porte sectionnelle de plain-pied pour un accès facile et d'une mezzanine de 45 m² pour un espace supplémentaire. Le site, entièrement clos et doté d'un portail d'accès, garantit un environnement de travail sécurisé.
Les atouts du secteur :
L'emplacement stratégique de ce parc est un avantage indéniable, avec un accès rapide à l'autoroute A432. Cette connexion directe facilite grandement la logistique et les déplacements, renforçant ainsi l'efficacité de votre entreprise.
Pour implanter votre activité dans un espace neuf, modulable et parfaitement situé, contactez EVOLIS dès maintenant pour obtenir plus d'informations ou pour organiser une visite.
| Étage | Type | Surfaces | Dispo | Loyer | Charges | Type de bailRév. annuelle |
|---|---|---|---|---|---|---|
| RDC | Activités | 215 | Immédiate | 90 m²/an/ HT/HC | Bail commercial 3-6-9 ansILAT Indice des Loyers des Activités Tertiaires | |
| RDC | Activités | 205 | Immédiate | 90 m²/an/ HT/HC | Bail commercial 3-6-9 ansILAT Indice des Loyers des Activités Tertiaires | |
| RDC | Activités | 205 | Immédiate | 90 m²/an/ HT/HC | Bail commercial 3-6-9 ansILAT Indice des Loyers des Activités Tertiaires | |
| RDC | Activités | 205 | Immédiate | 90 m²/an/ HT/HC | Bail commercial 3-6-9 ansILAT Indice des Loyers des Activités Tertiaires | |
| Parkings | 50 place/mois/ HT/HC | Bail commercial 3-6-9 ansILAT Indice des Loyers des Activités Tertiaires |
Régime Fiscal : T.V.A.
Dépôt de garantie : 3 mois de loyer HT HC
Honoraires : 20% HT du loyer annuel HT HC à la charge du preneur
Prestations :
- Façade : Bardage double peau pour une esthétique moderne et une bonne isolation.
- Accès : Accès pour véhicules légers facilitant la circulation.
- Sécurité : Portail d'accès pour un contrôle d'entrée.
- Environnement : Site entièrement clos pour plus de sécurité.
- Connectivité : Fibre optique à venir pour une connexion internet rapide.
- Superficie : 150 m² au sol, offrant un espace fonctionnel.
- Mezzanine : 45 m² de mezzanine pour un espace supplémentaire.
- État : Brut de béton avec fluides en attente, prêt à être aménagé selon vos besoins.
- Hauteur : Hauteur sous poutre de 3,7 mètres et hauteur sous plafond de 7 mètres, créant une atmosphère spacieuse.
- Accès : Porte sectionnelle de plain-pied, mesurant 4 mètres de large et 3,5 mètres de haut pour un accès facile.
- Énergie : Tarif bleu pour une gestion économique de l'électricité.
- Alimentation : Équipement en triphasé pour répondre à des besoins énergétiques variés.
- Façade : Bardage double peau pour une esthétique moderne et une bonne isolation.
- Accès : Accès pour véhicules légers facilitant la circulation.
- Sécurité : Portail d'accès pour un contrôle d'entrée.
- Environnement : Site entièrement clos pour plus de sécurité.
- Connectivité : Fibre optique à venir pour une connexion internet rapide.
- Superficie : 150 m² au sol, offrant un espace fonctionnel.
- Mezzanine : 45 m² de mezzanine pour un espace supplémentaire.
- État : Brut de béton avec fluides en attente, prêt à être aménagé selon vos besoins.
- Hauteur : Hauteur sous poutre de 3,7 mètres et hauteur sous plafond de 7 mètres, créant une atmosphère spacieuse.
- Accès : Porte sectionnelle de plain-pied, mesurant 4 mètres de large et 3,5 mètres de haut pour un accès facile.
- Énergie : Tarif bleu pour une gestion économique de l'électricité.
- Alimentation : Équipement en triphasé pour répondre à des besoins énergétiques variés.
- Surface RDC : 1035 m²
Accessibilité:
Autoroute A432
Les informations sur les risques auxquels ce bien est exposé sont disponibles sur le site Géorisques : www.georisques.gouv.fr
Voir plus
Afficher les consommations énergétiques
Localisation et transport aux alentours
Favoris
Exporter
Appeler
Contacter
Signaler cette annonce
