Nous sommes Immprove, une grande équipe de plus de 200 experts en immobilier d’entreprise, implantés localement avec plus de 20 agences sur tout le territoire.Depuis 2009, notre proximité, notre ét ...
En savoir plus

3 860 m² divisible dès 524 m²
HT HC
Location activité/entrepôt - 3860 m²
Colombier-Saugnieu (69124)
Dernière mise à jour : Il y a 2 mois
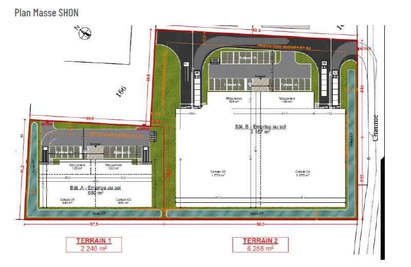
Au sein d'un parc d'activités clos en construction composé de 2 bâtiments, sur un terrain de 8 498 m², Immprove vous propose à la location des locaux d'activités neufs de 3 860 m² divisibles à partir de 524 m².
Impôt Foncier : 8 €//m²/an HT
Régime Fiscal : T.V.A. (20%)
Honoraires : 15 % HT d'un an de loyer HT à la charge du preneur, payables à la signature du bail
Prestations :
Accessibilité:
Autoroute Accès par l'A432 (à 2 min), l'A43 (à 5 min) et l'A42 (à 10 min)
Aéroport Aéroport Lyon Saint-Exupéry à 5 min
SNCF Gare SNCF TGV / TER Lyon Saint-Exupéry à 5 min
Les informations sur les risques auxquels ce bien est exposé sont disponibles sur le site Géorisques : www.georisques.gouv.fr
| Étage | Type | Surfaces | Dispo | Loyer | Charges | Type de bailRév. annuelle |
|---|---|---|---|---|---|---|
| RDC | Activités | 366 | Immédiate | |||
| RDC | Bureaux | 50 | Immédiate | |||
| MEZ | Bureaux | 108 | Immédiate | |||
| Total Cellule Cellule 2 | Activités | 524 | Immédiate | 96 HT/HC/m²/an | 9 m²/an HT | Bail Commercial 3-6-9 ans |
| RDC | Activités | 1395 | Immédiate | |||
| MEZ | Bureaux | 131 | Immédiate | |||
| RDC | Bureaux | 142 | Immédiate | |||
| Total Cellule Cellule 3 | Activités | 1668 | Immédiate | 96 HT/HC/m²/an | 9 m²/an HT | Bail Commercial 3-6-9 ans |
| RDC | Activités | 1395 | Immédiate | |||
| MEZ | Bureaux | 131 | Immédiate | |||
| RDC | Bureaux | 142 | Immédiate | |||
| Total Cellule Cellule 4 | Activités | 1668 | Immédiate | 96 HT/HC/m²/an | 9 m²/an HT | Bail Commercial 3-6-9 ans |
Impôt Foncier : 8 €//m²/an HT
Régime Fiscal : T.V.A. (20%)
Honoraires : 15 % HT d'un an de loyer HT à la charge du preneur, payables à la signature du bail
Prestations :
- Bat A :
- site clôturé, 1 entrée/sortie
- 12 places de stationnement VL dont 1 place PMR
- Bat B :
- site clôturé, 1 entrée/sortie
- 23 places de stationnement VL dont 1 place PMR
- Accès de plain-pied / Accès semi
- Portail automatique
- Portes sectionnelles automatiques :
- Pour le bâtiment A : Portes sectionnelles de plain pied 3*3,50m(h)
- Pour le bâtiment B : Portes sectionnelles de quai 3*3,50m(h)
- Portes sectionnelles de plain pied 4*4,50m(h)
- Hauteur libre sous poutre : 7 mètres
- Charge d'exploitation dallage 3 tonnes/ m²
- Tarif bleu 36 KVA pour le bâtiment A
- Tarif jaune > 50 KVA
- Chauffage : aérothermes électrique
- Faux-plafond
- Sol : PVC ou moquette pour les bureaux / carrelage pour les sanitaires
- Chauffage / Climatisation réversible
- Sanitaires
- Surface RDC : 284 m²
- Surface terrain : 8498
Accessibilité:
Autoroute Accès par l'A432 (à 2 min), l'A43 (à 5 min) et l'A42 (à 10 min)
Aéroport Aéroport Lyon Saint-Exupéry à 5 min
SNCF Gare SNCF TGV / TER Lyon Saint-Exupéry à 5 min
Les informations sur les risques auxquels ce bien est exposé sont disponibles sur le site Géorisques : www.georisques.gouv.fr
Voir plus
Afficher les consommations énergétiques
Favoris
Exporter
Appeler
Contacter
Signaler cette annonce










