Desaulles Immobilier, est un cabinet de conseil en immobilier d'entreprise membre du réseau CBRE. Implanté à Mulhouse depuis plus de 60 ans, Desaulles Immobilier a répond aux attentes des entrepris ...
En savoir plus

1 473 m² divisible dès 147 m²
HT HC
Location activité/entrepôt - 1473 m²
Horbourg-Wihr (68180)
Dernière mise à jour : Il y a 1 an
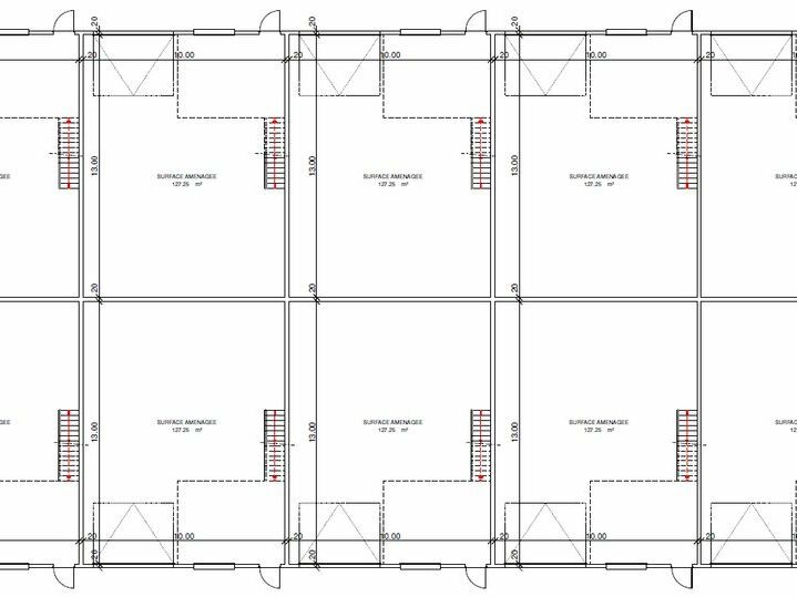
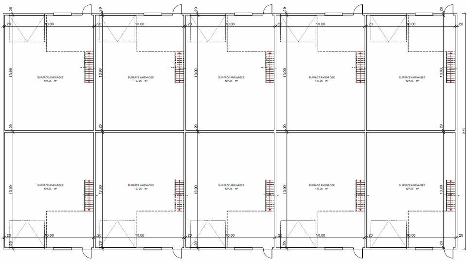
Au sein d'un site entièrement clôturé bâptisé Les Jardins de Diane II, un bâtiment neuf d'une surface totale d'environ 1 472,5 m² composé de 10 Lots d'activité d'environ 147.25 m² chacun (127.25 m² en RDC, 20 m² l'étage - open space, sanitaires et kitchenette), livrés en clos couvert et fluides en attentes.
2 places de parking privées par cellule avec possibilité de bornes de recharge électrique.
Les informations sur les risques auxquels ce bien est exposé sont disponibles sur le site Géorisques : www.georisques.gouv.fr
2 Bornes de recharges electrique
Accessibilité :
A 5 minutes des entrées/sorties Autoroute A35
Disponibilité : Février 2025
Prestations :
Accès poids lourd Oui
Age Bâtiment Neuf
Bâtiment : type Bardage double peau
Charge dalle 2T/m²
Chauffage Oui
Climatisation Oui
Clôturé Oui
Hauteur du stockage 6 mètres
Mezzanine Oui
Nb portes sectionnelles 1/Lot (3mX4m)
Nbre parkings 2/Lot
Nombre de lots 10
Type de sol Hall Dalle quartzé
Loyer annuel : 240000 € HTHC
Prix de vente : 2793000 € HD HT
Charges annuelles : 10 € / m2
Type de bail : Commercial
Dépôt de garantie : 3 mois
Honoraires à la charge du preneur : 15 % HT
| batiment - lot | surface totale | surface rdc (hall) | surface etage (bureaux) | loyer mensuel ht/hc | charges €/m²/an | parkings |
| pour chaque lot | 147.25 m² | 127.25 m² | 20 m² | 2 000 € | 10 € | 2 places privatives |
Voir plus
Afficher les consommations énergétiques
Favoris
Exporter
Appeler
Contacter
Signaler cette annonce


