Century 21 Business Pro est une agence dédiée à l'immobilier commercial et d'entreprise spécialisée dans la commercialisation de locaux commerciaux, fonds de commerce, bureaux, locaux d’activités, ...
En savoir plus

240 m²
HT HC
Location activité/entrepôt - 240 m²
Pornichet (44380)
Dernière mise à jour : Il y a 2 jours
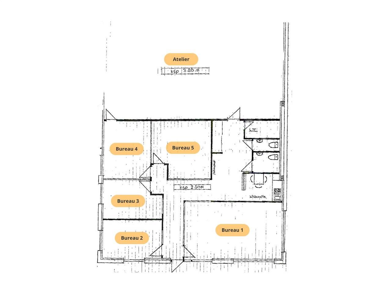
PORNICHET ATLANTIQUE (44) CENTURY 21 vous propose à la LOCATION, au sein dun ensemble immobilier, un local dactivité denviron 240 m² situé sur la commune de Pornichet. Ce bien se compose : - Dun espace bureaux denviron 150 m², comprenant 5 bureaux, sanitaires et coin cuisine - Dun atelier denviron 90 m², équipé dune porte sectionnelle électrique facilitant les accès et livraisons Le local bénéficie également dun accès et dune surface extérieure dédiée à larrière du bâtiment. Un outil de travail immédiatement opérationnel, idéal pour une entreprise souhaitant combiner bureaux et activité technique sur un même site. Loyer mensuel : 2 600 EUR HT Taxe foncière à la charge du locataire Honoraires dagence en sus Réf : 8372 Les informations sur les risques auxquels ce bien est exposé sont disponibles sur le site Géorisques : www.georisques.gouv.fr
Voir plus
Afficher les consommations énergétiques
Favoris
Exporter
Appeler
Contacter
Signaler cette annonce










