L''Agence BNP Paribas Real Rouen accompagne les entreprises et les investisseurs dans tous leurs projets immobiliers.Experts du marché rouennais, notre équipe possède une excellente connaissance du ...
En savoir plus

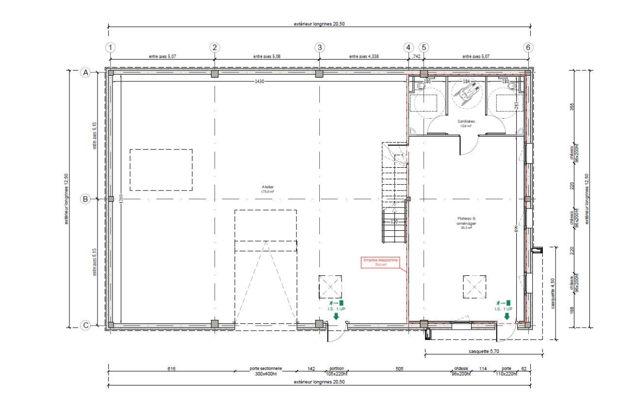
Location activité/entrepôt - 310 m²
Situé au coeur d'une nouvelle zone d'activité en plein essor à Bourg-Achard, ce local de 310 m² offre une opportunité idéale pour développer votre activité dans un environnement stratégique et attractif.
Environnement & accessibilité :
A seulement quelques minutes de l'A13 et de l'A28, offrant une excellente accessibilité vers Rouen, Le Havre, Caen ou encore Paris.
Environnement dynamique avec d'autres commerces et entreprises en développement, parfait pour créer des synergies locales.
Zone en pleine expansion, idéale pour les entreprises souhaitant s'implanter ou se développer dans un secteur à fort potentiel.
Ne manquez pas cette opportunité d'installer votre entreprise dans un cadre professionnel, moderne et accessible !
Contactez-nous pour plus d'informations ou pour organiser une visite.
Disponibilité: ImmédiateHonoraires: 20% HT du loyer HT/HC. à la signature du bail
| Fiche technique du bien | |
|---|---|
| Desserte routière | Accès direct A13 |
| Accès Pers. Mobilité Réduite | Oui |
| Label actuel | RT 2012 -20% |
| Etat de l'immeuble | Neuf |
| Etat des locaux | Très bon état |
| Parking(s) | 33 Places |
| Immeuble indépendant | Oui |
| Type chauffage | Individuel |
| Source chauffage | Electrique |
| Environnement de proximité | Activité |
| Fenêtres | Oui |
| Câblage informatique | Oui |
| Aménagement des bureaux | Espaces Ouverts |
| Faux plafond | Oui |
| Eclairage Bureaux | Luminaires encastrés LED |
| Sol bureaux | plancher bois |
| Sanitaire(s) | Parties communes |
| Autre élément bureau | Fibre optique |
| Charpente | en bois lamellé collé |
| Couverture | Bac acier isolé |
| Murs | Bardage double peau |
| Sols du bâtiment | Béton |
| Charge au sol RDC | 1,00 tonne(s)/m² |
| Hauteur sous poutre | mini 5,60 m/maxi 6,00 m |
| Porte(s) d'accès plain-pied | 1 par lot |
| Accessibilité type véhicules | Moyens porteurs |
| Eclairage intérieur | Etanche LED |
| Puissance électrique | Tarif Bleu |
| Mezzanine | Oui |
