Pôle Implantation Entreprises est un service opérationnel dans toutes les régions de France pour accompagner les dirigeants d’entreprises dans leurs recherches immobilières, mais aussi sur l’ensemb ...
En savoir plus

5 700 m²
Loyer sur demande
Location activité/entrepôt - 5700 m²
Brive-la-Gaillarde (19100)
Dernière mise à jour : Il y a 2 jours
Bâtiment divisible à louer à Brive-la-Gaillarde (19)
Les informations sur les risques auxquels ce bien est exposé sont disponibles sur le site Géorisques : www.georisques.gouv.fr
Accessibilité :
Le bien se situe à 20 minutes de l'A20 et de l'A89, et à 30 minutes de l'aéroport de Brive la Gaillarde.
Disponibilité : Immédiate
Prestations :
PIE est un service gratuit et confidentiel d'accompagnement à l'implantation d'entreprises.
le bâtiment est divisible et aménageable selon les besoins. n''hésitez pas à nous contacter.
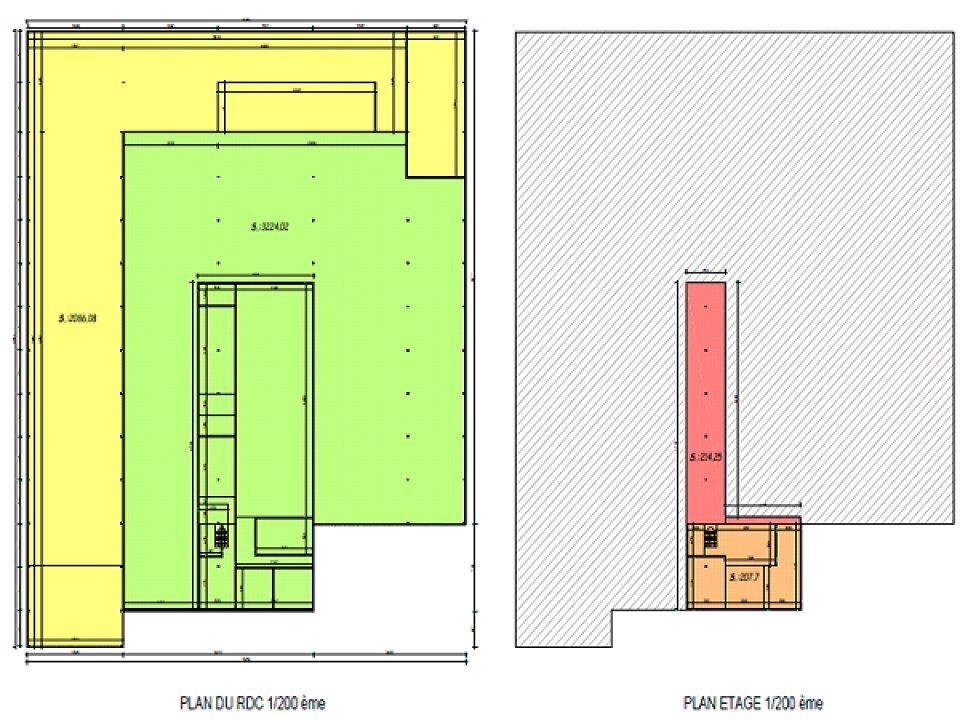
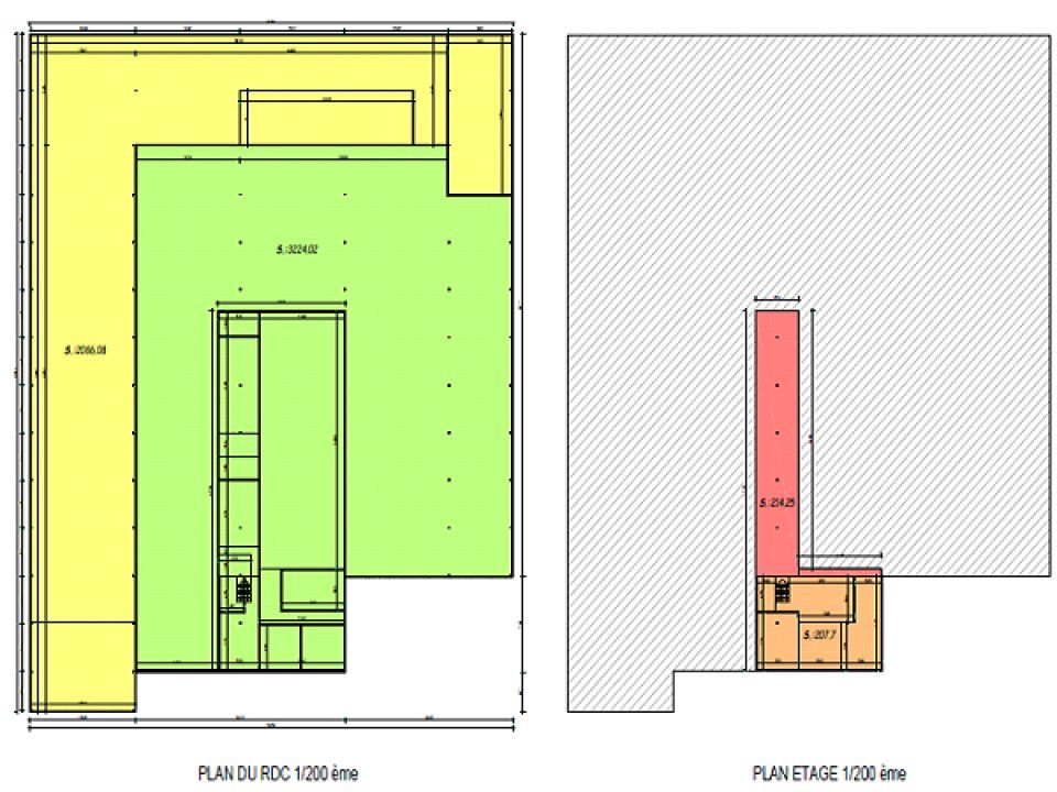
Ce bâtiment de 5 700 m² à Brives-la-Gaillarde est situé sur une parcelle de 6 750 m². Il est divisible selon les besoins des porteurs de projets.
A l'extérieur, un parking voitures et poids lourds est aménagé, ainsi qu'un quai de livraison.
Les informations sur les risques auxquels ce bien est exposé sont disponibles sur le site Géorisques : www.georisques.gouv.fr
Accessibilité :
Le bien se situe à 20 minutes de l'A20 et de l'A89, et à 30 minutes de l'aéroport de Brive la Gaillarde.
Disponibilité : Immédiate
Prestations :
PIE est un service gratuit et confidentiel d'accompagnement à l'implantation d'entreprises.
le bâtiment est divisible et aménageable selon les besoins. n''hésitez pas à nous contacter.
Voir plus
Afficher les consommations énergétiques
Favoris
Exporter
Appeler
Contacter
Signaler cette annonce










