Avec près de 80 implantations en France, Arthur Loyd est le premier réseau National de professionnels de Conseil en Immobilier d’Entreprise. Nous vous accompagnons dans vos projets sur l’ensemble d ...
En savoir plus

549 m²
HT HC
Location local commercial - 549 m²
Vernon (27200)
Dernière mise à jour : Il y a 3 jours
Situés à proximité du centre ville et de la gare, 2 locaux commerciaux en RDC d'une résidence neuve
Une offre proposée par l'agence Arthur Loyd Evreux - 973 Rte de Paris, 27930 Le Vieil-Évreux - 02 35 600 400- www.arthur-loyd-evreux.com
Régime Fiscal : T.V.A.
Dépôt de garantie : 3 mois de loyer HT/HC
Honoraires : 15% HT du loyer annuel en principal HT / HC à la charge du preneur
Prestations :
Accessibilité:
SNCF Gare à 5min à pied
Autoroute Autoroute A13
Les informations sur les risques auxquels ce bien est exposé sont disponibles sur le site Géorisques : www.georisques.gouv.fr
Une offre proposée par l'agence Arthur Loyd Evreux - 973 Rte de Paris, 27930 Le Vieil-Évreux - 02 35 600 400- www.arthur-loyd-evreux.com
| Étage | Type | Surfaces | Dispo | Loyer | Charges | Type de bailRév. annuelle |
|---|---|---|---|---|---|---|
| RDC | Locaux Commerciaux | 279 | Immédiate | 135 m²/an HT HC | 3-6-9 ansILC Indice des Loyers Commerciaux | |
| RDC | Locaux Commerciaux | 270 | Immédiate | 135 m²/an HT HC | 3-6-9 ansILC Indice des Loyers Commerciaux |
Régime Fiscal : T.V.A.
Dépôt de garantie : 3 mois de loyer HT/HC
Honoraires : 15% HT du loyer annuel en principal HT / HC à la charge du preneur
Prestations :
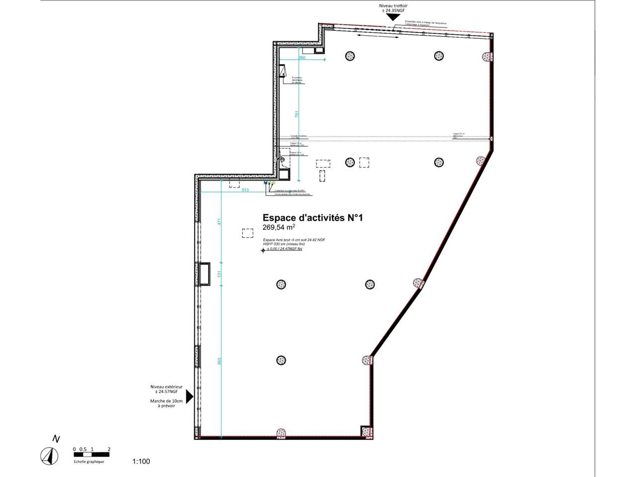
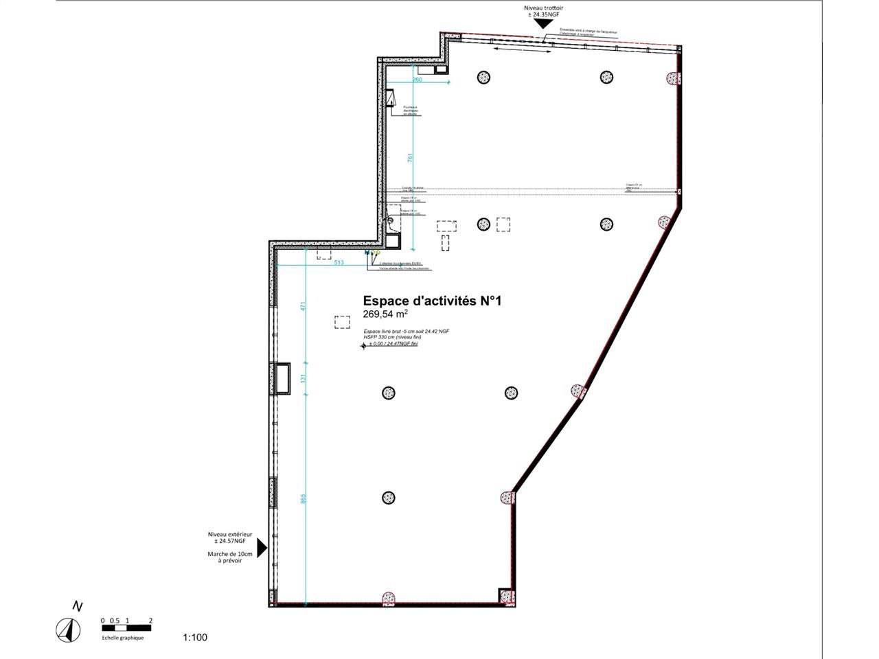
- En rez-de-chaussée d'une résidence neuve élevée en R+4, deux locaux commerciaux d'une superficie d'environ 270 m2 et 279 m2, livrés brut de béton - fluides en attente
- _____
- Les locaux sont indépendants en terme de fluide, le calcul des charges au tantième ne s'applique pas.
- Immeuble indépendant
- Surface RDC : 549 m²
Accessibilité:
SNCF Gare à 5min à pied
Autoroute Autoroute A13
Les informations sur les risques auxquels ce bien est exposé sont disponibles sur le site Géorisques : www.georisques.gouv.fr
Voir plus
Afficher les consommations énergétiques
Localisation et transport aux alentours
Favoris
Exporter
Appeler
Contacter
Signaler cette annonce


