Depuis 2003, KEOPS Toulouse accompagne les entreprises dans leurs projets immobiliers sur toute l’aire urbaine toulousaine.Notre équipe de professionnels passionnés met à votre service sa connaissa ...
En savoir plus

2 092 m² divisible dès 97 m²
HT HC
HILO - Location local commercial - 2092 m²
Seilh (31840)
Dernière mise à jour : Il y a 1 mois
Immeuble HILO
Nous vous proposons à la location plusieurs surfaces commerciales situé à l'entrée sud de Seilh, dans le quartier Laubis, futur Ecoquartier, qui a pour ambition d'urbaniser un nouveau secteur tout en l'intégrant au tissu urbain existant.
Régime Fiscal : T.V.A.
Dépôt de garantie : 3 mois de loyer HT HC
Honoraires : 30 % HT du loyer annuel HT HC à la charge du Preneur
Prestations :
Accessibilité:
Aéroport Aéroport de Toulouse-Blagnac (France)
Bus Seilh - les Tricheries (Ligne 388)
Bus Laubis (130 171 71)
Rocade Beauzelle (Périphérique Toulouse)
Borne de recharge Netto - Beauzelle (Bornes de recharge)
Les informations sur les risques auxquels ce bien est exposé sont disponibles sur le site Géorisques : www.georisques.gouv.fr
Nous vous proposons à la location plusieurs surfaces commerciales situé à l'entrée sud de Seilh, dans le quartier Laubis, futur Ecoquartier, qui a pour ambition d'urbaniser un nouveau secteur tout en l'intégrant au tissu urbain existant.
| Étage | Type | Surfaces | Dispo | Loyer | Charges | Type de bailRév. annuelle |
|---|---|---|---|---|---|---|
| RDC | Commerce | 290 | T2 2028 | 160 HT HC/m²/mois | Commercial 3/6/9 ansIndexation ILC (indice des Loyers Commerciaux) | |
| RDC | Commerce | 260 | T2 2028 | 160 HT HC/m²/mois | Commercial 3/6/9 ansIndexation ILC (indice des Loyers Commerciaux) | |
| RDC | Commerce | 166 | T2 2028 | 160 HT HC/m²/mois | Commercial 3/6/9 ansIndexation ILC (indice des Loyers Commerciaux) | |
| RDC | Commerce | 99 | T2 2028 | 160 HT HC/m²/mois | Commercial 3/6/9 ansIndexation ILC (indice des Loyers Commerciaux) | |
| RDC | Commerce | 97 | T2 2028 | 160 HT HC/m²/mois | Commercial 3/6/9 ansIndexation ILC (indice des Loyers Commerciaux) | |
| RDC | Commerce | 327 | T2 2028 | 160 HT HC/m²/mois | Commercial 3/6/9 ansIndexation ILC (indice des Loyers Commerciaux) | |
| RDC | Commerce | 310 | T2 2028 | 160 HT HC/m²/mois | Commercial 3/6/9 ansIndexation ILC (indice des Loyers Commerciaux) | |
| RDC | Commerce | 229 | T2 2028 | 160 HT HC/m²/mois | Commercial 3/6/9 ansIndexation ILC (indice des Loyers Commerciaux) | |
| RDC | Commerce | 114 | T2 2028 | 160 HT HC/m²/mois | Commercial 3/6/9 ansIndexation ILC (indice des Loyers Commerciaux) | |
| RDC | Commerce | 200 | T2 2028 | 160 HT HC/m²/mois | Commercial 3/6/9 ansIndexation ILC (indice des Loyers Commerciaux) |
Régime Fiscal : T.V.A.
Dépôt de garantie : 3 mois de loyer HT HC
Honoraires : 30 % HT du loyer annuel HT HC à la charge du Preneur
Prestations :
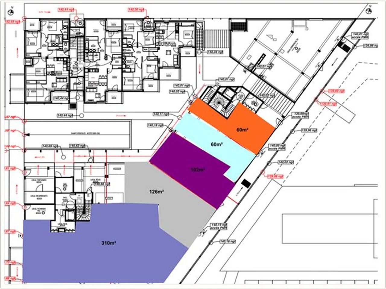
- L'opération immobilière HILO, idéalement située ZONE LAUBIS, dans le futur Ecoquartier à SEILH, est constituée de plusieurs surfaces commerciales à la location d'une surface totale de 2092 m² divisibles.
- La zone Laubis, proche de la zone commerciale de Blagnac, est une zone de polarité commerciale dynamique grâce a ses logements, écoles, services ...
- Permis de construire obtenu et purgé.
- Les surfaces disponibles à la location sont largement divisibles, voir les quelques scénarios de division dans le tableau.
- Surface livrée brute
- Fluides en attentes
- Vitrines posées
- Parking commerçants : 20 places
- Excellente visibilité
- Surface RDC : 2092 m²
Accessibilité:
Aéroport Aéroport de Toulouse-Blagnac (France)
Bus Seilh - les Tricheries (Ligne 388)
Bus Laubis (130 171 71)
Rocade Beauzelle (Périphérique Toulouse)
Borne de recharge Netto - Beauzelle (Bornes de recharge)
Les informations sur les risques auxquels ce bien est exposé sont disponibles sur le site Géorisques : www.georisques.gouv.fr
Voir plus
Afficher les consommations énergétiques
Localisation et transport aux alentours
Favoris
Exporter
Appeler
Contacter
Signaler cette annonce
