BNP Paribas Real Estate, N°1 de la transaction en immobilier d''entreprise en France, vous propose un accompagnement de qualité pour l''acquisition, la vente ou la location d''un bien immobilier.Vo ...
En savoir plus

41 918 m²
Loyer sur demande
Location activité/entrepôt - 41918 m²
Combs-la-Ville (77380)
Dernière mise à jour : Aujourd'hui
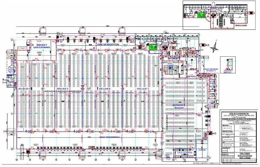
COMBS-LA-VILLE (77) Nous vous proposons un entrepôt traversant d'une surface totale de 41 918 m² environ répartie en plusieurs cellules à usage de stockage. ICPE : 1510(A)/1532(A)/1530(E)/2662(E)/2663-1(E)/2663-2(E)/2920-2b(D)/2925(D)
BNP PARIBAS REAL ESTATE vous propose un entrepôt traversant d'une surface totale de 41 918 m² environ répartie en plusieurs cellules à usage de stockage.
ICPE : 1510(A)/1532(A)/1530(E)/2662(E)/2663-1(E)/2663-2(E)/2920-2b(D)/2925(D)
Caractéristiques techniques :
- 4 portes plain-pied
- 44 portes à quai
- 1 rampe d'accès VL
- Hauteur libre : 10 m et 7,5 m sur 2 cellules
- Charge au sol : 5T/m²
- 289 places de parking VL
- 20 places de parking PL
- Chauffage : Gaz (3 chaudières gaz en redondance)
Honoraires: Nous consulter. à la signature du bail
| Fiche technique du bien | |
|---|---|
| RER | D Gare Combs-la-Ville-Quincy à 2 km |
| Desserte routière | N104/15/N6/A5b |
| Aéroport | Paris Orly 27 km |
| Autorisation d'exploiter | 1510 |
| Autorisation d'exploiter | 1532 |
| Autorisation d'exploiter | 2925 |
| Autorisation d'exploiter | 2920 2-b |
| Autorisation d'exploiter | 1530 |
| Autorisation d'exploiter | 2663-1 |
| Autorisation d'exploiter | 2662 |
| Autorisation d'exploiter | 2663-2 |
| Etat des locaux | Etat d'usage |
| Parking(s) | 289 Places Places VL |
| Parking(s) | 20 Places places PL |
| Source chauffage | Gaz 3 chaudières gaz en redondance |
| Charpente | Métallique revêtement bitumineux |
| Charge au sol RDC | 5,00 tonne(s)/m² |
| Hauteur libre | 10,00 mètre(s) et 7,5 m sur 2 cellules |
| Porte(s) d'accès plain-pied | 4 |
| Porte(s) d'accès à quai | 44 |
| Aire de manoeuvre | 35 ml |
| Réseau Incendie Armé | Oui |
| Rampe(s) d'accès | 1 VL |
| Sprinklers | Multi couches (APSAD) sous eau intérieur/ Sous air extérieur |
Afficher les consommations énergétiques
Favoris
Exporter
Appeler
Contacter
Signaler cette annonce
