A l’appui d’un réseau leader à l’international, I&L Solutions est une équipe de plus de 70 professionnels spécialisés en immobilier Logistique et Industriel au service des investisseurs, des propri ...
En savoir plus

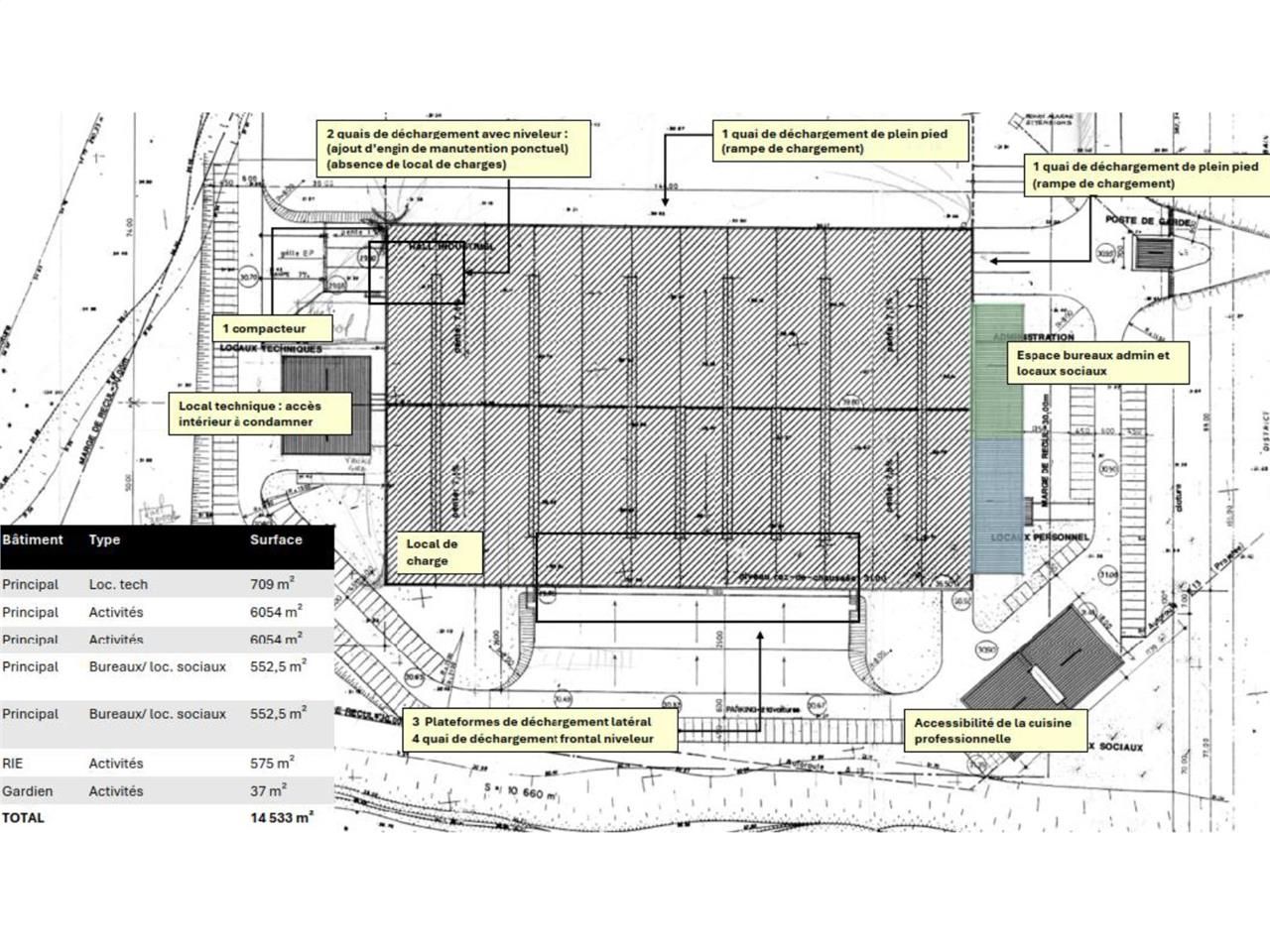
14 533 m²
HT HC
Location activité/entrepôt - 14533 m²
Rosny-sur-Seine (78710)
Dernière mise à jour : Hier
CBRE vous propose un bâtiment indépendant d'activités situé sur la commune de Rosny sur Seine dans le département des Yvelines (78). A proximité de l'autoroute A13, sur la ligne J du transilien. Ce bâtiment bénéficie de nombreuses portes à quai et portes plain pied. Belle surface de 14533 m² non divisibles sur un terrain de 64 532 m². Location entrepôt idéal pour le développement de vos activités professionnelles. Bail commercial. Disponible immédiatement.
Mener à bien son projet d'implantation pour une activité industrielle doit passer par des locaux adaptés à ses besoins. Si cet entrepôt/local d'activités à vendre ou à louer dans le 78 vous intéresse ou si vous souhaitez obtenir plus de renseignements, n'hésitez pas à me contacter aujourd'hui pour organiser une visite et bénéficier de toutes les informations nécessaires pour votreprojet immobilier.
En tant qu'expert en immobilier industriel, je suis à votre disposition pour vous aider à trouver le bien disponible à la vente ou à la location, adapté à vos activités professionnelles et à votre coeur de métier, que ce soit un entrepôt, un local industriel, de stockage ou bien un local d'activités.
Régime Fiscal : T.V.A.
Honoraires : 20% HT du loyer HT/HC à la charge du preneur
Prestations :
Accessibilité:
Transilien Rosny sur Seine (J)
Autoroute A13
Route RN13
Les informations sur les risques auxquels ce bien est exposé sont disponibles sur le site Géorisques : www.georisques.gouv.fr
Mener à bien son projet d'implantation pour une activité industrielle doit passer par des locaux adaptés à ses besoins. Si cet entrepôt/local d'activités à vendre ou à louer dans le 78 vous intéresse ou si vous souhaitez obtenir plus de renseignements, n'hésitez pas à me contacter aujourd'hui pour organiser une visite et bénéficier de toutes les informations nécessaires pour votreprojet immobilier.
En tant qu'expert en immobilier industriel, je suis à votre disposition pour vous aider à trouver le bien disponible à la vente ou à la location, adapté à vos activités professionnelles et à votre coeur de métier, que ce soit un entrepôt, un local industriel, de stockage ou bien un local d'activités.
| Étage | Type | Surfaces | Dispo | Loyer | Charges | Type de bailRév. annuelle |
|---|---|---|---|---|---|---|
| RDC | Activités | 12720 | Immédiate | 70 | Indice ILAT | |
| RDC | Locaux techniques | 708 | Immédiate | 70 m²/an HT HC | Indice ILAT | |
| 1 | Bureaux | 1105 | Immédiate | 70 m²/an HT HC | Indice ILAT | |
| Total Cellule | Activités | 14533 | Immédiate | 70 m²/an HT HC | 3-6-9 ansIndice ILAT |
Régime Fiscal : T.V.A.
Honoraires : 20% HT du loyer HT/HC à la charge du preneur
Prestations :
- Cuve Sprinkler
- Site sécurisé et clos
- Restaurant
- Station GPL
- Divisibilité envisageable à partir de 3 000 m²
- Immeuble indépendant
- Surface RDC : 13428 m²
- Surface terrain : 64532
- Haut. libre min. ss poutre : 4,75 m
- Haut. libre max. ss poutre : 7,5 m
- Nbr de portes à quai : 15
- Equipements entrepôts : . Zénithal par skydômes par dômes translucides
. Puissance électrique 20000 kw - ICPE :
- Autorisations : 2663
- Chauffage : Gaz
- Ossature : Métallique
- Couverture : Bac acier isolé étanchéité multicouche
Accessibilité:
Transilien Rosny sur Seine (J)
Autoroute A13
Route RN13
Les informations sur les risques auxquels ce bien est exposé sont disponibles sur le site Géorisques : www.georisques.gouv.fr
Voir plus
Afficher les consommations énergétiques
Favoris
Exporter
Appeler
Contacter
Signaler cette annonce
