A l’appui d’un réseau leader à l’international, I&L Solutions est une équipe de plus de 70 professionnels spécialisés en immobilier Logistique et Industriel au service des investisseurs, des propri ...
En savoir plus

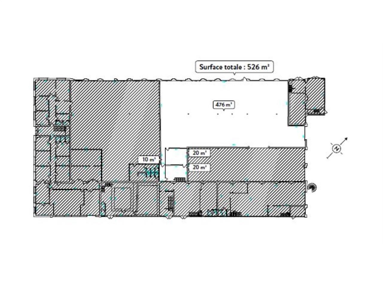
586 m²
HT HC
Location activité/entrepôt - 586 m²
Montmagny (95360)
Dernière mise à jour : Hier
Rare sur le secteur ! CBRE vous propose à louer, un parc d'activités situé sur la commune de Montmagny, dans le département du Val d'Oise (95). A proximité de l'autoroute A15, sur la ligne H du transilien. Ce local industriel dispose d'une porte de plain-pied et d'une hauteur de 6m² sous plafond chacun. Belle surface de 586 m² non divisibles. Location entrepôt idéal pour le développement de vos activités professionnelles. Bail commercial. Disponible immédiatement.
Si cet entrepôt/local d'activités à louer dans le 95 vous intéresse ou si vous souhaitez obtenir plus de renseignements, n'hésitez pas à me contacter aujourd'hui pour organiser une visite et bénéficier de toutes les informations nécessaires pour votreprojet immobilier.
En tant qu'expert en immobilier professionnel/industriel, je suis à votre disposition pour vous aider à trouver le bien adapté à vos activités professionnelles et à votre coeur de métier.
Régime Fiscal : T.V.A.
Dépôt de garantie : 3 mois de loyer HT/HC
Honoraires : 15% HT du loyer annuel HT/HC à la charge du preneur
Information sur le Bail :
Provisions sur charges : Taxe foncière Maintenance et gestion technique de l'immeuble Assurance immeuble Eau EDF parties communes
Prestations :
Accessibilité:
Autoroute A86 - A15
Route N14 - N328
Bus SABLONS (156,337,356,361)
Transilien Épinay-Villetaneuse (H)
Les informations sur les risques auxquels ce bien est exposé sont disponibles sur le site Géorisques : www.georisques.gouv.fr
Si cet entrepôt/local d'activités à louer dans le 95 vous intéresse ou si vous souhaitez obtenir plus de renseignements, n'hésitez pas à me contacter aujourd'hui pour organiser une visite et bénéficier de toutes les informations nécessaires pour votreprojet immobilier.
En tant qu'expert en immobilier professionnel/industriel, je suis à votre disposition pour vous aider à trouver le bien adapté à vos activités professionnelles et à votre coeur de métier.
| Étage | Type | Surfaces | Dispo | Loyer | Charges | Type de bailRév. annuelle |
|---|---|---|---|---|---|---|
| RDC | Activités | 500 | Immédiate | 120 m²/an HT HC | 35 | 3-6-9 ansIndice ILAT |
| 1 | Bureaux | 86 | Immédiate | 120 m²/an HT HC | 35 m²/an HT HC | 3-6-9 ansIndice ILAT |
Régime Fiscal : T.V.A.
Dépôt de garantie : 3 mois de loyer HT/HC
Honoraires : 15% HT du loyer annuel HT/HC à la charge du preneur
Information sur le Bail :
Provisions sur charges : Taxe foncière Maintenance et gestion technique de l'immeuble Assurance immeuble Eau EDF parties communes
Prestations :
- Contrôle d'accès
- Vidéosurveillance
- Parking
- Surface d'activité de plain pied
- Porte sectionnelle
- Bâtiment raccordé fibre optique
- Surface RDC : 500 m²
- Surface terrain : 0
- Haut. libre min. ss poutre : 3,5 m
- Haut. libre max. ss poutre : 6 m
- Résistance sol : 3 T/m²
Accessibilité:
Autoroute A86 - A15
Route N14 - N328
Bus SABLONS (156,337,356,361)
Transilien Épinay-Villetaneuse (H)
Les informations sur les risques auxquels ce bien est exposé sont disponibles sur le site Géorisques : www.georisques.gouv.fr
Voir plus
Afficher les consommations énergétiques
Favoris
Exporter
Appeler
Contacter
Signaler cette annonce




